- >>
- eladó ingatlanok
- >>
- eladó lakás
- >>
- eladó lakás Budapest VII. kerület
- >>
Eladó új építésű lakás - Budapest VII. kerület
| | |||
| Kedvencnek jelölöm | Elküldöm emailben | Megosztás | Szavazás |
| Kedvezményes lakáshitel ajánlatok | |||
| 101 380 000 HUF | |||
Ingatlan adatai
- Eladó vagy kiadó:Eladó
- Település:Budapest VII. kerület
- Kategória:Lakás
- Alkategória:Tégla
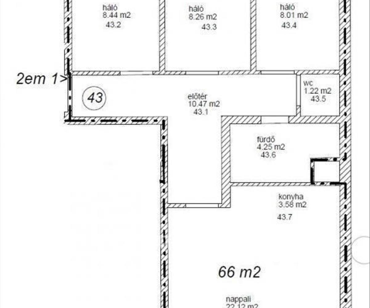
- Alapterület:66 m2
- Csere is:Nem
- Hirdető:Cég
- Élő videón megtekinthető:Nem
- Szobaszám:4
- Állapot:Új építésű
- Hány szintes az ingatlan:nincs megadva
- Komfortosság:nincs megadva
- Hányadik emeleti:2
- Erkély:Van
- Lift:Van
- Parkolási lehetőség:nincs megadva
- Fűtés:Elektromos
- Bútorozottság:nincs megadva
- Fényviszony:Jó
- Tájolás:nincs megadva
- Kilátás:nincs megadva
- Internet:nincs megadva
- Akadálymentesített:nincs megadva
- Energiatanúsítvány:nincs megadva
- Villany:Van
- Víz:Van
- Gáz:nincs megadva
- Csatorna:Van
- Üzenetküldés
- Hívás

Referencia szám: M239089

Hitel ajánlat
Ingatlan hirdetés leírása
Eladó Lakás, Budapest 7. ker.
Hamarosan átadásra kerülő újépítésű lakások eladók a Keleti pályaudvar közelében. Kínálatunk 33nm-es garzontól a 98nm-es 4 szobásig terjed.A központi elhelyezkedés miatt a befektetésre is kiválóan alkalmas ingatlanok egy liftes, 6 emeletes társasházban találhatóak.
Az OTP Ingatlanpont teljes körű ügyintézéssel áll az eladók és a vevők rendelkezésére! Az ingatlan finanszírozásához kedvezményes hitel- és lízingkonstrukciókat, lakástakarék-pénztári megoldásokat kínálunk.
További információkért kérem hívjon vagy írjon!
Referencia szám: m239089 Hitel.hu - Hasonlítsa össze a bankok lakáshitel ajánlatait

