Eladó újszerű állapotú lakás - Budapest VII. kerület
- INGYENES HIRDETÉS FELADÁS
Ingatlan adatai
- Feladva:67 napja a megveszLAK-on
- Eladó vagy kiadó:Eladó
- Település:Budapest VII. kerület
- Kategória:Lakás
- Alkategória:Tégla
- Alapterület:41 m2
- Csere is:Nem
- Hirdető:Cég
- Élő videón megtekinthető:Nem
- Szobaszám:1
- Állapot:Újszerű, kitűnő
- Hány szintes az ingatlan:Földszintes
- Komfortosság:nincs megadva
- Hányadik emeleti:1
- Erkély:nincs megadva
- Lift:Van
- Parkolási lehetőség:Utcán
- Fűtés:Gáz (cirko)
- Bútorozottság:Bútorozott
- Fényviszony:Jó
- Tájolás:DK
- Kilátás:nincs megadva
- Internet:nincs megadva
- Klíma:nincs megadva
- Akadálymentesített:nincs megadva
- Energiatanúsítvány:nincs megadva
- Villany:Van
- Víz:Van
- Gáz:nincs megadva
- Csatorna:Van
- Közös költség:13 000 Ft
- Kapcsolatfelvétel

Kodó Emil Zoltán
+36-(20)-365-5435
Mondd meg a hirdetőnek, hogy a megveszLAK-on találtad a hirdetést.
Referencia szám: M323028
Hitel ajánlatok
Ingatlan hirdetés leírása
Eladó Lakás, Budapest 7. ker.
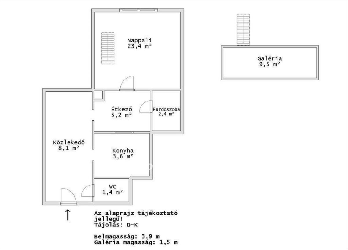
Eladó egy kiváló lakás prémium bútorokkal közel 4 méteres belmegassággal a Dohány utcában!
Ez a nagypolgári stílusban épült lakás a tulajdoni lapon 41 m2-es lakás a valóságban viszont 44 m2 alapterületű! Az ingatlanoz egy kényelmes méretű galéria is tartozik, így a hasznos élettér ennél is nagyobb. a lakás asztalos által tervezett bútorokkal berendezett, amelyek a vételár részét képezik. Egy egyszerű tisztasági festés után szinte teljesen új állapotú otthont kapunk, az ingatlan gondosan karbantartott és azonnal költözhető.
A közel 4 méteres belmagasság tágas, levegős érzetet biztosít, a galéria kiválóan használható hálórészként vagy dolgozósarokként, így a nappali teljes értékű élettér marad. a DK-i tájolásnak köszönhetően a lakás kifejezetten világos és napfényes, ami egész nap kellemes hangulatot teremt.
A bejáraton belépve egy kényelmes közlekedő fogad, ahonnan külön nyílik a konyha, a külön wc és az étkező. Az étkező tovább vezet a tágas nappaliba, amely a lakás központi tere, itt található a galériára vezető lépcső is. a fürdőszoba szintén külön helyiség, jól elkülönül a lakótértől. Az elrendezés nagy előnye, hogy a funkciók nincsenek egymásra zsúfolva, minden helyiség jól használható és természetes módon kapcsolódik a másikhoz.
A Dohány utca Budapest egyik legközpontibb része, ahol szinte minden gyalogosan elérhető. a tömegközlekedés kiváló, néhány perc sétára található az m2 metró Astoria és Blaha Lujza tér megállója, valamint számos busz és villamosjárat, így a város bármely pontja gyorsan megközelíthető. a környéken éttermek, kávézók, üzletek, egyetemek, kulturális és szórakozási lehetőségek széles választéka található.
Ha szereti a belváros pezsgését, de hazaérve egy nyugodt környezetre vágyik, akkor ez a lakás teljes mértékben megfelelő az ön igényeinek.
Ha szeretné megtekinteni a lakást keressen bizalommal! Hitel.hu - Hasonlítsa össze a bankok lakáshitel ajánlatait
Tetszett ez az eladó Budapest VII. kerületi újszerű állapotú 1 szobás tégla lakás? Hívd fel a hirdetőt most, és tudj meg mindent erről az eladó tégla lakásról! Ha gondolod nézelődj tovább az eladó lakás Budapest VII. kerület oldal hirdetései között. Ennek az eladó lakásnak az ára 67900000 Ft és mivel az alapterülete 41 négyzetméter, ezért az átlagos négyzetméterára 1656098 HUF/m2.
Az eladó lakások menüpontban további hirdetések között is böngészhetsz. Az összes eladó budapesti lakás hirdetést tartalmazó oldalon tudsz böngészni. Ha van kedved, akkor böngészhetsz a Kodó Emil Zoltán összes hirdetése között, vagy akár a/az OTPip Gregoryan Artur összes hirdetése között is.

