Eladó újszerű állapotú lakás - Budapest VII. kerület
- INGYENES HIRDETÉS FELADÁS
Ingatlan adatai
- Eladó vagy kiadó:Eladó
- Település:Budapest VII. kerület
- Kategória:Lakás
- Alkategória:Tégla
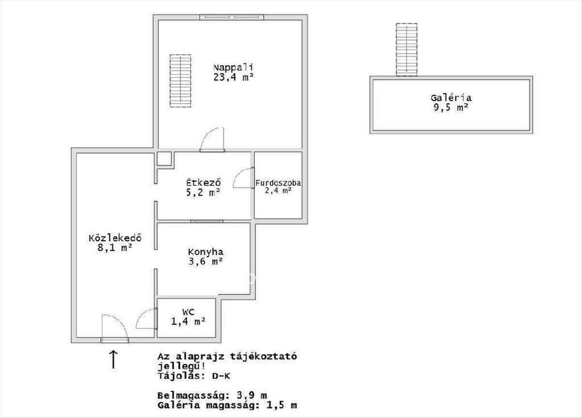
- Alapterület:41 m2
- Csere is:Nem
- Hirdető:Cég
- Élő videón megtekinthető:Nem
- Szobaszám:1
- Állapot:Újszerű, kitűnő
- Hány szintes az ingatlan:Földszintes
- Komfortosság:nincs megadva
- Hányadik emeleti:1
- Erkély:nincs megadva
- Lift:Van
- Parkolási lehetőség:nincs megadva
- Fűtés:Gáz (cirko)
- Bútorozottság:nincs megadva
- Fényviszony:Jó
- Tájolás:DK
- Kilátás:nincs megadva
- Internet:nincs megadva
- Klíma:Van
- Akadálymentesített:nincs megadva
- Energiatanúsítvány:nincs megadva
- Villany:Van
- Víz:Van
- Gáz:nincs megadva
- Csatorna:Van
- Közös költség:13 000 Ft
- Kapcsolatfelvétel

Hitel ajánlatok
Ingatlan hirdetés leírása
Eladó Lakás, Budapest 7. ker.
Eladó egy kiváló lakás prémium bútorokkal közel 4 méteres belmegassággal a Dohány utcában!
Ez a nagypolgári stílusban épült lakás a tulajdoni lapon 41 m2-es lakás a valóságban viszont 44 m2 alapterületű! Az ingatlanoz egy kényelmes méretű galéria is tartozik, így a hasznos élettér ennél is nagyobb. a lakás asztalos által tervezett bútorokkal berendezett, amelyek a vételár részét képezik. Egy egyszerű tisztasági festés után szinte teljesen új állapotú otthont kapunk, az ingatlan gondosan karbantartott és azonnal költözhető.
A közel 4 méteres belmagasság tágas, levegős érzetet biztosít, a galéria kiválóan használható hálórészként vagy dolgozósarokként, így a nappali teljes értékű élettér marad. a DK-i tájolásnak köszönhetően a lakás kifejezetten világos és napfényes, ami egész nap kellemes hangulatot teremt.
A bejáraton belépve egy kényelmes közlekedő fogad, ahonnan külön nyílik a konyha, a külön wc és az étkező. Az étkező tovább vezet a tágas nappaliba, amely a lakás központi tere, itt található a galériára vezető lépcső is. a fürdőszoba szintén külön helyiség, jól elkülönül a lakótértől. Az elrendezés nagy előnye, hogy a funkciók nincsenek egymásra zsúfolva, minden helyiség jól használható és természetes módon kapcsolódik a másikhoz.
A Dohány utca Budapest egyik legközpontibb része, ahol szinte minden gyalogosan elérhető. a tömegközlekedés kiváló, néhány perc sétára található az m2 metró Astoria és Blaha Lujza tér megállója, valamint számos busz és villamosjárat, így a város bármely pontja gyorsan megközelíthető. a környéken éttermek, kávézók, üzletek, egyetemek, kulturális és szórakozási lehetőségek széles választéka található.
Ha szereti a belváros pezsgését, de hazaérve egy nyugodt környezetre vágyik, akkor ez a lakás teljes mértékben megfelelő az ön igényeinek.
Ha szeretné megtekinteni a lakást keressen bizalommal! Ingatlanjogász ügyvédi iroda vagyunk 25 éve.
Az OTP Csoport teljes körű ügyintézéssel áll az eladók és a vevők rendelkezésére! Cégünk digitális rendszerrel dolgozik már közel 6 éve, így akár online, személyes találkozó nélkül is zökkenőmentesen vásárolhatja meg a kiválasztott ingatlant! a kínálatunkból választott ingatlan finanszírozásához kedvezményes hitel- és lízing konstrukciót, állami támogatásokat, lakás-takarékpénztári megoldásokat kínálunk. Az adásvételi szerződés megkötéséhez igény szerint megbízható ügyvédi közreműködést biztosítunk, és segítséget nyújtunk az adásvételhez kapcsolódó ügyek intézésében is. Bővebb tájékoztatásért hívjon bizalommal akár hétvégén is! Fontos: Ha még nem volt ingatlan a nevén, vagy gyermekeinek szeretné megvásárolni ezt a kiváló adottságokkal rendelkező lakást, az új kedvezményes 3%-os kamatozású hitelt az OTP Bank hátterével 22 napon belül tudjuk biztosítani!
Referencia szám: m323028-ml Hitel.hu - Hasonlítsa össze a bankok lakáshitel ajánlatait
Tetszett ez az eladó Budapest VII. kerületi újszerű állapotú 1 szobás tégla lakás? Hívd fel a hirdetőt most, és tudj meg mindent erről az eladó tégla lakásról! Ha gondolod nézelődj tovább az eladó lakás Budapest VII. kerület oldal hirdetései között. Ennek az eladó lakásnak az ára 67900000 Ft és mivel az alapterülete 41 négyzetméter, ezért az átlagos négyzetméterára 1656098 HUF/m2.
Az eladó lakások menüpontban további hirdetések között is böngészhetsz. Az összes eladó budapesti lakás hirdetést tartalmazó oldalon tudsz böngészni. Ha van kedved, akkor böngészhetsz a Hegedűs Tibor összes hirdetése között, vagy akár a/az OTPip Budapest I. kerület Krisztina körút 32 - OTP Ingatlanpont Iroda összes hirdetése között is.

