Eladó újszerű állapotú lakás Budapest VII. kerület
| Kedvencbe | Megosztás | Árfigyelő |
| Kedvezményes lakáshitel ajánlatok | ||
| 72 900 000 HUF | ||
Ingatlan adatai
- Eladó vagy kiadó:Eladó
- Település:Budapest VII. kerület
- Kategória:Lakás
- Alkategória:Tégla
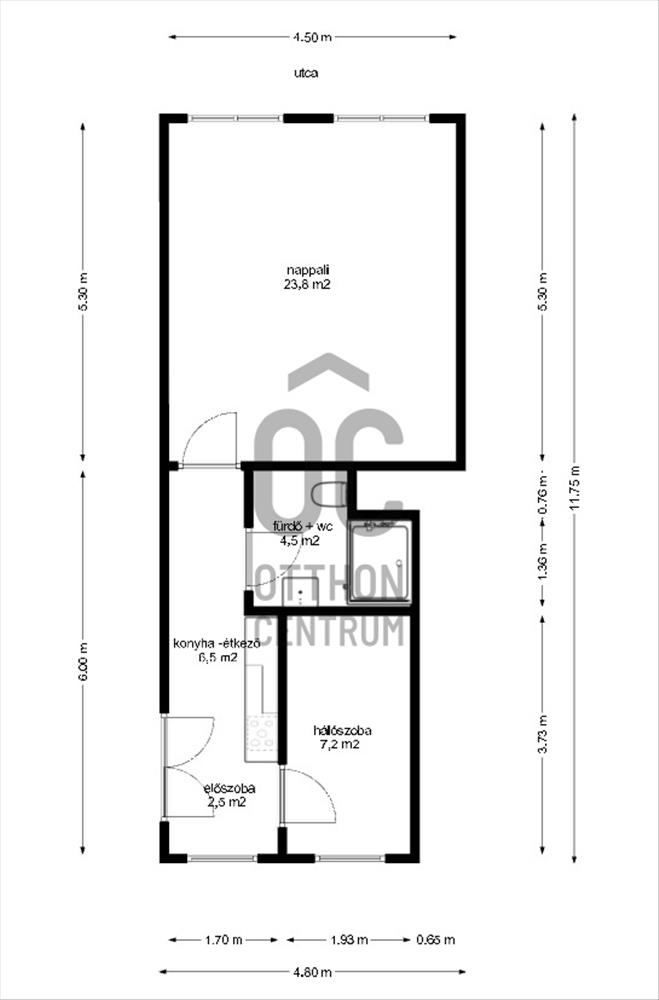
- Alapterület:45 m2
- Csere is:Nem
- Hirdető:Cég
- Élő videón megtekinthető:Nem
- Szobaszám:2
- Állapot:Újszerű, kitűnő
- Hány szintes az ingatlan:nincs megadva
- Komfortosság:nincs megadva
- Hányadik emeleti:nincs megadva
- Parkolási lehetőség:nincs megadva
- Fűtés:Gáz (cirko)
- Bútorozottság:nincs megadva
- Fényviszony:nincs megadva
- Tájolás:DNY
- Kilátás:Utcai
- Internet:nincs megadva
- Akadálymentesített:nincs megadva
- Energiatanúsítvány:nincs megadva
- Villany:Van
- Víz:Van
- Gáz:Van
- Csatorna:Van
- Közös költség:20 000 Ft
- Üzenetküldés
- Hívás


Hitel ajánlat
Ingatlan hirdetés leírása
VII. kerület Ligetvárosi részén a Cserhát utcában az István u....
VII. kerület Ligetvárosi részén a Cserhát utcában az István u. -Hoz közelebbi részén eladó egy 1910-es 20-as években épült jó állapotú téglaház magasföldszintjén egy 45 m2-es teljeskörűen felújított 2 szobás, világos, fiatalos lakás. a felújítás során a teljes villanyhálózat cserélve lett. Kapott fi relét és 2* 32a biztosítékot, hogy a nappaliban lévő klíma zökkenőmentesen hűtse fűtse a lakást amikor megy a sütő mosás közben.A fürdőszoba újra lett építve. a lakás vízvezetékei cserélve lettek, épített Walk-in zuhanykabin, fali Geberit wc, mosdószekrények, mosógép kiállás és elszívó ventilátor lett kialakítva. a meleg vizet villanybojler biztosítja.
A konyhában magas kopásállóságú Gress burkolat, új gépesített ( beépített sütő és mikrohullámú sütő, kerámialapos tűzhely, nagy teljesítményű, kivezetett elszívó ) konyhabútor lett kialakítva, ahol a mosogatógép kiállása is ki lett alakítva. Helyett kapott egy kombinált hűtőszekrény, így az új tulajdonos "teljesen" felszerelt konyhával tudja birtokba venni a lakást.
A melegről egy mika 4-es gázkazán gondoskodik a lakásban.
A szobákban nagy kopásállóságú szallag parkettával míg az előszobában és a fürdőben járólapokkal lett burkolva a felület. Az ablakok 2 rétégű hang és hőszigetelt műanyag ablakokra lettek cserélve míg a szobákban a nyílászárók cserélve lettek beltéri karcvédett ajtókra tokkal együtt.
A lakás megközelíthetősége kiváló a közeli Ötvenhatosok tere ( István utca ) 74-es és 79-es troli busz és a 30, 30a és 230-as buszok és az m2 és m4 metró Keleti pu megállóinak köszönhetően.
Ne hagyja ki ezt a páratlan lehetőséget, hogy egy frissen a piacra került, stílusos otthonra tegyen szert Pest egyik legpatinásabb részén!
A piacon jelenleg kevés hasonló adottságú, teljes körűen felújított és alacsonyabb áru ingatlan található a Erzsébetváros ezen területén.
Célunk, hogy ügyfeleink számára a legmagasabb színvonalú, személyre szabott lakáshitel-megoldásokat nyújtsuk, maximális kényelmet és biztonságot garantálva. Bankfüggetlen hitelcentrumunk szakértői az ország összes bankjának és hitelintézetének ajánlatait versenyeztetik, díjmentesen, hogy Ön a legkedvezőbb feltételekkel juthasson lakáshitelhez. Tapasztalt munkatársaink az Ön igényeihez igazodva, előre egyeztetett időpontban, akár munkaidőn túl is rendelkezésére állnak, hogy minden kérdésére megnyugtató választ adjanak és segítsék Önt a döntésben. Hitel.hu - Hasonlítsa össze a bankok lakáshitel ajánlatait

