Eladó újszerű állapotú lakás Budapest VII. kerület
| Kedvencbe | Megosztás | Árfigyelő |
| FIX 3% lakáshitelre megvehető | ||
| 91 500 000 HUF | ||
Ingatlan adatai
- Eladó vagy kiadó:Eladó
- Település:Budapest VII. kerület
- Kategória:Lakás
- Alkategória:Tégla
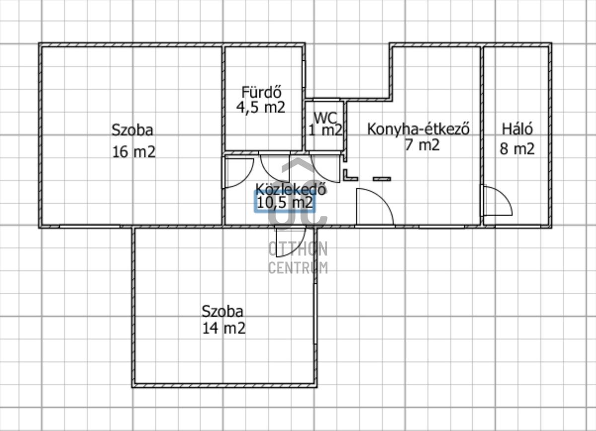
- Alapterület:61 m2
- Csere is:Nem
- Hirdető:Cég
- Élő videón megtekinthető:Nem
- Szobaszám:3
- Állapot:Újszerű, kitűnő
- Hány szintes az ingatlan:nincs megadva
- Komfortosság:nincs megadva
- Hányadik emeleti:nincs megadva
- Lift:Van
- Parkolási lehetőség:nincs megadva
- Fűtés:Gáz (cirko)
- Bútorozottság:nincs megadva
- Fényviszony:nincs megadva
- Tájolás:DK
- Kilátás:Udvari
- Internet:nincs megadva
- Akadálymentesített:nincs megadva
- Energiatanúsítvány:nincs megadva
- Villany:Van
- Víz:Van
- Gáz:Van
- Csatorna:Van
- Üzenetküldés
- Hívás


Hitel ajánlat
Ingatlan hirdetés leírása
Eladó a VII. kerületben, a Damjanich utcában egy jó állapotú h...
Eladó a VII. kerületben, a Damjanich utcában egy jó állapotú három szobás, földszinti társasházi lakás. a lakóközösség kultúrált, a házban csend és nyugalom uralkodik. a házban egy kulcsra zárható füvesített belső kert került alakításra padokkal, ahol feltöltődés vár a munkából fáradtan hazaérkező lakók számára. a lakáshoz két nagy pince tartozik (14 és 16nm), melyek a vételár részét képezik.Kérésére a videós bemutatónkat e-mailben elküldöm.
Pár perc sétával könnyen elérhető bevásárlóközpont, posta, gyógyszertár, buszmegálló és a Városliget.
-Cirkó fűtés
-alacsony közös költség, rezsidíj
-külön fürdőszoba, wc
-szép konyha étkezővel
-tágas szobák
-jó beosztás
Hívjon mihamarabb, nehogy lemaradjon! FIX 3% lakáshitelre megvehető

