Eladó felújítandó lakás - Budapest VII. kerület
- INGYENES HIRDETÉS FELADÁS
Ingatlan adatai
- Eladó vagy kiadó:Eladó
- Település:Budapest VII. kerület
- Kategória:Lakás
- Alkategória:Tégla
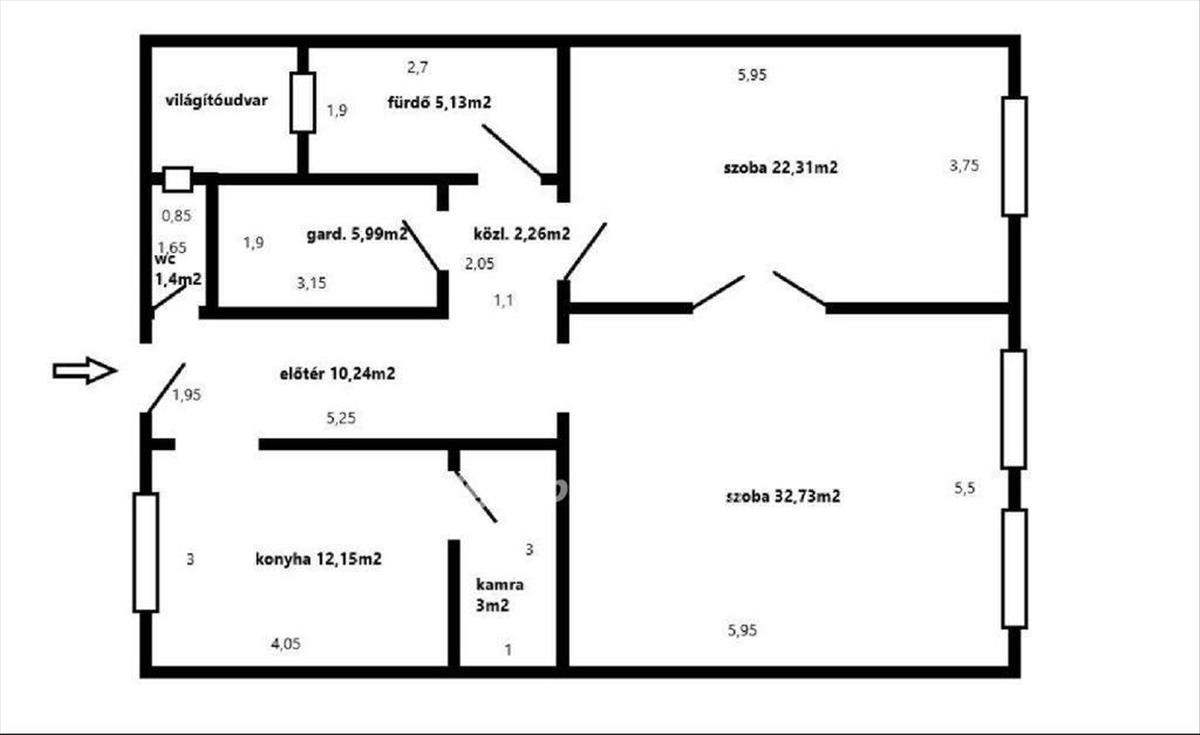
- Alapterület:95 m2
- Csere is:Nem
- Hirdető:Cég
- Élő videón megtekinthető:Nem
- Szobaszám:2
- Állapot:Felújítandó
- Hány szintes az ingatlan:Földszintes
- Komfortosság:nincs megadva
- Hányadik emeleti:Földszint
- Erkély:nincs megadva
- Lift:Van
- Parkolási lehetőség:nincs megadva
- Fűtés:Gáz (konvektor)
- Bútorozottság:nincs megadva
- Fényviszony:Közepes
- Tájolás:nincs megadva
- Kilátás:nincs megadva
- Internet:nincs megadva
- Klíma:nincs megadva
- Akadálymentesített:nincs megadva
- Energiatanúsítvány:D
- Villany:Van
- Víz:Van
- Gáz:nincs megadva
- Csatorna:Van
- Közös költség:34 600 Ft
- Kapcsolatfelvétel

Hitel ajánlatok
Ingatlan hirdetés leírása
Eladó Lakás, Budapest 7. ker.
Budapest VII. kerületében, Ligetvárosban 95 m2-es lakás ELADÓ!
A VII. kerület közkedvelt részen, a Damjanich utcában kínálunk eladásra egy magasföldszinti, 95 m2-es lakást.
Az ingatlan egy téglaépítésű, liftes társasház magasföldszintjén helyezkedik el, a ház kívül-belül rendkívül jó állapotú, rendszeresen karbantartott, jó lakóközösséggel és közös képviselettel rendelkezik.
A lakás jelenleg 2 szobás, azonban könnyen 3 szobássá alakítható, ezzel is növelve az életteret. Minden helysége tágas, külön nyíló.
Állapotát tekintve felújításra szorul, új tulajdonosa saját ízlése szerint alakíthatja.
Utcai nézetének és K-i tájolásának köszönhetően kimondottan világos.
Mind saját, mind befektetési céllal jó választás lehet, hiszen a környék kimondottan jó infrastruktúrával rendelkezik. Az utcában több bevásárlási lehetőség, étterem is található.
Pár perc séta távolságon belül több tömeg közlekedni eszköz is elérhető, buszmegálló, troli.
A Városliget is csupán 10 perc sétára található.
Tehermentes, 1/1-es tulajdonjogú.
Rugalmasan megtekinthető.
Kérdés esetén forduljon hozzám bizalommal, a hét bármely napján!
104900000 Ft
Referencia szám: m320126 Hitel.hu - Hasonlítsa össze a bankok lakáshitel ajánlatait
Tetszett ez az eladó Budapest VII. kerületi felújítandó 2 szobás tégla lakás? Hívd fel a hirdetőt most, és tudj meg mindent erről az eladó tégla lakásról! Ha gondolod nézelődj tovább az eladó lakás Budapest VII. kerület oldal hirdetései között. Ennek az eladó lakásnak az ára 104900000 Ft és mivel az alapterülete 95 négyzetméter, ezért az átlagos négyzetméterára 1104211 HUF/m2.
Az eladó lakások menüpontban további hirdetések között is böngészhetsz. Az összes eladó budapesti lakás hirdetést tartalmazó oldalon tudsz böngészni. Ha van kedved, akkor böngészhetsz a Sasaran-Kereki Katalin összes hirdetése között, vagy akár a/az OTPip Budapest VIII. kerület József körút 72 - OTP Ingatlanpont Iroda összes hirdetése között is.

