Eladó jó állapotú lakás - Budapest VII. kerület
- INGYENES HIRDETÉS FELADÁS
Ingatlan adatai
- Eladó vagy kiadó:Eladó
- Település:Budapest VII. kerület
- Kategória:Lakás
- Alkategória:Tégla
- Alapterület:81 m2
- Csere is:Nem
- Hirdető:Cég
- Élő videón megtekinthető:Nem
- Szobaszám:4 + 4 fél
- Állapot:Jó állapotú
- Hány szintes az ingatlan:2 szintes
- Komfortosság:nincs megadva
- Hányadik emeleti:Földszint
- Erkély:nincs megadva
- Lift:Nincs
- Parkolási lehetőség:nincs megadva
- Fűtés:Gáz (cirko)
- Bútorozottság:nincs megadva
- Fényviszony:Napfényes
- Tájolás:nincs megadva
- Kilátás:nincs megadva
- Internet:nincs megadva
- Klíma:Van
- Akadálymentesített:nincs megadva
- Energiatanúsítvány:nincs megadva
- Villany:Van
- Víz:Van
- Gáz:nincs megadva
- Csatorna:Van
- Közös költség:25 000 Ft
- Kapcsolatfelvétel

Hitel ajánlatok
Ingatlan hirdetés leírása
Eladó Lakás, Budapest 7. ker.
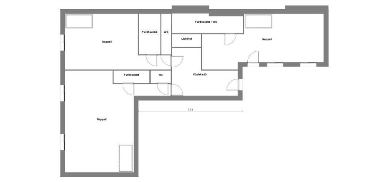
Befektetők figyelem - 3 lakásos, teljesen felújított belső kétszintes ingatlan a Rottenbiller utcában, stabil hosszú távú bérlőkkel és azonnali hozammal
Eladó a VII. kerület frekventált, mégis csendes részén, a Rottenbiller utcában egy 150 nm -es, belső kétszintes polgári lakás, amely 3 különálló lakásként került kialakításra. Az ingatlan 2024-ben teljes körű felújításon esett át, így modern műszaki és esztétikai állapotban várja új tulajdonosát.
Az összes lakás jelenleg hosszú távra bérbe van adva, megbízható bérlőkkel, akik szerződésük lejártáig maradnának, így az ingatlan azonnal magas hozamot termel, minimális kockázat mellett.
Főbb jellemzők:
-150 nm , belső kétszintes kialakítás
-Mindegyik saját fürdőszobával és konyhával
-2, 2 m belmagasság mindkét szinten
-Gázcirkó fűtés radiátoros hőleadással
-Klíma mindhárom lakásban, teljes komfort
-Teljes körű felújítás éve: 2024
-Stabil hosszú távú bérlők, akik maradnának a szerződések végéig
-Közlekedés: pár perc sétára a Keleti pályaudvar, metrók, villamosok, buszok könnyen elérhetők
-Kiváló lokáció: egyetemek, irodák, szolgáltatások, közlekedési csomópontok közelsége
M314113
Az OTP Ingatlanpont, mint egyetlen közvetlen banki hátterű ingatlanközvetítő társaság teljes körű ügyintézéssel áll az eladók és a vevők rendelkezésére! a kínálatunkból választott ingatlan finanszírozásához minősített fogyasztóbarát, piaci és kedvezményes hitel- és lízingkonstrukciókat kínálunk (lakásvásárlási hitel, CSOK plusz, szabad felhasználású hitel, babaváró hitel, céges hitelek, pályázatok, amennyiben az ügyfél és az ingatlan megfelel a feltételeknek). Az adásvételi szerződés megkötéséhez igény szerint megbízható ügyvédi közreműködést biztosítunk, és segítséget nyújtunk az adásvételhez kapcsolódó egyéb ügyek intézéséhez. Ha az új ingatlana megvásárlásához a jelenlegi ingatlanát el kell adnia, abban is szívesen segítünk.
Referencia szám: m314113-ml Hitel.hu - Hasonlítsa össze a bankok lakáshitel ajánlatait
Tetszett ez az eladó Budapest VII. kerületi jó állapotú 4 egész és 4 fél szobás tégla lakás? Hívd fel a hirdetőt most, és tudj meg mindent erről az eladó tégla lakásról! Ha gondolod nézelődj tovább az eladó lakás Budapest VII. kerület oldal hirdetései között. Ennek az eladó lakásnak az ára 180000000 Ft és mivel az alapterülete 81 négyzetméter, ezért az átlagos négyzetméterára 2222222 HUF/m2.
Az eladó lakások menüpontban további hirdetések között is böngészhetsz. Az összes eladó budapesti lakás hirdetést tartalmazó oldalon tudsz böngészni. Ha van kedved, akkor böngészhetsz a Takács Zsuzsanna összes hirdetése között, vagy akár a/az OTPip Budapest XIII. kerület Lehel utca 50 - OTP Ingatlanpont Iroda összes hirdetése között is.

