Eladó új építésű lakás Budapest VII. kerület
| Kedvencbe | Megosztás | Árfigyelő |
| Kedvezményes lakáshitel ajánlatok | ||
| 103 600 000 HUF | ||
Ingatlan adatai
- Eladó vagy kiadó:Eladó
- Település:Budapest VII. kerület
- Kategória:Lakás
- Alkategória:Tégla
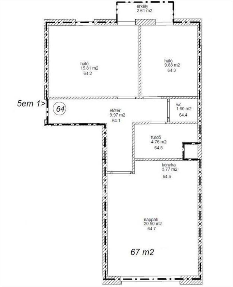
- Alapterület:67 m2
- Csere is:Nem
- Hirdető:Cég
- Élő videón megtekinthető:Nem
- Szobaszám:3
- Állapot:Új építésű
- Hány szintes az ingatlan:Földszintes
- Komfortosság:nincs megadva
- Hányadik emeleti:5
- Lift:Van
- Parkolási lehetőség:nincs megadva
- Fűtés:Elektromos
- Bútorozottság:nincs megadva
- Fényviszony:Jó
- Tájolás:nincs megadva
- Kilátás:nincs megadva
- Internet:nincs megadva
- Akadálymentesített:nincs megadva
- Energiatanúsítvány:D
- Villany:Van
- Víz:Van
- Gáz:nincs megadva
- Csatorna:Van
- Üzenetküldés
- Hívás

Referencia szám: M239359

Hitel ajánlat
Ingatlan hirdetés leírása
Eladó Lakás, Budapest 7. ker.
Hamarosan átadásra kerülő újépítésű lakások eladók a Keleti pályaudvar közelében. Kínálatunk 33nm-es garzontól a 98nm-es 4 szobásig terjed.A központi elhelyezkedés miatt a befektetésre is kiválóan alkalmas ingatlanok egy liftes, 6 emeletes társasházban találhatóak.
Az OTP Ingatlanpont teljes körű ügyintézéssel áll az eladók és a vevők rendelkezésére! Az ingatlan finanszírozásához kedvezményes hitel- és lízingkonstrukciókat, lakástakarék-pénztári megoldásokat kínálunk.
További információkért kérem hívjon vagy írjon! Hitel.hu - Hasonlítsa össze a bankok lakáshitel ajánlatait

