Eladó jó állapotú lakás - Budapest VII. kerület
- INGYENES HIRDETÉS FELADÁS
Ingatlan adatai
- Eladó vagy kiadó:Eladó
- Település:Budapest VII. kerület
- Kategória:Lakás
- Alkategória:Tégla
- Alapterület:165 m2
- Csere is:Nem
- Hirdető:Cég
- Élő videón megtekinthető:Nem
- Szobaszám:5
- Állapot:Jó állapotú
- Hány szintes az ingatlan:nincs megadva
- Komfortosság:nincs megadva
- Hányadik emeleti:1
- Erkély:Van
- Lift:nincs megadva
- Parkolási lehetőség:nincs megadva
- Fűtés:Gáz (cirko)
- Bútorozottság:nincs megadva
- Fényviszony:nincs megadva
- Tájolás:ÉNY
- Kilátás:Utcai
- Internet:nincs megadva
- Klíma:nincs megadva
- Akadálymentesített:nincs megadva
- Energiatanúsítvány:nincs megadva
- Villany:Van
- Víz:Van
- Gáz:Van
- Csatorna:Van
- Közös költség:37 000 Ft
- Kapcsolatfelvétel

Hitel ajánlatok
Ingatlan hirdetés leírása
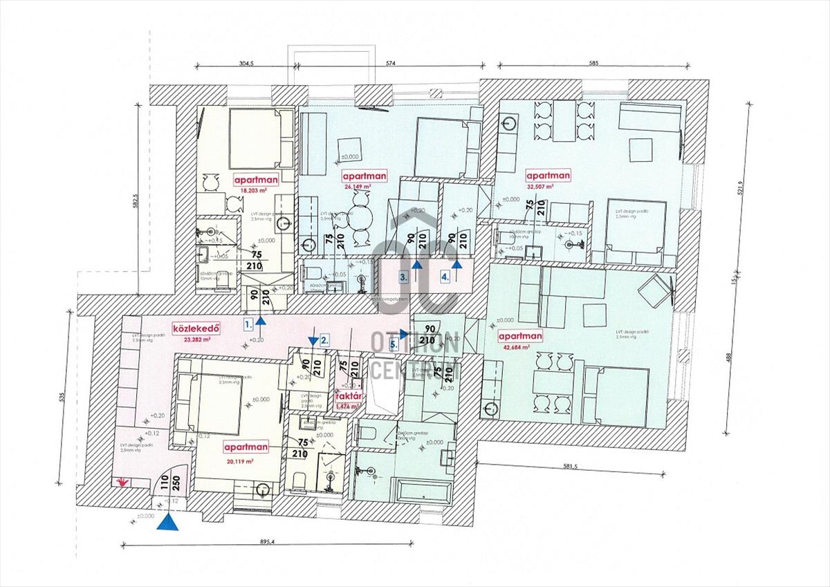
Eladó ÖT APARTMANBÓL álló erkélyes saroklakás Belső Erzsébetvá...
Eladó öt apartmanból álló erkélyes saroklakás Belső Erzsébetvárosban, a Kertész utcában.
Az ingatlan 164 m2-es, i. emeleti, egy századfordulós épületben található.
Jelenleg rövidtávú kiadással történik a hasznosítása, az apartmanok nagysága: 43 m2, 32. 5 m2, 26 m2, 20 m2 és 18 m2.
Minden apartmanhoz saját fürdőszoba és konyha tartozik. Négynek az ablakai utcára, egynek pedig az udvar felé néznek.
Kitűnő közlekedési adottságok, 4-6-os villamos megállója fél perc sétára található.
A környéken számos kávézó és étterem található, megannyi programlehetőséggel, Budapest kiemelt turisztikai célpontja. Hitel.hu - Hasonlítsa össze a bankok lakáshitel ajánlatait
Tetszett ez az eladó Budapest VII. kerületi jó állapotú 5 szobás tégla lakás? Hívd fel a hirdetőt most, és tudj meg mindent erről az eladó tégla lakásról! Ha gondolod nézelődj tovább az eladó lakás Budapest VII. kerület oldal hirdetései között. Ennek az eladó lakásnak az ára 215000000 Ft és mivel az alapterülete 165 négyzetméter, ezért az átlagos négyzetméterára 1303030 HUF/m2.
Az eladó lakások menüpontban további hirdetések között is böngészhetsz. Az összes eladó budapesti lakás hirdetést tartalmazó oldalon tudsz böngészni. Ha van kedved, akkor böngészhetsz a Zala György összes hirdetése között, vagy akár a/az Otthon Centrum VIII. kerület - József körút összes hirdetése között is.

