Eladó újszerű állapotú lakás - Budapest VII. kerület (63721328)
ELADÓ INGATLANOK
KIADÓ INGATLANOK
CSERE INGATLANOK
KÜLFÖLDI INGATLANOK
RÉSZLETES KERESÉS
INGATLAN HÍREK
HIRDETÉS FELADÁS
BELÉPÉS
REGISZTRÁCIÓ
hirdetés 1. fotó
hirdetés 2. fotóhirdetés 3. fotó
hirdetés 4. fotóhirdetés 5. fotó
hirdetés 6. fotó
+ 13 fotó
hirdetés 7. fotó
+ 10 fotó
hirdetés 7. fotóhirdetés 8. fotóhirdetés 9. fotóhirdetés 10. fotóhirdetés 11. fotóhirdetés 12. fotóhirdetés 13. fotóhirdetés 14. fotóhirdetés 15. fotóhirdetés 16. fotó

Ingatlan adatai

  • Eladó vagy kiadó:Eladó
  • Település:Budapest VII. kerület
  • Kategória:Lakás
  • Alkategória:Tégla
  • Alapterület:41 m2
  • Csere is:Nem
  • Hirdető:Cég
  • Élő videón megtekinthető:Nem
  • Szobaszám:1
  • Állapot:Újszerű, kitűnő
  • Hány szintes az ingatlan:Földszintes
  • Komfortosság:nincs megadva
  • Hányadik emeleti:1
  • Erkély:nincs megadva
  • Lift:Van
  • Parkolási lehetőség:Utcán
  • Fűtés:Gáz (cirko)
  • Bútorozottság:Bútorozott
  • Fényviszony:
  • Tájolás:DK
  • Kilátás:nincs megadva
  • Internet:nincs megadva
  • Klíma:nincs megadva
  • Akadálymentesített:nincs megadva
  • Energiatanúsítvány:nincs megadva
  • Villany:Van
  • Víz:Van
  • Gáz:nincs megadva
  • Csatorna:Van
  • Közös költség:13 000 Ft
  • Kapcsolatfelvétel
Kiss Ildikó Mária
Kiss Ildikó Mária
+36-(30)-950-8889
Mondd meg a hirdetőnek, hogy a megveszLAK-on találtad a hirdetést.
Referencia szám: M323028
Érdekel kedvezményes lakáshitel ajánlat is
Az ASZF-et és az Adatkezelési tájékoztatót elfogadom

Hitel ajánlatok

 

Ingatlan hirdetés leírása

Eladó Lakás, Budapest 7. ker.


***Vii. kerület, dohány utcában, a kőrúton belül, felújított, galériás, berendezett garzon eladó! ***

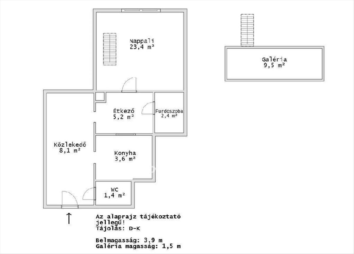
Ez a nagypolgári stílusban épült lakás a tulajdoni lapon 41 m2-es, a valóságban viszont 44 m2 alapterületű!
Az ingatlanoz egy kényelmes méretű galéria is tartozik, így a hasznos élettér ennél is nagyobb.
A közel 4 méteres belmagasság tágas, levegős érzetet biztosít, a galéria kiválóan használható hálórészként vagy dolgozósarokként, így a nappali teljes értékű élettér marad.

A lakás asztalos által méretre gyártott bútorokkal, gardrób szekrényekkel berendezett, amelyek a vételár részét képezik.
Egy egyszerű tisztasági festés után szinte teljesen új állapotú otthont kapunk, az ingatlan gondosan karbantartott és azonnal költözhető.

A DK-i tájolásnak köszönhetően a lakás kifejezetten világos és napfényes, ami egész nap kellemes hangulatot teremt.

Az ingatlan kiválóan alkalmas első lakásnak, pároknak, egyedülállóaknak, vagy befektetőknek a lakás könnyű kiadhatósága miatt.

KIVÁLÓ elhelyezkedés és kitűnő közlekedés jellemzi az ingatlant, mivel minden karnyújtásnyira megtalálható, ami a kényelmes nagyvárosi élethez szükséges, az m2 metró Astoria és Blaha Lujza tér megállója, valamint számos busz és villamosjárat, így a város bármely pontja gyorsan megközelíthető.
A környéken éttermek, kávézók, üzletek, egyetemek, kulturális és szórakozási lehetőségek széles választéka található.

Ha szereti a belváros pezsgését, de hazaérve egy nyugodt környezetre vágyik, akkor ez a lakás teljes mértékben megfelelő az ön igényeinek.

Ha ingatlan vásárlásával egy értékálló befektetést is szeretne egyben, akkor ez egy remek lehetőség az ön számára.

Az OTP Ingatlanpont, mint egyetlen közvetlen banki hátterű ingatlanközvetítő társaság teljes körű ügyintézéssel és kedvezményes pénzügyi konstrukciókkal áll ügyfelei rendelkezésére!
VIP-szolgáltatást nyújtunk az OTP-hiteltermékek ügyintézésében.
Jogi és pénzügyi segítséget nyújtanak szakértőink, hogy az adásvétel folyamata gördülékeny legyen.

Ha felkeltette érdeklődését az ingatlan, kérem, hívjon bizalommal akar hétvégén is! Hitel.hu - Hasonlítsa össze a bankok lakáshitel ajánlatait

Tetszett ez az eladó Budapest VII. kerületi újszerű állapotú 1 szobás tégla lakás? Hívd fel a hirdetőt most, és tudj meg mindent erről az eladó tégla lakásról! Ha gondolod nézelődj tovább az eladó lakás Budapest VII. kerület oldal hirdetései között. Ennek az eladó lakásnak az ára 67900000 Ft és mivel az alapterülete 41 négyzetméter, ezért az átlagos négyzetméterára 1656098 HUF/m2.

Az eladó lakások menüpontban további hirdetések között is böngészhetsz. Az összes eladó budapesti lakás hirdetést tartalmazó oldalon tudsz böngészni. Ha van kedved, akkor böngészhetsz a Kiss Ildikó Mária összes hirdetése között, vagy akár a/az OTPip Budapest II. kerület Szépvölgyi út 2 - OTP Ingatlanpont Iroda összes hirdetése között is.

 
 
© megveszLAK.hu - Az egyszerűen jó ingatlan hirdetési oldal