Eladó jó állapotú lakás - Budapest VII. kerület
- INGYENES HIRDETÉS FELADÁS
Ingatlan adatai
- Eladó vagy kiadó:Eladó
- Település:Budapest VII. kerület
- Kategória:Lakás
- Alkategória:Tégla
- Alapterület:76 m2
- Csere is:Nem
- Hirdető:Cég
- Élő videón megtekinthető:Nem
- Szobaszám:3
- Állapot:Jó állapotú
- Hány szintes az ingatlan:3 szintes
- Komfortosság:nincs megadva
- Hányadik emeleti:3
- Erkély:nincs megadva
- Lift:nincs megadva
- Parkolási lehetőség:Utcán
- Fűtés:Gáz (cirko)
- Bútorozottság:nincs megadva
- Fényviszony:nincs megadva
- Tájolás:nincs megadva
- Kilátás:nincs megadva
- Internet:nincs megadva
- Klíma:nincs megadva
- Akadálymentesített:nincs megadva
- Energiatanúsítvány:nincs megadva
- Villany:nincs megadva
- Víz:nincs megadva
- Gáz:nincs megadva
- Csatorna:nincs megadva
- Közös költség:25 000 Ft
- Kapcsolatfelvétel

Balogh Zsuzsa
+36-(20)-800-8886
Mondd meg a hirdetőnek, hogy a megveszLAK-on találtad a hirdetést.
Hitel ajánlatok
Ingatlan hirdetés leírása
Eladó pár éve teljeskörűen felújított, napfényes, 76 m² lakás....
Eladó pár éve teljeskörűen felújított, napfényes, 76 m² lakás.
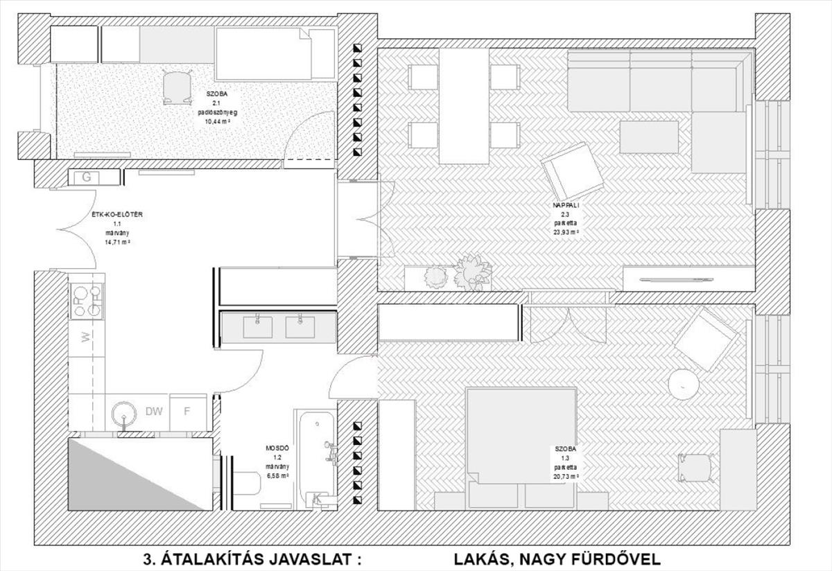
Jelenleg két külön bejáratú LAKÁSként funkcionál.
Méretük: 39, 66 m² és 36, 59 m².
Városliget, Keleti Pályaudvar 5 perc séta – Ideális otthonnak, irodának, befektetésnek!
Ne hagyja ki ezt a különleges lehetőséget! Az ingatlan ideális fiatal pároknak, egyetemista testvérpárnak, otthonról dolgozóknak, akik szeretnék elkülöníteni a lakóteret az irodától. Kiváló választás befektetésnek, hiszen a két külön bejáratú lakás azonnali két lakbér bevételt biztosít.
Igény esetén a két lakás könnyen egybe is nyitható, így egy 3 szobás, tágas lakást kapunk. Átalakításnál múszaki rész kiépített, nem igényel plusz munkát.
1. Lakás: 39, 66 m²
Szoba: 23, 93 m²
Előtér és konyha: 11, 98 m²
Fürdőszoba: 3, 75 m²
2. Lakás: 36, 59 m²
Szoba: 20, 73 m²
Előtér és konyha: 12, 24 m²
Fürdőszoba: 3, 62 m²
Miért érdemes ezt választani?
✅Két külön bérlemény, dupla bevétel: Az ingatlan jelenleg két lakásként üzemel, így az új tulajdonos azonnal két bérleti díjra számíthat.
✅Tökéletes otthoni iroda elrendezés: Egyik lakás otthonnak, a másik pedig irodának használható – ideális azoknak, akik otthonról dolgoznak.
✅Kiváló közlekedés: a Keleti Pályaudvar, Városliget, Garay téri piac, üzletek, boltok, éttermek, kórház, iskolák, mind csupán pár percre találhatóak gyalogosan is.
✅Friss felújítás, magas műszaki tartalom: a lakás gépészeti és elektromos rendszere teljes körűen felújításra került, beleértve a Bosch kondenzációs kazánt, új villanyhálózatot és bővített áramkapacitást. Az új konyha, márvány padlóburkolatok, és strapabíró felületek mind hozzájárulnak a lakás prémium érzetéhez.
A lakás műszaki tartalma:
✅Új Bosch kondenzációs kazán, duplacsöves kémény
✅Teljes elektromos és gépészeti felújítás
✅ ikea konyha tömörfa munkalappal
✅Márvány padlóburkolatok a konyhában és a fürdőszobákban
✅Két vízóra, új radiátorok szabályozószelepekkel
Tekintse meg ezt a kiváló paraméterekkel, adottságokkal rendelkező ingatlant, amely egy tisztasági festés után azonnal költözhető, kiadható.
Bútorokkal, gépesítve, számtalan lehetőséggel!
Rugalmasan nézhető. Hívjon, kérdezzen, nézzük meg!
B. Zs. FIX 3% lakáshitelre megvehető
Tetszett ez az eladó Budapest VII. kerületi jó állapotú 3 szobás tégla lakás? Hívd fel a hirdetőt most, és tudj meg mindent erről az eladó tégla lakásról! Ha gondolod nézelődj tovább az eladó lakás Budapest VII. kerület oldal hirdetései között. Ennek az eladó lakásnak az ára 99500000 Ft és mivel az alapterülete 76 négyzetméter, ezért az átlagos négyzetméterára 1309211 HUF/m2.
Az eladó lakások menüpontban további hirdetések között is böngészhetsz. Az összes eladó budapesti lakás hirdetést tartalmazó oldalon tudsz böngészni. Ha van kedved, akkor böngészhetsz a Balogh Zsuzsa összes hirdetése között, vagy akár a/az GDN Ingatlanhálózat összes hirdetése között is.

