Eladó újszerű állapotú lakás - Budapest VII. kerület
- INGYENES HIRDETÉS FELADÁS
Ingatlan adatai
- Eladó vagy kiadó:Eladó
- Település:Budapest VII. kerület
- Kategória:Lakás
- Alkategória:Tégla
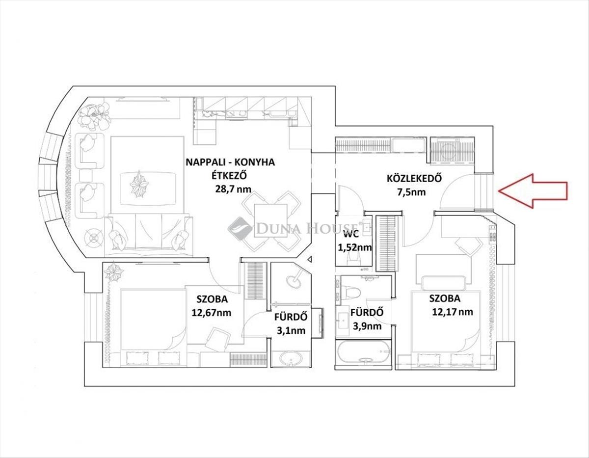
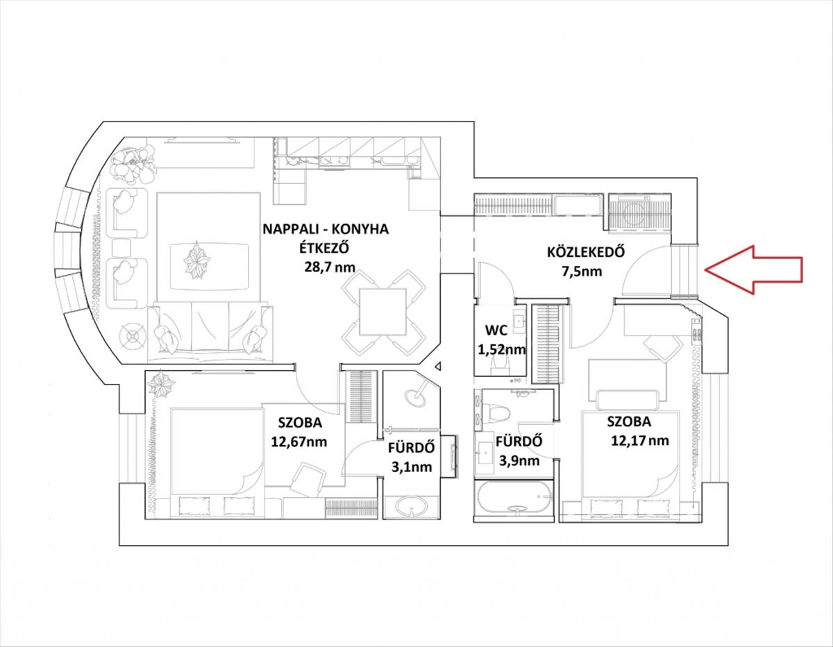
- Alapterület:70 m2
- Csere is:Nem
- Hirdető:Cég
- Élő videón megtekinthető:Nem
- Szobaszám:3
- Állapot:Újszerű, kitűnő
- Hány szintes az ingatlan:Földszintes
- Komfortosság:nincs megadva
- Hányadik emeleti:2
- Erkély:nincs megadva
- Lift:Van
- Parkolási lehetőség:nincs megadva
- Fűtés:Gáz (cirko)
- Bútorozottság:Bútorozott
- Fényviszony:Napfényes
- Tájolás:NY
- Kilátás:nincs megadva
- Internet:nincs megadva
- Klíma:Van
- Akadálymentesített:nincs megadva
- Energiatanúsítvány:D
- Villany:Van
- Víz:Van
- Gáz:nincs megadva
- Csatorna:Van
- Kapcsolatfelvétel

Hitel ajánlatok
Ingatlan hirdetés leírása
Eladó lakás, Budapest 7. ker.
Költözhető lakás teljes berendezéssel!
Budapest 7. kerületében, az egyik legkedveltebb utcában, gyönyörűen és teljeskörűen felújított állapotban kínáljuk eladásra ezt a 2. emeleti, 70 nm -es lakást, teljes bútorzattal, gépesített konyhával!
Az ingatlan 70 m²-es, és a terei zseniális újragondolásának köszönhetően helyet kapott benne egy tágas nappali-étkező-konyha, 2 hálószoba, 2 fürdőszoba, egy vendég wc és a megérkezéshez egy tágas előszoba.
A felújítás során modern gépészeti megoldásokat és szemet gyönyörködtető design-elemeket használnak fel, kétségtelenül egy prémium lakás alakul ki az átépítés nyomán. a fotók az elkészült állapotot mutatják, a felújítás a napokban fejeződött be!
A fűtés gáz cirkó kazánnal működik, a nyílászárók cseréje is megtörténik. a mennyezetre elegáns rejtett világítás kerül, otthonos hangulatot teremtve a belső terekben. a konyha teljes bútorzattal és beépített gépekkel, illetve a teljes lakás bútorozottan kerül átadásra.
A társasház egy nagyon jó állapotú, liftes épület, mely eredeti szépségében őrzi a korabeli építészeti stílust. Fontos lehet befektetésben gondolkodó vásárlóknak, hogy a rövid távú kiadás engedélyezett a házban, így az ingatlan airbnb céljára is tökéletes, amit rendkívül jól támogat a lakásban található 2 fürdőszoba, amelyek közvetlenül a hálószobákból nyílnak, tökéletes intim tereket alakítva ki.
Budapestnek ez a része mindamellett, hogy szerves része a belváros lüktetésének, a lakás tökéletesen alkalmas egy családi otthonnak is, rendezett környezetének köszönhetően. a környék kiváló tömegközlekedéssel rendelkezik: a 4-es és 6-os villamos, a metró, valamint számos busz és troli pár perces sétával elérhető.
Ez a lakás tökéletes választás azoknak, akik exkluzív otthont keresnek, vagy befektetésként rövid és hosszú távú kiadásban gondolkodnak.
A lakás azonnal birtokbavehető!
A részletekért keressen bizalommal!
Irányár: 159000000 Ft
Várom a hívását, ha bármelyik ingatlannal kapcsolatban érdeklődik! Ha meghagyja a telefonszámát, visszahívom. :)
Puskás Margó (+36 30 415 3675)
Referencia szám: lk080357-ml Hitel.hu - Hasonlítsa össze a bankok lakáshitel ajánlatait
Tetszett ez az eladó Budapest VII. kerületi újszerű állapotú 3 szobás tégla lakás? Hívd fel a hirdetőt most, és tudj meg mindent erről az eladó tégla lakásról! Ha gondolod nézelődj tovább az eladó lakás Budapest VII. kerület oldal hirdetései között. Ennek az eladó lakásnak az ára 159000000 Ft és mivel az alapterülete 70 négyzetméter, ezért az átlagos négyzetméterára 2271429 HUF/m2.
Az eladó lakások menüpontban további hirdetések között is böngészhetsz. Az összes eladó budapesti lakás hirdetést tartalmazó oldalon tudsz böngészni. Ha van kedved, akkor böngészhetsz a Domjánné Puskás Margit összes hirdetése között, vagy akár a/az Duna House Budakalász összes hirdetése között is.

