- >>
- eladó ingatlanok
- >>
- eladó lakás
- >>
- eladó lakás Budapest VII. kerület
- >>
Eladó új építésű lakás - Budapest VII. kerület
| | |||
| Kedvencnek jelölöm | Elküldöm emailben | Megosztás | Szavazás |
| Kedvezményes lakáshitel ajánlatok | |||
| 119 900 000 HUF | |||
Ingatlan adatai
- Eladó vagy kiadó:Eladó
- Település:Budapest VII. kerület
- Kategória:Lakás
- Alkategória:Tégla
- Alapterület:104 m2
- Csere is:Nem
- Hirdető:Cég
- Élő videón megtekinthető:Nem
- Szobaszám:3
- Állapot:Új építésű
- Hány szintes az ingatlan:nincs megadva
- Komfortosság:nincs megadva
- Hányadik emeleti:nincs megadva
- Lift:Van
- Parkolási lehetőség:nincs megadva
- Fűtés:Elektromos
- Bútorozottság:nincs megadva
- Fényviszony:nincs megadva
- Tájolás:ÉK
- Kilátás:Udvari
- Internet:nincs megadva
- Akadálymentesített:nincs megadva
- Energiatanúsítvány:nincs megadva
- Villany:Van
- Víz:Van
- Gáz:Nincs
- Csatorna:Van
- Üzenetküldés
- Hívás


Hitel ajánlat
Ingatlan hirdetés leírása
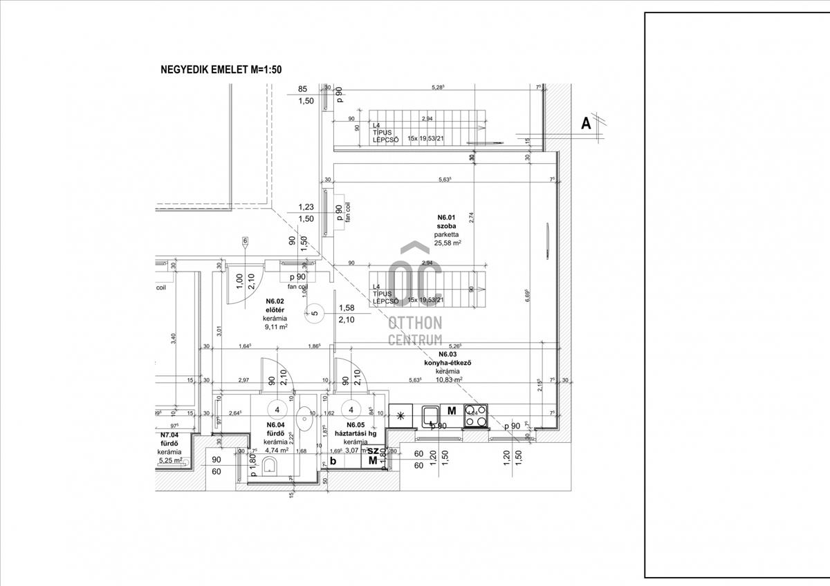
VII. New York Kávéházhoz közel, liftes társasház legfelső 4. e...
VII. New York Kávéházhoz közel, liftes társasház legfelső 4. emeletén új építésű belső kétszintes lakás eladó.-Nettó 73nm,
-alsó szint: 1 nappali, fürdőszoba +Wc, konyha étkezővel, előtér, háztartási helyiség,
-emelet: 2 hálószoba, 1 mosdó, gardrob helyiség.
- Igényes kivitelezés,
- hűtő-fűtő klíma,
- csendes, világos
- belső udvari nézet
A közelben minden megtalálható, ami a kényelmes belvárosi életet szolgálja.
#Belváros#újépítés#kedvezőár#belsőkétszint#jóközlekedés#modern#luxus# Hitel.hu - Hasonlítsa össze a bankok lakáshitel ajánlatait

