Eladó újszerű állapotú lakás Budapest VII. kerület
| Kedvencbe | Megosztás | Árfigyelő |
| Kedvezményes lakáshitel ajánlatok | ||
| 145 900 000 HUF | ||
Ingatlan adatai
- Eladó vagy kiadó:Eladó
- Település:Budapest VII. kerület
- Kategória:Lakás
- Alkategória:Tégla
- Alapterület:71 m2
- Csere is:Nem
- Hirdető:Cég
- Élő videón megtekinthető:Nem
- Szobaszám:5
- Állapot:Újszerű, kitűnő
- Hány szintes az ingatlan:nincs megadva
- Komfortosság:nincs megadva
- Hányadik emeleti:nincs megadva
- Lift:Van
- Parkolási lehetőség:nincs megadva
- Fűtés:Elektromos
- Bútorozottság:nincs megadva
- Fényviszony:nincs megadva
- Tájolás:D
- Kilátás:Utcai
- Internet:nincs megadva
- Akadálymentesített:nincs megadva
- Energiatanúsítvány:nincs megadva
- Villany:Van
- Víz:Van
- Gáz:nincs megadva
- Csatorna:Van
- Közös költség:24 850 Ft
- Üzenetküldés
- Hívás


Hitel ajánlat
Ingatlan hirdetés leírása
Budapest VII. kerületében, Belső_Erzsébetvárosban a Klauzál té...
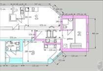
Budapest VII. kerületében, Belső_Erzsébetvárosban a Klauzál térnél, rendezett házban eladó egy magasföldszinti, 71 m2-es lakás, melyet három önálló lakássá osztottak.Az utolsó simítások vannak csak hátra a teljes körű felújításból, aminek köszönhetően szó szerint mindent kicserélnek, csak a határoló- és teherhordó falak maradnak.
A beruházó sokadik hasonló projektje az itteni, a közelben számos referenciát tudok mutatni.
A lakások magas műszaki tartalommal, modern, fiatalos dizájnnal kerülnek átadásra. Az ár részét képezik a hűtő-fűtő klímák, a konyhabútor beépített gépészettel (főzőlap, sütő, mikró, elszívó), az összes lámpatest és rejtett hangulatvilágítás.
Az ingatlant saját részre és befektetőknek is ajánlom, hiszen tömegközlekedéssel nagyjából minden elérhető negyed órán belül, fenntartása nagyon kedvező, így könnyen kiadható.
Az ügyvédi költséget az eladó vállalja.
Jelen projekt lakásai:
1 db 26 m2-es, nappali + 1 szobás, udvari nézet, 51 mFt
1 db 21 m2-es, 1 szobás + galériás (6m2), utcai nézet, 44, 9 mFt
1 db 24 m2-es, nappali + 1 szobás, utcai nézet, 51 mFt
Egyben (145, 9 mFt-ért) és lakásonként is megvásárolható.
A belmagasság 340 cm, így a galéria hasznos belmagassága kb. 130 Cm lesz.
A közös költség nagyon kedvező, mindössze 350 Ft / m2.
1/1 Tulajdonos, per-, teher- és igénymentes, azonnal költözhető.
Egyedi igényekre szabott lakás- és/vagy vállalkozói hitelekkel állunk rendelkezésére. Bankfüggetlen hitelcentrumunk az országban elérhető összes bank és hitelintézet ajánlatát versenyezteti az Ön számára díjmentesen. Munkatársaink nagy szakmai tapasztalattal várják Önt az előre egyeztetett időpontban akár a normál munkaidő után is.
Bővebb információért és a megtekintéssel kapcsolatban hívjon bizalommal akár hétvégén is! Hitel.hu - Hasonlítsa össze a bankok lakáshitel ajánlatait

