Eladó felújítandó lakás - Budapest VII. kerület
- INGYENES HIRDETÉS FELADÁS
Ingatlan adatai
- Feladva:4 hónapja a megveszLAK-on
- Eladó vagy kiadó:Eladó
- Település:Budapest VII. kerület
- Kategória:Lakás
- Alkategória:Tégla
- Alapterület:146 m2
- Csere is:Nem
- Hirdető:Magánszemély
- Élő videón megtekinthető:Nem
- Szobaszám:3
- Állapot:Felújítandó
- Hány szintes az ingatlan:5 szintes
- Komfortosság:nincs megadva
- Tetőtéri:Nem
- Kertkapcsolatos:Nem
- Hányadik emeleti:4
- Erkély:Van
- Lift:Van
- Parkolási lehetőség:nincs megadva
- Fűtés:Cserépkályha
- Bútorozottság:nincs megadva
- Fényviszony:Jó
- Tájolás:ÉNY
- Kilátás:Utcai
- Internet:nincs megadva
- Klíma:Van
- Akadálymentesített:nincs megadva
- Energiatanúsítvány:nincs megadva
- Villany:Van
- Víz:Van
- Gáz:Van
- Csatorna:Van
- Kapcsolatfelvétel

Orsolya
+36-(70)-370-7670
Mondd meg a hirdetőnek, hogy a megveszLAK-on találtad a hirdetést.
Hitel ajánlatok
Ingatlan hirdetés leírása
Polgári elegancia, befektetési lehetőség, Ligetváros
Polgári elegancia, befektetési lehetőség a Városliget szomszédságában
Vannak lakások, amelyeknek lelkük van. Ez az 1910-ben épült, 146 m2-es, liftes házban található otthon pont ilyen. a tágas, körbejárható terek és a 3, 5m belmagasság a klasszikus budapesti nagypolgári életérzést idézik, amit két gyönyörű cserépkályha tesz teljessé.
Békés együttélés – kompromisszumok nélkül:
Az ingatlan egyik legnagyobb kincse az elrendezése. Az előszobából nyíló szeparált szoba tökéletes megoldást kínál:
•Több generáció együttélésére, ahol a külön és az együtt töltött idő egyaránt adott.
•Egyetemista gyermeknek, aki saját életritmusát élheti, anélkül, hogy zavarná a többieket.
•Irodának vagy rendelőnek: a reprezentatív terek és a központi elhelyezkedés miatt. Az okos elosztás miatt akár iroda+lakás kombinációnak
•Luxusrezidenciának: ahol a modern design találkozik a 20. Század eleji eleganciával.
Az ingatlan főbb jellemzői:
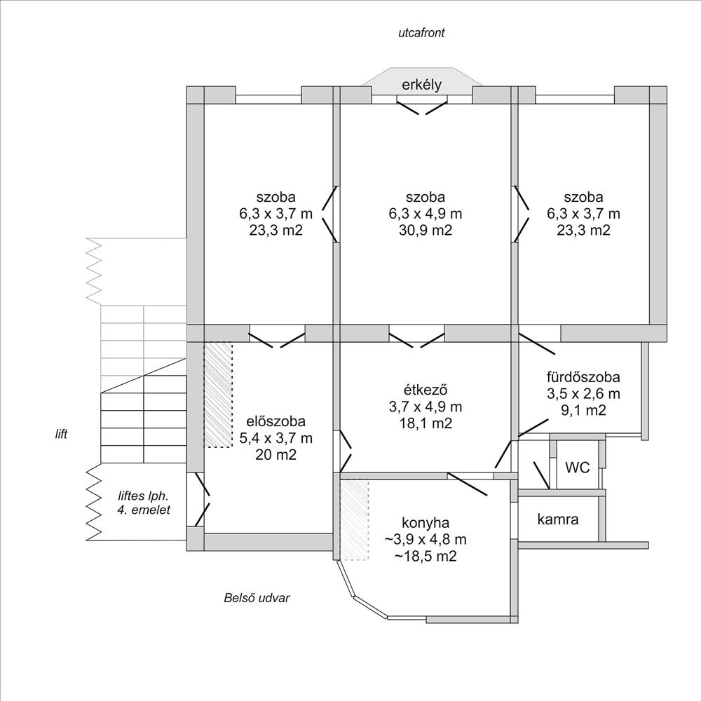
•Alapterület: 146 m2, tágas, körbejárható terek.
•Elosztás: Előszoba, étkező, nappali, 2 szoba, fürdőszoba, wc, konyha, kamra
•Állapot: Felújítandó – kiváló alap egy luxuslakás vagy reprezentatív iroda kialakításához.
•Hangulat: Nagy belmagasság, klasszikus stílusjegyek és két patinás cserépkályha.
•Belmagasság: Klasszikus nagypolgári méretek, amelyek tovább növelik a térérzetet.
•Fűtés/hűtés: gázossá alakított cserépkályhák, mely az ingatlan ékköve lehet, a nappaliban légkondicionáló
•Kilátás és Erkély: a nappaliból nyílik az erkély, amely a Damjanich utcára néz. Különlegessége, hogy jobbra tekintve ellátni egészen a Városligetig, így a zöldövezet közelsége vizuálisan is jelen van.
Az épület:
•Mauthner Ödön megrendelésére 1910/11-ben Bíró Imre tervei szerint épült ötemeletes premodern lakóház. Mozgalmas homlokzat, részben beépített tetőtérrel, íves zárterkély- párral és díszes, kovácsoltvas kapuval, mely felett virágot öntöző gyermekek domborműve látható, mely közvetlen utalás Mauthner Ödön magkereskedésére és a kertészet iránti rajongására.
Környék és Közlekedés:
•A lokáció verhetetlen! Pár perc sétatávolságra található a Városliget, a Keleti pályaudvar, karnyújtásnyira pedig Spar, gyógyszertár biztosítja a kényelmet.
•Városliget: Rövid sétatávolságra található, de a 70-es tolival percek alatt elérhető.
•Csomópont: a Keleti pályaudvar közelsége (rövid séta vagy 78-as troli) miatt a tömegközlekedés minden irányba (metrók, buszok, vonatok) kiváló.
A Városliget folyamatos megújulása garantálja az értékállóságot.
Ne maradjon le erről a ritka lehetőségről a Városliget szomszédságában! Az ingatlan magánszemélytől, közvetlenül a tulajdonosoktól eladó, nem ügynökségen keresztül. Hitel.hu - Hasonlítsa össze a bankok lakáshitel ajánlatait
Tetszett ez az eladó Budapest VII. kerületi felújítandó 3 szobás tégla lakás? Hívd fel a hirdetőt most, és tudj meg mindent erről az eladó tégla lakásról! Ha gondolod nézelődj tovább az eladó lakás Budapest VII. kerület oldal hirdetései között. Ennek az eladó lakásnak az ára 204400000 Ft és mivel az alapterülete 146 négyzetméter, ezért az átlagos négyzetméterára 1400000 HUF/m2.
Az eladó lakások menüpontban további hirdetések között is böngészhetsz. Az összes eladó budapesti lakás hirdetést tartalmazó oldalon tudsz böngészni. Ha van kedved, akkor böngészhetsz a Orsolya összes hirdetése között.

