Eladó újszerű állapotú lakás - Budapest VIII. kerület
- INGYENES HIRDETÉS FELADÁS
Ingatlan adatai
- Feladva:4 hónapja a megveszLAK-on
- Eladó vagy kiadó:Eladó
- Település:Budapest VIII. kerület
- Kategória:Lakás
- Alkategória:Tégla
- Alapterület:106 m2
- Csere is:Nem
- Hirdető:Cég
- Élő videón megtekinthető:Nem
- Szobaszám:4
- Állapot:Újszerű, kitűnő
- Hány szintes az ingatlan:Földszintes
- Komfortosság:nincs megadva
- Hányadik emeleti:3
- Erkély:nincs megadva
- Lift:Nincs
- Parkolási lehetőség:Utcán
- Fűtés:Gáz (cirko)
- Bútorozottság:nincs megadva
- Fényviszony:Napfényes
- Tájolás:D
- Kilátás:nincs megadva
- Internet:nincs megadva
- Klíma:Van
- Akadálymentesített:nincs megadva
- Energiatanúsítvány:D
- Villany:Van
- Víz:Van
- Gáz:nincs megadva
- Csatorna:Van
- Közös költség:38 000 Ft
- Kapcsolatfelvétel

Erdélyi Miklós István
+36-(70)-242-9090
Mondd meg a hirdetőnek, hogy a megveszLAK-on találtad a hirdetést.
Referencia szám: M320627
Hitel ajánlatok
Ingatlan hirdetés leírása
Eladó Lakás, Budapest 8. ker.
***Kizárólag Nálunk! *** Felújított, világos lakás a Corvin negyedben! 2 Lakás egyben! OSP-vel is!
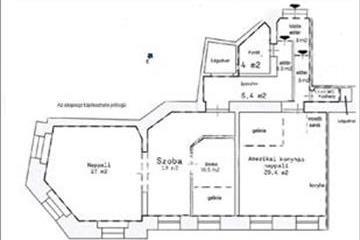
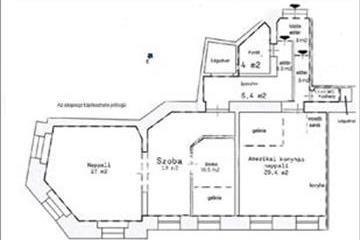
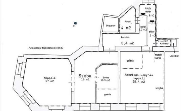
Budapest VIII. kerület, a Corvin negyedben, a József körúton eladó egy 106 m2-es, 4 szobás, felújított, világos, 3. emeleti lakás. Az ingatlan egyik különlegessége, hogy egyben és két külön lakásként is funkcionálhat.
Jelenleg egy közös bejáratról, de külön megközelíthetően található benne:
- egy 35 m2-es garzonlakás konyhával és fürdőszobával
- valamint egy 71 m2-es, 3 szobás lakás
Ez a kialakítás ideális lehet két generáció együttélésére, lakás-iroda kombinációra, illetve befektetési célra is, hiszen a lakrészek külön-külön vagy együtt is bérbe adhatók.
Műszaki és esztétikai jellemzők:
- a lakás 2024-ig több ütemben felújításon esett át (vezetékcsere, burkolatcsere, fűtéskorszerűsítés, konyhafelújítás, szaniterek, nyílászárók, stb. )
- Legutóbb kondenzációs kazáncsere történt, amely korszerű és hatékony fűtést biztosít
- Rendkívül világos, körbenapozott terek
- Hang- és hőszigetelt műanyag nyílászárók, a József körútra néző ablakokkal
- Két helyiségben galéria (kb. 1, 7 M belmagassággal), amely tovább növeli a hasznos teret
- Ízléses, egyedi burkolatok és hangulatos csillárok
Társasház:
- Jó állapotú, rendezett ház
- Jó lakóközösség
Jogi helyzet:
-1/1 tulajdon
-Tehermentes
- Rövid időn belül költözhető
A gépek, berendezések, bútorok ára 10 mill. Ft, mely kötelezően megvásárolandó!
Ingatlanjogász ügyvédi iroda vagyunk.
Referencia szám: m320627-ml Hitel.hu - Hasonlítsa össze a bankok lakáshitel ajánlatait
Tetszett ez az eladó Budapest VIII. kerületi újszerű állapotú 4 szobás tégla lakás? Hívd fel a hirdetőt most, és tudj meg mindent erről az eladó tégla lakásról! Ha gondolod nézelődj tovább az eladó lakás Budapest VIII. kerület oldal hirdetései között. Ennek az eladó lakásnak az ára 108500000 Ft és mivel az alapterülete 106 négyzetméter, ezért az átlagos négyzetméterára 1023585 HUF/m2.
Az eladó lakások menüpontban további hirdetések között is böngészhetsz. Az összes eladó budapesti lakás hirdetést tartalmazó oldalon tudsz böngészni. Ha van kedved, akkor böngészhetsz a Erdélyi Miklós István összes hirdetése között, vagy akár a/az OTPip Budapest I. kerület Krisztina körút 32 - OTP Ingatlanpont Iroda összes hirdetése között is.

