Eladó újszerű állapotú lakás - Budapest VIII. kerület
- INGYENES HIRDETÉS FELADÁS
Ingatlan adatai
- Eladó vagy kiadó:Eladó
- Település:Budapest VIII. kerület
- Kategória:Lakás
- Alkategória:Tégla
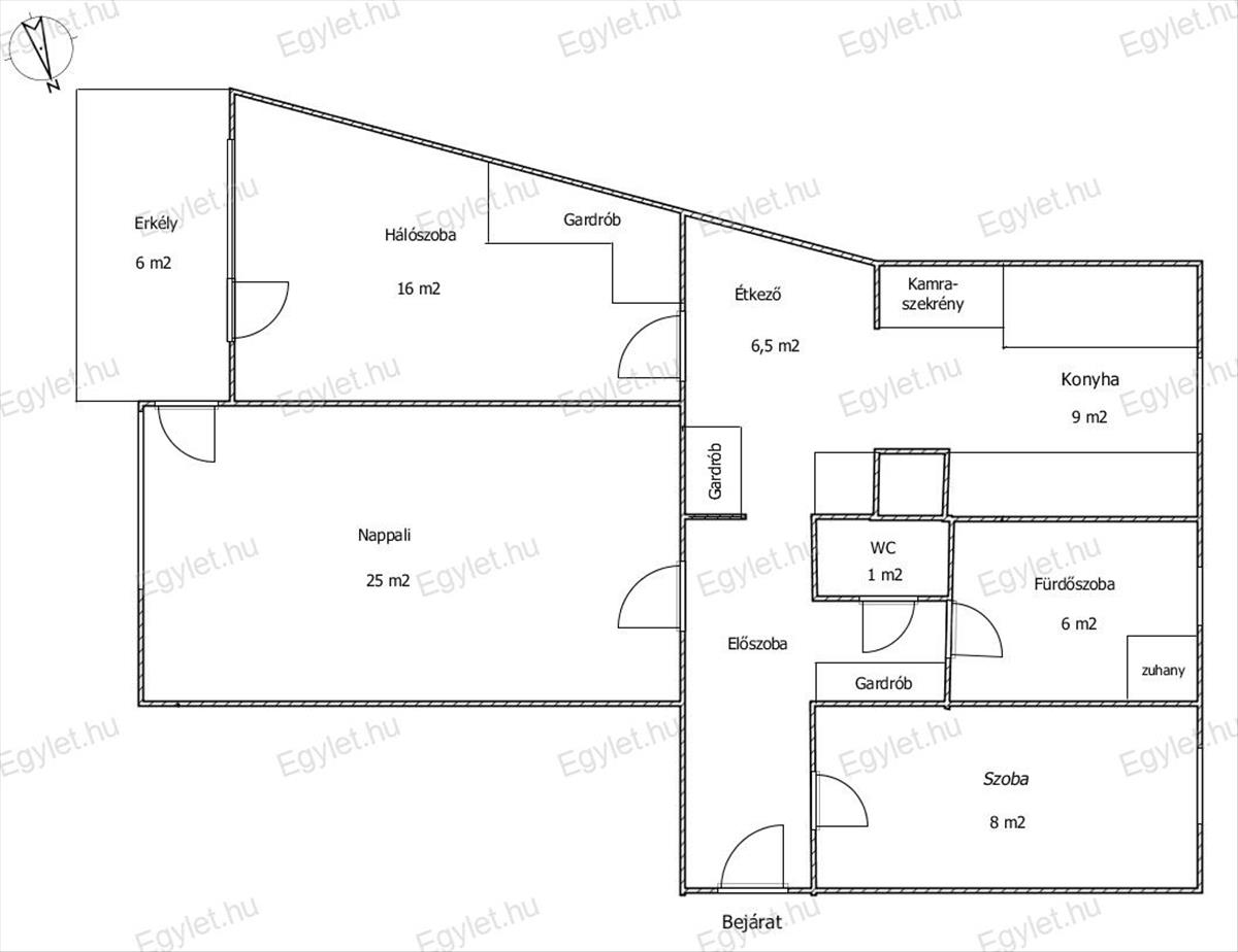
- Alapterület:79 m2
- Csere is:Nem
- Hirdető:Cég
- Élő videón megtekinthető:Nem
- Szobaszám:2 + 1 fél
- Állapot:Újszerű, kitűnő
- Hány szintes az ingatlan:4 szintes
- Komfortosság:nincs megadva
- Hányadik emeleti:4
- Erkély:nincs megadva
- Lift:nincs megadva
- Parkolási lehetőség:nincs megadva
- Fűtés:nincs megadva
- Bútorozottság:nincs megadva
- Fényviszony:nincs megadva
- Tájolás:nincs megadva
- Kilátás:nincs megadva
- Internet:nincs megadva
- Klíma:nincs megadva
- Akadálymentesített:nincs megadva
- Energiatanúsítvány:nincs megadva
- Villany:nincs megadva
- Víz:nincs megadva
- Gáz:nincs megadva
- Csatorna:nincs megadva
- Közös költség:20 500 Ft
- Kapcsolatfelvétel

Rózsa Magdolna
+36-(70)-606-2067
Mondd meg a hirdetőnek, hogy a megveszLAK-on találtad a hirdetést.
Hitel ajánlatok
Ingatlan hirdetés leírása
79 m2 + erkély, 2+1 szobás, erkélyes lakás, parkolóval a Corvi...
A VIII. kerület közkedvelt részén, a dinamikusan fejlődő Corvinnegyedben kínálunk megvételre egy kiváló állapotú, felújított, erkélyes lakást, mérete: 79 m2 + erkély. Az ingatlan egy 1992-ben épült, négyemeletes, csúsztatott zsalus technológiával épült társasház 4. emeletén helyezkedik el. Lift nincs az épületben.
Az lakás nagy ablakainak köszönhetően világos, észak-nyugati fekvésű, ezért nem éri tűző nap a nyári forróságban. a kellemes hőmérsékletről 1-1 inverteres klíma gondoskodik a nappaliban és a hálószobában. Fűtése: gáz cirkó, radiátoros hőleadókkal, a fürdőszobában a fűtés törölközőszárítós radiátorral megoldott.
A lakás az elmúlt években teljes körű felújításon esett át: megújult az elektromos hálózat, új burkolatok és szaniterek kerültek beépítésre, valamint kicserélték a bejárati ajtót és az ablakokat is. Az ablakok redőnnyel és szúnyoghálóval szereltek.
A konyhában, az előszobában és a hálószobában egyedi, asztalos által készített beépített szekrények kerültek kialakításra, így a lakás minden pontja átgondolt és praktikusan kihasznált. a felújítás során nagy hangsúlyt kapott a funkcionalitás és a minőségi kivitelezés, hogy a lakás hosszú távon is kényelmes és jól élhető otthont biztosítson.
Fenntartási költsége a méretéhez képest rendkívül kedvező:
a közös költség 20. 500 Ft, a fűtés átalánydíja mindössze 7. 500 Ft, a többi közmű pedig egyedi fogyasztás szerint kerül elszámolásra.
A környék infrastruktúrája kiváló: gyalogosan 10 percen belül elérhető több bevásárlási lehetőség, szolgáltatások, a Corvin Pláza, parkok, iskolák, éttermek valamint szórakozási lehetőségek.
Közlekedés szempontjából is remek az elhelyezkedése: a közelben busz- és troli megállók találhatók, a metró, valamint a 4–6-os villamos pedig 10 perc alatt elérhető.
A lakáshoz tartozik egy parkolóhely az udvarban, valamint egy szomszéddal közösen használt, 10 m²-es tárolóhely a földszinten.
Irányár: 96. 990. 000 Ft FIX 3% lakáshitelre megvehető
Tetszett ez az eladó Budapest VIII. kerületi újszerű állapotú 2 egész és 1 fél szobás tégla lakás? Hívd fel a hirdetőt most, és tudj meg mindent erről az eladó tégla lakásról! Ha gondolod nézelődj tovább az eladó lakás Budapest VIII. kerület oldal hirdetései között. Ennek az eladó lakásnak az ára 96990000 Ft és mivel az alapterülete 79 négyzetméter, ezért az átlagos négyzetméterára 1227722 HUF/m2.
Az eladó lakások menüpontban további hirdetések között is böngészhetsz. Az összes eladó budapesti lakás hirdetést tartalmazó oldalon tudsz böngészni. Ha van kedved, akkor böngészhetsz a Rózsa Magdolna összes hirdetése között, vagy akár a/az Egylet.hu összes hirdetése között is.

