Eladó felújítandó lakás - Budapest VIII. kerület
- INGYENES HIRDETÉS FELADÁS
Ingatlan adatai
- Eladó vagy kiadó:Eladó
- Település:Budapest VIII. kerület
- Kategória:Lakás
- Alkategória:Tégla
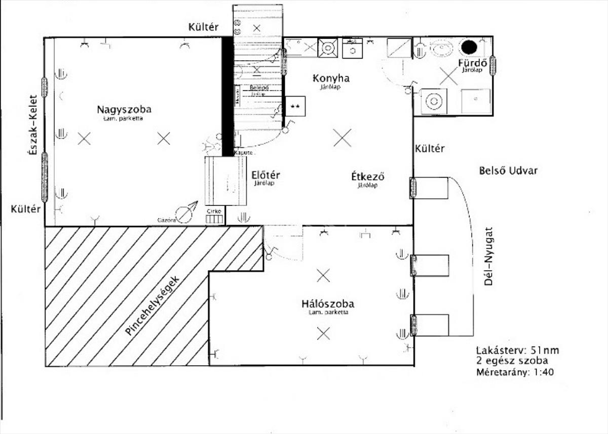
- Alapterület:51 m2
- Csere is:Nem
- Hirdető:Cég
- Élő videón megtekinthető:Nem
- Szobaszám:2
- Állapot:Felújítandó
- Hány szintes az ingatlan:3 szintes
- Komfortosság:nincs megadva
- Hányadik emeleti:Szuterén
- Erkély:nincs megadva
- Lift:nincs megadva
- Parkolási lehetőség:Garázs (bérelhető)
- Fűtés:Gáz (cirko)
- Bútorozottság:nincs megadva
- Fényviszony:nincs megadva
- Tájolás:nincs megadva
- Kilátás:nincs megadva
- Internet:nincs megadva
- Klíma:nincs megadva
- Akadálymentesített:nincs megadva
- Energiatanúsítvány:nincs megadva
- Villany:nincs megadva
- Víz:nincs megadva
- Gáz:nincs megadva
- Csatorna:nincs megadva
- Közös költség:15 000 Ft
- Kapcsolatfelvétel

Gecse Balázs
+36-(70)-336-9901
Mondd meg a hirdetőnek, hogy a megveszLAK-on találtad a hirdetést.
Hitel ajánlatok
Ingatlan hirdetés leírása
VIII. kerületben, Magdolna-negyed szívében, az Alföldi utcában...
VIII. kerületben, Magdolna-negyed szívében, az Alföldi utcában, alagsori, téglaépítésű, 51 m2-es, 2 szobás, utcára néző, napos-világos fekvésű, alacsony fenntartású, gáz-cirkó fűtésű, felújítandó állapotú, rugalmasan birtokba vehető lakás, beépített konyhával, kulturált lakóközösségű házban eladó!
Az ingatlan per-és tehermentes!
A közös költség 15. 000 Ft havonta.
Közlekedés és ellátottság szempontjából központi helyen helyezkedik el az ingatlan.
Az ár, irányár!
Ügyfeleink részére bankfüggetlen hitel ügyintéző kollégáink szívesen nyújtanak segítséget, hitellel, vagy akár CSOK-kal kapcsolatban is!
További részletekért, hívjon bizalommal! (Akár hétvégén is! )
G. B. FIX 3% lakáshitelre megvehető

