Eladó újszerű állapotú lakás Budapest VIII. kerület
| Kedvencbe | Megosztás | Árfigyelő |
| Kedvezményes lakáshitel ajánlatok | ||
| 109 900 000 HUF | ||
Ingatlan adatai
- Eladó vagy kiadó:Eladó
- Település:Budapest VIII. kerület
- Kategória:Lakás
- Alkategória:Tégla
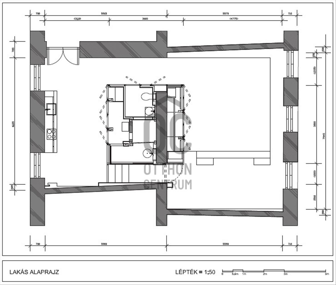
- Alapterület:72 m2
- Csere is:Nem
- Hirdető:Cég
- Élő videón megtekinthető:Nem
- Szobaszám:1
- Állapot:Újszerű, kitűnő
- Hány szintes az ingatlan:nincs megadva
- Komfortosság:nincs megadva
- Hányadik emeleti:nincs megadva
- Parkolási lehetőség:nincs megadva
- Fűtés:Gáz (cirko)
- Bútorozottság:nincs megadva
- Fényviszony:nincs megadva
- Tájolás:DNY
- Kilátás:Utcai
- Internet:nincs megadva
- Akadálymentesített:nincs megadva
- Energiatanúsítvány:nincs megadva
- Villany:Van
- Víz:Van
- Gáz:Van
- Csatorna:Van
- Üzenetküldés
- Hívás


Hitel ajánlat
Ingatlan hirdetés leírása
ILYEN LAKÁS NINCS MÉG EGY A PIACON!
Eladó egy 72 m²-es, telje...
Ilyen lakás nincs még egy a PIACON! Eladó egy 72 m²-es, teljes körűen felújított, különleges lakás a József körúton!
TÁRSASHÁZ:
A ház állapota átlagos, klasszikus polgári épület.
A közeljövőben felújítási munkálatok indulnak, így az ingatlan értéke várhatóan tovább nő.
A lift beépítése is tervben van!
A LAKÁS:
Alapterület: 72 m²
Elrendezés: tágas, egybenyitott tér (eredetileg 2 szobás), exkluzív kialakítással
Konyha: teljesen gépesített, modern beépített megoldásokkal
Fürdő és wc: külön helyiségben, rejtett designm egoldással
Anyaghasználat: prémium minőségű olasz márvány és fa burkolatok minden helyiségben
A lakást 25 éve vásárolta jelenlegi tulajdonosa, aki belsőépítész bevonásával teljesen újra gondolta az elrendezést.
Az ingatlan ez idő alatt projektlakásként funkcionált, és most először kerül piacra!
LOKÁCIÓ:
A Blaha Lujza tér mindössze 2 perc sétára található.
A 4-6-os villamos és a 2-es metró közelsége miatt kiváló a közlekedés, a környéken boltok, éttermek, kávézók és minden fontos szolgáltatás néhány perc alatt elérhető.
ÉRDEMES MEGNÉZNI! !
Egy különleges, minőségi anyagokkal megvalósított lakás, amely a belsőépítészeti megoldásaival is egyedülálló.
Szánjon rá 15 percet, és nézze meg személyesen – érdemes! Hitel.hu - Hasonlítsa össze a bankok lakáshitel ajánlatait
Tetszett ez az eladó Budapest VIII. kerületi újszerű állapotú 1 szobás tégla lakás? Hívd fel a hirdetőt most, és tudj meg mindent erről az eladó tégla lakásról! Ha gondolod nézelődj tovább az eladó lakás Budapest VIII. kerület oldal hirdetései között. Ennek az eladó lakásnak az ára 109900000 Ft és mivel az alapterülete 72 négyzetméter, ezért az átlagos négyzetméterára 1526389 HUF/m2.
Az eladó lakások menüpontban további hirdetések között is böngészhetsz. Az összes eladó budapesti lakás hirdetést tartalmazó oldalon tudsz böngészni. Ha van kedved, akkor böngészhetsz a Szücs Bátor összes hirdetése között, vagy akár a/az Otthon Centrum XIII. kerület - Béke Residence összes hirdetése között is.

