Eladó felújított lakás - Budapest VIII. kerület
- INGYENES HIRDETÉS FELADÁS
Ingatlan adatai
- Feladva:4 hónapja a megveszLAK-on
- Eladó vagy kiadó:Eladó
- Település:Budapest VIII. kerület
- Kategória:Lakás
- Alkategória:Tégla
- Alapterület:51 m2
- Csere is:Nem
- Hirdető:Cég
- Élő videón megtekinthető:Nem
- Szobaszám:3
- Állapot:Felújított
- Hány szintes az ingatlan:3 szintes
- Komfortosság:nincs megadva
- Hányadik emeleti:Földszint
- Erkély:nincs megadva
- Lift:nincs megadva
- Parkolási lehetőség:Utcán
- Fűtés:Elektromos
- Bútorozottság:nincs megadva
- Fényviszony:nincs megadva
- Tájolás:nincs megadva
- Kilátás:nincs megadva
- Internet:nincs megadva
- Klíma:nincs megadva
- Akadálymentesített:nincs megadva
- Energiatanúsítvány:nincs megadva
- Villany:nincs megadva
- Víz:nincs megadva
- Gáz:nincs megadva
- Csatorna:nincs megadva
- Kapcsolatfelvétel

Hallai Mónika
+36-(30)-649-5546
Mondd meg a hirdetőnek, hogy a megveszLAK-on találtad a hirdetést.
Hitel ajánlatok
Ingatlan hirdetés leírása
Eladó 2 felújított, kulcsrakész lakás a Horváth Mihály térnél!...
Eladó 2 felújított, kulcsrakész lakás a Horváth Mihály térnél!
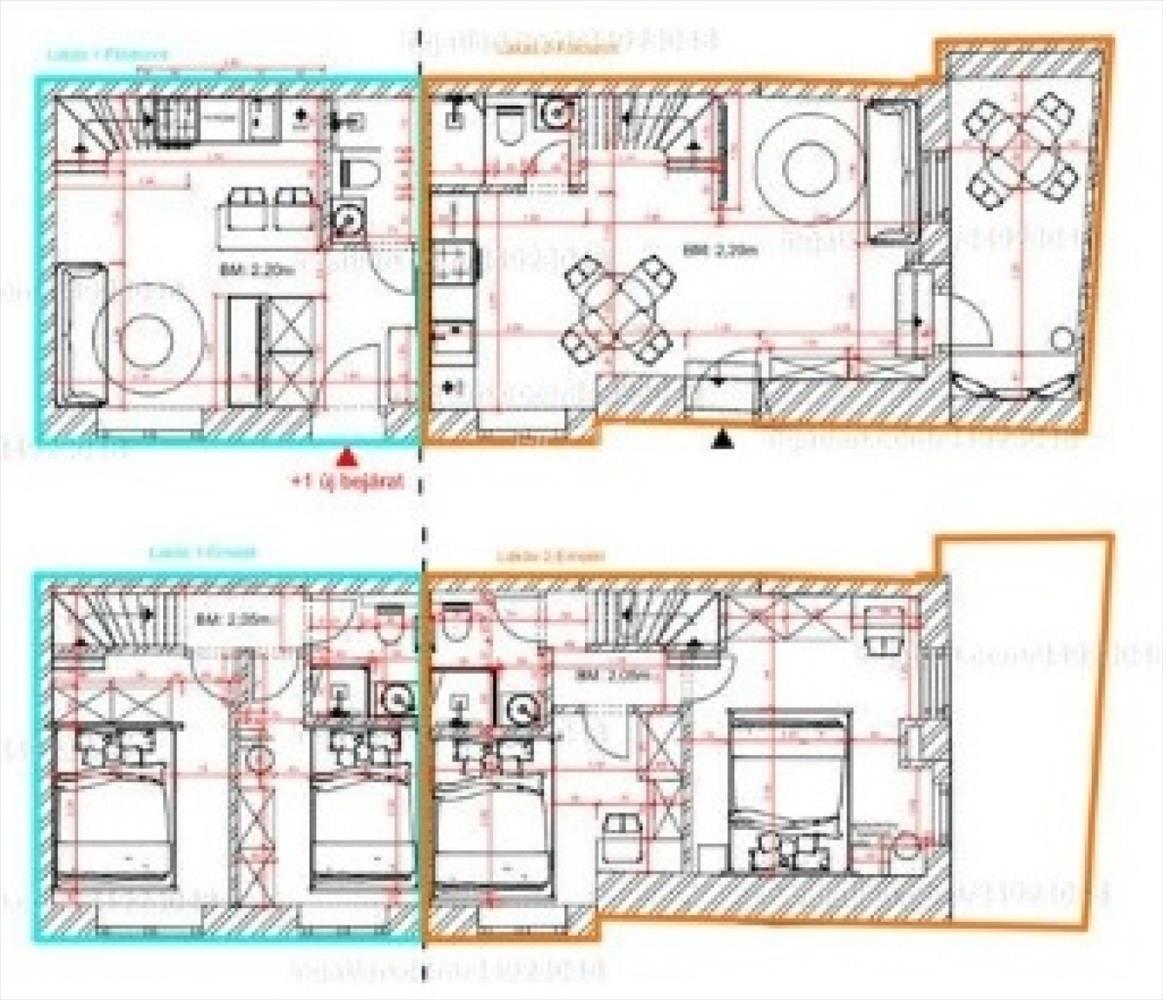
Budapest VIII. kerületében, a Német utcában, hangulatos társasház földszintjén kínálunk eladásra két külön bejáratú, belső kétszintes, teljeskörűen felújított, bútorozott és gépesített lakást.
Mindkettő duplakomfortos, modern padlófűtéssel és inverteres klímával, külön villany- és vízórával.
A földszinti belmagasság 220 cm, a felső szinten 205 cm.
B lakás: 51 m² + 11 m² télikert, (alsó szint: 26 m², felső szint: 25 m²) Ár: 75 M Ft
A lakás: 40 m², (alsó szint: 20, 3 m², felső szint: 19, 7 m²)
Ár: 65 M Ft
Átadás: 2025. Augusztus vége, szeptember eleje.
Referenciafotók az előző lakásokról készültek!
Amennyiben felkeltettem érdeklődését, keressen bizalommal.
Ha nem veszem fel, visszahívom!
ID: 387055 FIX 3% lakáshitelre megvehető
Tetszett ez az eladó Budapest VIII. kerületi felújított 3 szobás tégla lakás? Hívd fel a hirdetőt most, és tudj meg mindent erről az eladó tégla lakásról! Ha gondolod nézelődj tovább az eladó lakás Budapest VIII. kerület oldal hirdetései között. Ennek az eladó lakásnak az ára 68900000 Ft és mivel az alapterülete 51 négyzetméter, ezért az átlagos négyzetméterára 1350980 HUF/m2.
Az eladó lakások menüpontban további hirdetések között is böngészhetsz. Az összes eladó budapesti lakás hirdetést tartalmazó oldalon tudsz böngészni. Ha van kedved, akkor böngészhetsz a Hallai Mónika összes hirdetése között, vagy akár a/az GDN Ingatlanhálózat összes hirdetése között is.

