Eladó újszerű állapotú lakás Budapest VIII. kerület
| Kedvencbe | Megosztás | Árfigyelő |
| Kedvezményes lakáshitel ajánlatok | ||
| 46 990 000 HUF | ||
Ingatlan adatai
- Eladó vagy kiadó:Eladó
- Település:Budapest VIII. kerület
- Kategória:Lakás
- Alkategória:Tégla
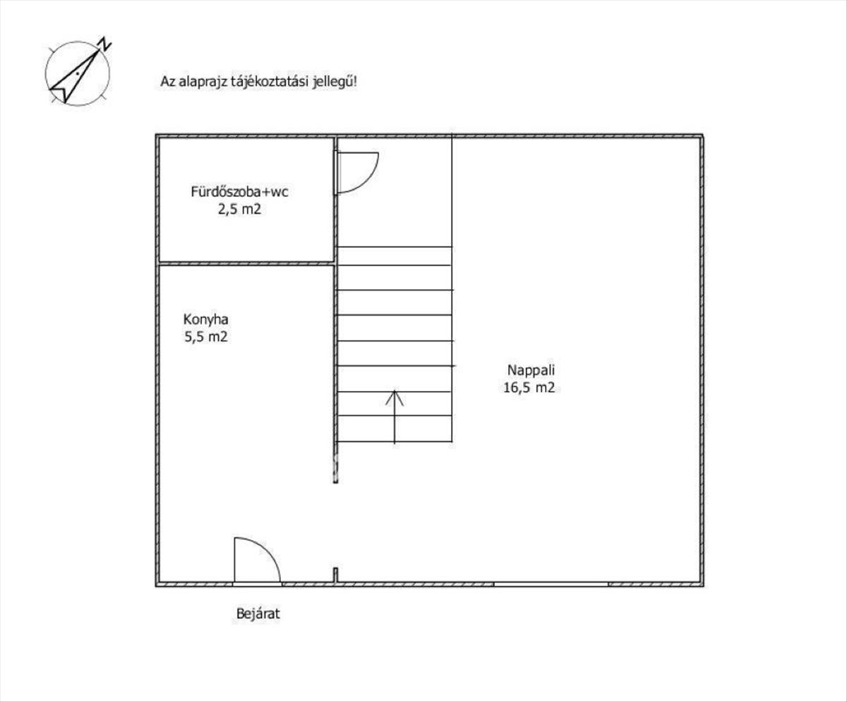
- Alapterület:25 m2
- Csere is:Nem
- Hirdető:Cég
- Élő videón megtekinthető:Nem
- Szobaszám:2 + 1 fél
- Állapot:Újszerű, kitűnő
- Hány szintes az ingatlan:2 szintes
- Komfortosság:nincs megadva
- Hányadik emeleti:Földszint
- Lift:Nincs
- Parkolási lehetőség:nincs megadva
- Fűtés:Gáz (konvektor)
- Bútorozottság:nincs megadva
- Fényviszony:Napfényes
- Tájolás:nincs megadva
- Kilátás:nincs megadva
- Internet:nincs megadva
- Klíma:Van
- Akadálymentesített:nincs megadva
- Energiatanúsítvány:nincs megadva
- Villany:Van
- Víz:Van
- Gáz:nincs megadva
- Csatorna:Van
- Közös költség:13 000 Ft
- Üzenetküldés
- Hívás

Megyesi Gabriella
Mondd meg a hirdetőnek, hogy a megveszLAK-on találtad a hirdetést.
Referencia szám: M306260

Hitel ajánlat
Ingatlan hirdetés leírása
Eladó Lakás, Budapest 8. ker.
Befektetők, fiatalok figyelem! Eladó Budapest viii. , Józsefvárosban egy 25 m2-es + 21 m2 álló galériával rendelkező, teljesen felújított és átalakított tiny lakás, mely 1/1-es tulajdonú, tehermentes, rendkívül jó hangulatú otthon! Rendezett társasházban található, kellemes lakóközösséggel. Alacsony közös költségű, saját gáz-, villany- és vízórával rendelkezik. Kiváló minőségű, gépesített konyhabútor, Fujitsu hűtő-fűtő klíma, ötletes és minőségi térkihasználás jellemzi! Remek megoldás lehet első lakást vásárlóknak, egyetemistáknak vagy befektetőknek egyaránt. Kiváló lokációval rendelkezik: néhány perc sétára a Nemzeti Közszolgálati Egyetem, az Orczy-kert, a Corvin Plaza, Lidl, Aldi, Spar, általános és középiskola, óvoda. . . Közlekedés szempontjából is ideális: az M3-as metró, 99-es busz, 72-es, 83-as troli, 23-as, 24-es villamos szintén rövid sétával elérhetők - belvároshoz (Kálvin tér, Deák tér, Andrássy út. . . ) Közvetlen összeköttetést biztosítva. a társasházat folyamatosan újítják fel - 2021-ben a teljes tetőszerkezet, 2022-ben a teljes gázvezeték-hálózat került cserére. a negyed rehabilitáció alatt áll, hosszú távra rendkívül jó befektetési lehetőség. Ha hirdetésünk felkeltette érdeklődését, kérem hívjon bizalommal a hét bármely napján! Teljes körű ügyintézéssel állunk az eladók és vevőink rendelkezésére! a kínálatunkból választott ingatlan finanszírozásához kedvezményes hitelkonstrukciókat kínálunk. Az adásvételi szerződés megkötéséhez igény szerint megbízható ügyvédi közreműködést biztosítunk, és segítséget nyújtunk az adásvételhez kapcsolódó ügyek intézéséhez.Referencia szám: m306260 Hitel.hu - Hasonlítsa össze a bankok lakáshitel ajánlatait

