Eladó újszerű állapotú lakás Budapest VIII. kerület
| Kedvencbe | Megosztás | Árfigyelő |
| Kedvezményes lakáshitel ajánlatok | ||
| 83 000 000 HUF | ||
Ingatlan adatai
- Eladó vagy kiadó:Eladó
- Település:Budapest VIII. kerület
- Kategória:Lakás
- Alkategória:Tégla
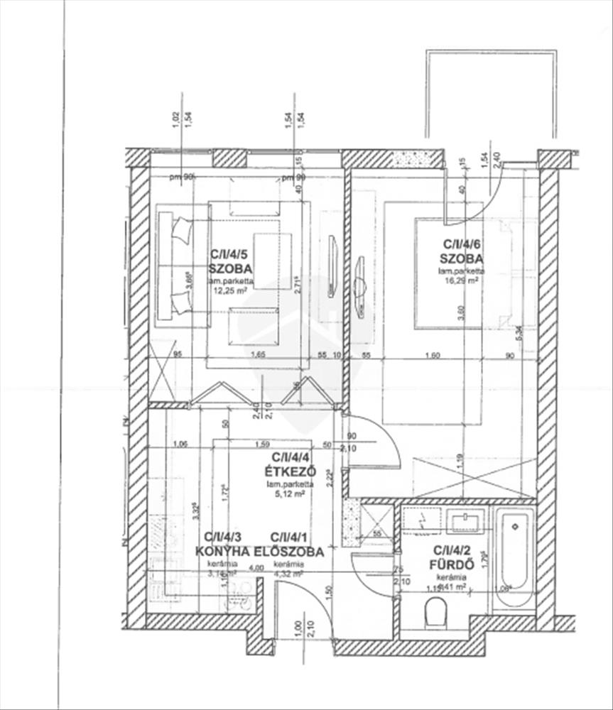
- Alapterület:44 m2
- Csere is:Nem
- Hirdető:Cég
- Élő videón megtekinthető:Nem
- Szobaszám:2
- Állapot:Újszerű, kitűnő
- Hány szintes az ingatlan:nincs megadva
- Komfortosság:nincs megadva
- Hányadik emeleti:nincs megadva
- Erkély:Van
- Parkolási lehetőség:nincs megadva
- Fűtés:Házközponti egyedi mérővel
- Bútorozottság:nincs megadva
- Fényviszony:nincs megadva
- Tájolás:NY
- Kilátás:Udvari
- Internet:nincs megadva
- Akadálymentesített:nincs megadva
- Energiatanúsítvány:nincs megadva
- Villany:nincs megadva
- Víz:nincs megadva
- Gáz:nincs megadva
- Csatorna:nincs megadva
- Üzenetküldés
- Hívás

Németi-Loósz Henriett
Mondd meg a hirdetőnek, hogy a megveszLAK-on találtad a hirdetést.

Hitel ajánlat
Ingatlan hirdetés leírása
Eladóvá vált egy 44 m2 alapterületű, két szobás lakás a Corvin...
Eladóvá vált egy 44 m2 alapterületű, két szobás lakás a Corvin negyedben, az első emeleten.Ez a lakás 83. 000. 000 HUF-ért várja új tulajdonosait.
Az újszerű állapotú ingatlan ideális választás lehet azok számára, akik befektetést keresnek. Teljes bútorzattal és gépesítve található a lakás.
Az ingatlan kellemes, csendes és központi övezetben található, belső zöld udvarral. Befektetési lehetőségek terén is ígéretes, ugyanis a helyszínen még három lakás keresi új lakóját vagy befektetőjét. a lakást csomagban is megveheti, amihez egy parkolóhely és egy tároló is tartozik.
A helyi szolgáltatások igen kedvezőek: a Pláza 3 perc sétával, míg a metró és villamosmegálló 5 perc séta távolságra helyezkedik el. Hitel.hu - Hasonlítsa össze a bankok lakáshitel ajánlatait

