Eladó új építésű lakás - Budapest VIII. kerület
- INGYENES HIRDETÉS FELADÁS
Ingatlan adatai
- Eladó vagy kiadó:Eladó
- Település:Budapest VIII. kerület
- Kategória:Lakás
- Alkategória:Tégla
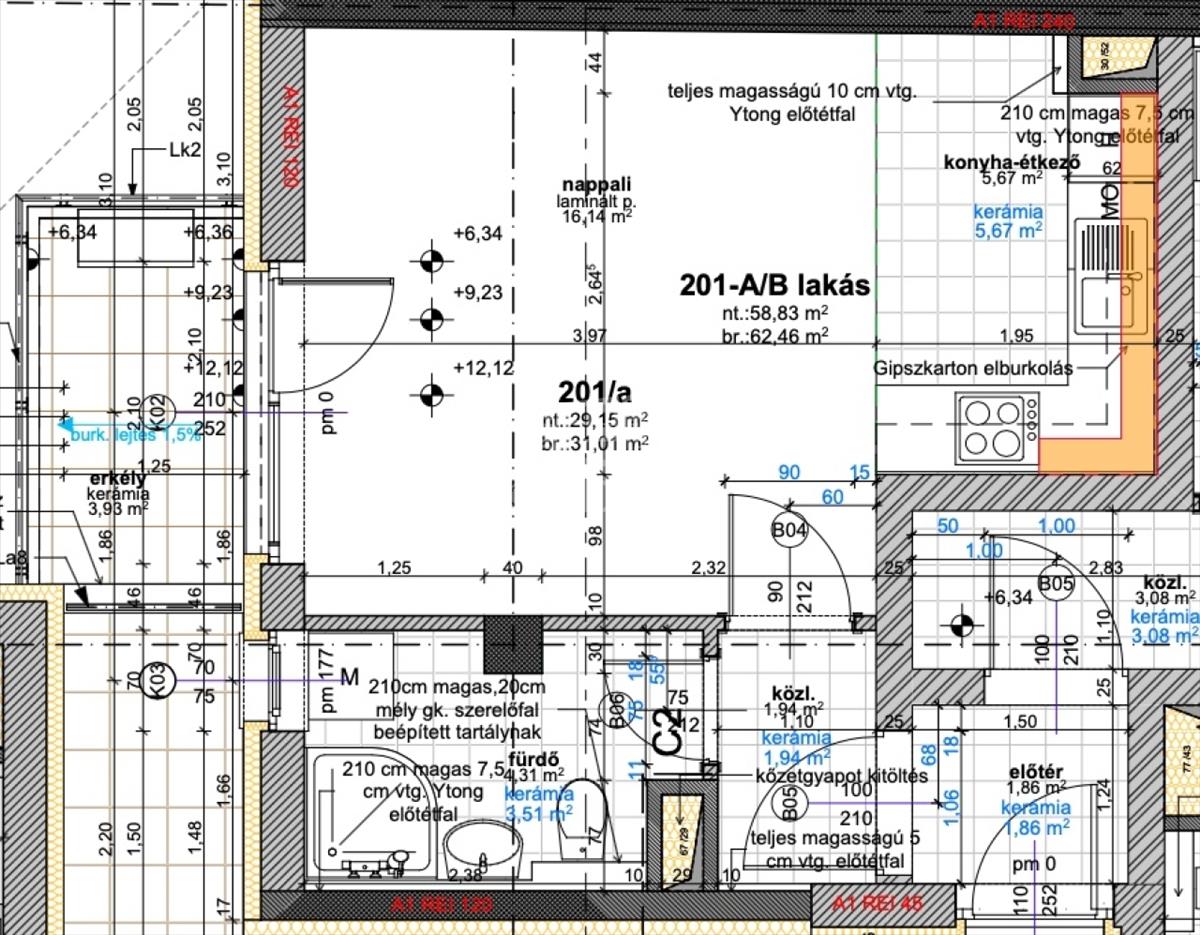
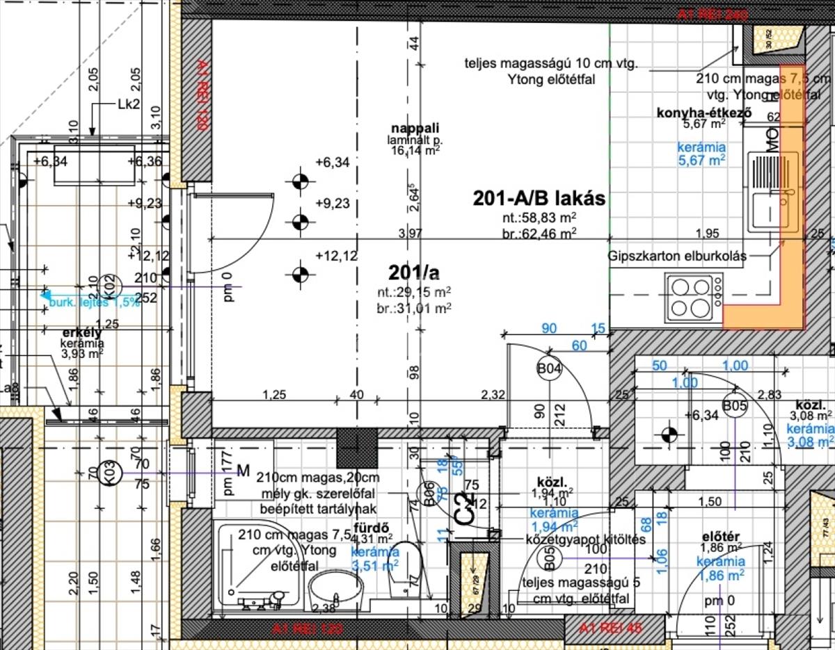
- Alapterület:58 m2
- Csere is:Nem
- Hirdető:Cég
- Élő videón megtekinthető:Nem
- Szobaszám:1
- Állapot:Új építésű
- Hány szintes az ingatlan:7 szintes
- Komfortosság:nincs megadva
- Hányadik emeleti:2
- Erkély:nincs megadva
- Lift:Van
- Parkolási lehetőség:Garázs (megvásárolható)
- Fűtés:nincs megadva
- Bútorozottság:nincs megadva
- Fényviszony:nincs megadva
- Tájolás:nincs megadva
- Kilátás:nincs megadva
- Internet:nincs megadva
- Klíma:nincs megadva
- Akadálymentesített:nincs megadva
- Energiatanúsítvány:nincs megadva
- Villany:nincs megadva
- Víz:nincs megadva
- Gáz:nincs megadva
- Csatorna:nincs megadva
- Kapcsolatfelvétel

Tóth Péter
+36-(30)-237-4705
Mondd meg a hirdetőnek, hogy a megveszLAK-on találtad a hirdetést.
Hitel ajánlatok
Ingatlan hirdetés leírása
PANORÁMÁS, A+ ENERGIAHATÉKONYSÁGÚ ÚJ ÉPÍTÉSŰ LAKÁS A MEGÚJULÓ ...
Panorámás, a+ energiahatékonyságú új építésű lakás a megújuló kálvária térnél! ! !
Eladó egy 2026-os átadású, 58 négyzetméteres, 2. emeleti téglalakás a VIII. kerület egyik leggyorsabban fejlődő részén. Az ingatlan kiváló elosztással, modern technológiával és egy 4 négyzetméteres erkéllyel rendelkezik, amely a rendezett környezetre néz. a legkorszerűbb hőszivattyús hűtés-fűtési rendszer garantálja a rendkívül alacsony rezsiköltséget és a maximális komfortot.
AZ ingatlan JELLEMZŐI:
A lakás belső kialakítása praktikus és otthonos: a hálószobák mellett egy világos, amerikai konyhás nappali található. a kényelmet duplakomfort (két fürdőszoba és külön wc) biztosítja, ami ritka előny ekkora alapterületen.
Műszaki tartalom:
- Energetikai besorolás: a+ (kiemelkedően hatékony)
- Fűtés és hűtés: Levegő-víz hőszivattyú, lakásonként egyedi Panasonic fan-coil hőleadókkal.
- Szigetelés: 20 cm-es homlokzati szigetelés.
- Egyedi mérőórák és kedvezményes H-tarifa az áramfogyasztáshoz.
KÖRNYÉK és LOKÁCIÓ:
A Kálvária tér rehabilitált környezete Budapest egyik legkeresettebb befektetési célpontja. Az egyetemek (nke, Semmelweis, Pázmány, Óbudai Egyetem) sétatávolságra találhatók, így az ingatlan kiváló választás saját otthonnak vagy magas hozamú befektetésnek is.
Közlekedés:
A belváros percek alatt elérhető a 4-es metróval (Rákóczi tér), a 4-6-os villamossal, valamint számos busz- és trolijárattal.
EXTRÁK és LEHETŐSÉGEK
A lakáshoz a teremgarázsban saját parkolóhely vásárolható 10 millió forintos áron. Az ingatlan modern berendezéssel, 2026. Áprilisi átadással kerül birtokba.
Várom megtisztelő hívását a részletes műszaki dokumentációval és a megtekintéssel kapcsolatban. Tp Hitel.hu - Hasonlítsa össze a bankok lakáshitel ajánlatait
Tetszett ez az eladó Budapest VIII. kerületi új építésű 1 szobás tégla lakás? Hívd fel a hirdetőt most, és tudj meg mindent erről az eladó tégla lakásról! Ha gondolod nézelődj tovább az eladó lakás Budapest VIII. kerület oldal hirdetései között. Ennek az eladó lakásnak az ára 103128972 Ft és mivel az alapterülete 58 négyzetméter, ezért az átlagos négyzetméterára 1778086 HUF/m2.
Az eladó lakások menüpontban további hirdetések között is böngészhetsz. Az összes eladó budapesti lakás hirdetést tartalmazó oldalon tudsz böngészni. Ha van kedved, akkor böngészhetsz a Tóth Péter összes hirdetése között, vagy akár a/az GDN Ingatlanhálózat összes hirdetése között is.

