Eladó új építésű lakás - Budapest VIII. kerület
- INGYENES HIRDETÉS FELADÁS
Ingatlan adatai
- Eladó vagy kiadó:Eladó
- Település:Budapest VIII. kerület
- Kategória:Lakás
- Alkategória:Tégla
- Alapterület:31 m2
- Csere is:Nem
- Hirdető:Cég
- Élő videón megtekinthető:Nem
- Szobaszám:1
- Állapot:Új építésű
- Hány szintes az ingatlan:nincs megadva
- Komfortosság:nincs megadva
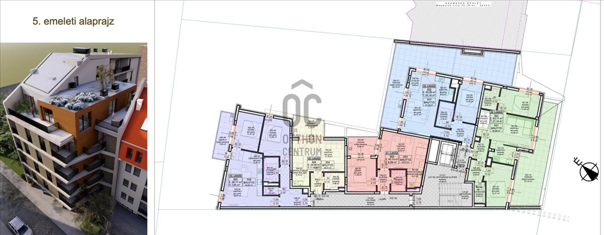
- Hányadik emeleti:5
- Erkély:Van
- Lift:Van
- Parkolási lehetőség:nincs megadva
- Fűtés:nincs megadva
- Bútorozottság:nincs megadva
- Fényviszony:nincs megadva
- Tájolás:ÉNY
- Kilátás:Kertre néző
- Internet:nincs megadva
- Klíma:nincs megadva
- Akadálymentesített:nincs megadva
- Energiatanúsítvány:nincs megadva
- Villany:Van
- Víz:Van
- Gáz:Nincs
- Csatorna:Van
- Kapcsolatfelvétel

Krassóy Ágnes
+36-(70)-469-3921
Mondd meg a hirdetőnek, hogy a megveszLAK-on találtad a hirdetést.
Hitel ajánlatok
Ingatlan hirdetés leírása
❗️OKOS OTTHON - Corvin negyednél Új építésű lakások még bevez...
❗️Okos otthon - Corvin negyednél
Új építésű lakások még bevezető áron!
Otthon / Befektetés
⏺️ Lokáció:
- 08. kerület dinamikusan fejlődő része
- belvárosi közlekedés
- metro, főbb közlekedési csomópontok karnyújtásnyira
- egyetemek, főiskolák közelében
- kiváló infrastruktúra
❗️ Műszaki tartalom:
- kornak megfelelő, igényes kivitelezés
- ngbs okos otthon rendszer
- hőszivattyús fűtésrendszer
- falhűtés
- zöld kert, öntözőrendszerrel
⬆️ Lakások:
- szuper praktikus tervezés
- választható burkolatok
- terasz, erkély minden lakáshoz
- garázs igény szerint
✅ Hitelügyintézés - kedvező kamatozással, egyénre szabva!
Jogi segítségnyújtás igény esetén!
Keressen bizalommal!
Projekt leírás
Budapest, VIII. kerület dinamikusan fejlődő részén, 36 lakásos társasház igényes, a kornak megfelelő műszaki tartalommal rendelkező projekt, ngbs okos otthon rendszerrel, választható burkolatokkal 2026. Negyedik negyedévre tervezett átadással.
Projekt bemutatása
Budapest, VIII. kerület dinamikusan fejlődő részén, 36 lakásos társasház igényes, a kornak megfelelő műszaki tartalommal rendelkező projekt, ngbs okos otthon rendszerrel, választható burkolatokkal 2026. Negyedik negyedévre tervezett átadással. Hitel.hu - Hasonlítsa össze a bankok lakáshitel ajánlatait

