- >>
- eladó ingatlanok
- >>
- eladó lakás
- >>
- eladó lakás Budapest VIII. kerület
- >>
Eladó jó állapotú lakás - Budapest VIII. kerület
| | |||
| Kedvencnek jelölöm | Elküldöm emailben | Megosztás | Szavazás |
| Kedvezményes lakáshitel ajánlatok | |||
| 149 000 000 HUF | |||
Ingatlan adatai
- Eladó vagy kiadó:Eladó
- Település:Budapest VIII. kerület
- Kategória:Lakás
- Alkategória:Tégla
- Alapterület:125 m2
- Csere is:Nem
- Hirdető:Cég
- Élő videón megtekinthető:Nem
- Szobaszám:4
- Állapot:Jó állapotú
- Hány szintes az ingatlan:nincs megadva
- Komfortosság:nincs megadva
- Hányadik emeleti:1
- Lift:Van
- Parkolási lehetőség:nincs megadva
- Fűtés:Gáz (cirko)
- Bútorozottság:nincs megadva
- Fényviszony:nincs megadva
- Tájolás:NY
- Kilátás:Utcai
- Internet:nincs megadva
- Akadálymentesített:nincs megadva
- Energiatanúsítvány:nincs megadva
- Villany:Van
- Víz:Van
- Gáz:Van
- Csatorna:Van
- Közös költség:35 190 Ft
- Üzenetküldés
- Hívás


Hitel ajánlat
Ingatlan hirdetés leírása
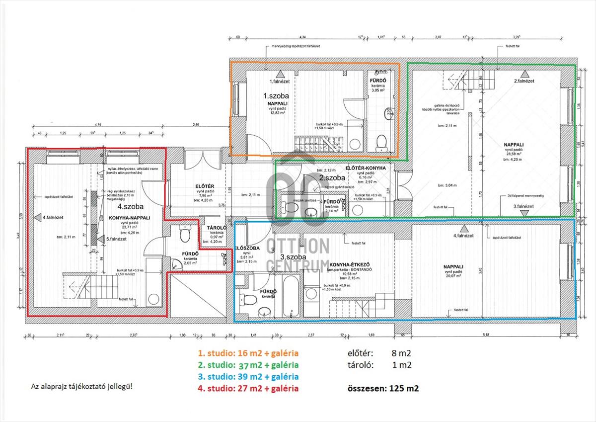
Eladó NÉGY APARTMANBÓL álló lakás a Palotanegyedben, a Mária u...
Eladó négy apartmanból álló lakás a Palotanegyedben, a Mária utca és az Üllői út sarkán.Az ingatlan 125 m2-es, i. emeleti, egy századfordulós, liftes épületben található.
Jelenleg rövidtávú kiadással történik a hasznosítása, az apartmanok 39 m2 + galéria, 37 m2 + galéria, 27 m2 + galéria és 16 m2 + galéria nagyságúak.
Minden apartmanhoz saját fürdőszoba és konyha tartozik. Kettőnek az ablakai a Mária utcára, kettőnek pedig az udvar felé néznek.
Kitűnő közlekedési adottságok, 4-6-os villamos és a kék metró megállója fél perc sétára található.
Egyetemek, bevásárló központ, éttermek és kávézók a közvetlen közelben találhatók. Hitel.hu - Hasonlítsa össze a bankok lakáshitel ajánlatait

