Eladó újszerű állapotú lakás - Budapest VIII. kerület
- INGYENES HIRDETÉS FELADÁS
Ingatlan adatai
- Feladva:4 hónapja a megveszLAK-on
- Eladó vagy kiadó:Eladó
- Település:Budapest VIII. kerület
- Kategória:Lakás
- Alkategória:Tégla
- Alapterület:106 m2
- Csere is:Nem
- Hirdető:Cég
- Élő videón megtekinthető:Nem
- Szobaszám:3 + 1 fél
- Állapot:Újszerű, kitűnő
- Hány szintes az ingatlan:Földszintes
- Komfortosság:nincs megadva
- Hányadik emeleti:3
- Erkély:nincs megadva
- Lift:Nincs
- Parkolási lehetőség:nincs megadva
- Fűtés:Gáz (cirko)
- Bútorozottság:nincs megadva
- Fényviszony:Napfényes
- Tájolás:D
- Kilátás:nincs megadva
- Internet:nincs megadva
- Klíma:Van
- Akadálymentesített:nincs megadva
- Energiatanúsítvány:nincs megadva
- Villany:Van
- Víz:Van
- Gáz:nincs megadva
- Csatorna:Van
- Közös költség:38 000 Ft
- Kapcsolatfelvétel

Dr. Jakus Péter
+36-(30)-426-7706
Mondd meg a hirdetőnek, hogy a megveszLAK-on találtad a hirdetést.
Referencia szám: M320627
Hitel ajánlatok
Ingatlan hirdetés leírása
Eladó Lakás, Budapest 8. ker.
Felújított, világos lakás a Corvin negyedben, 2 lakás egyben, Otthon Start támogatásra is alkalmas!
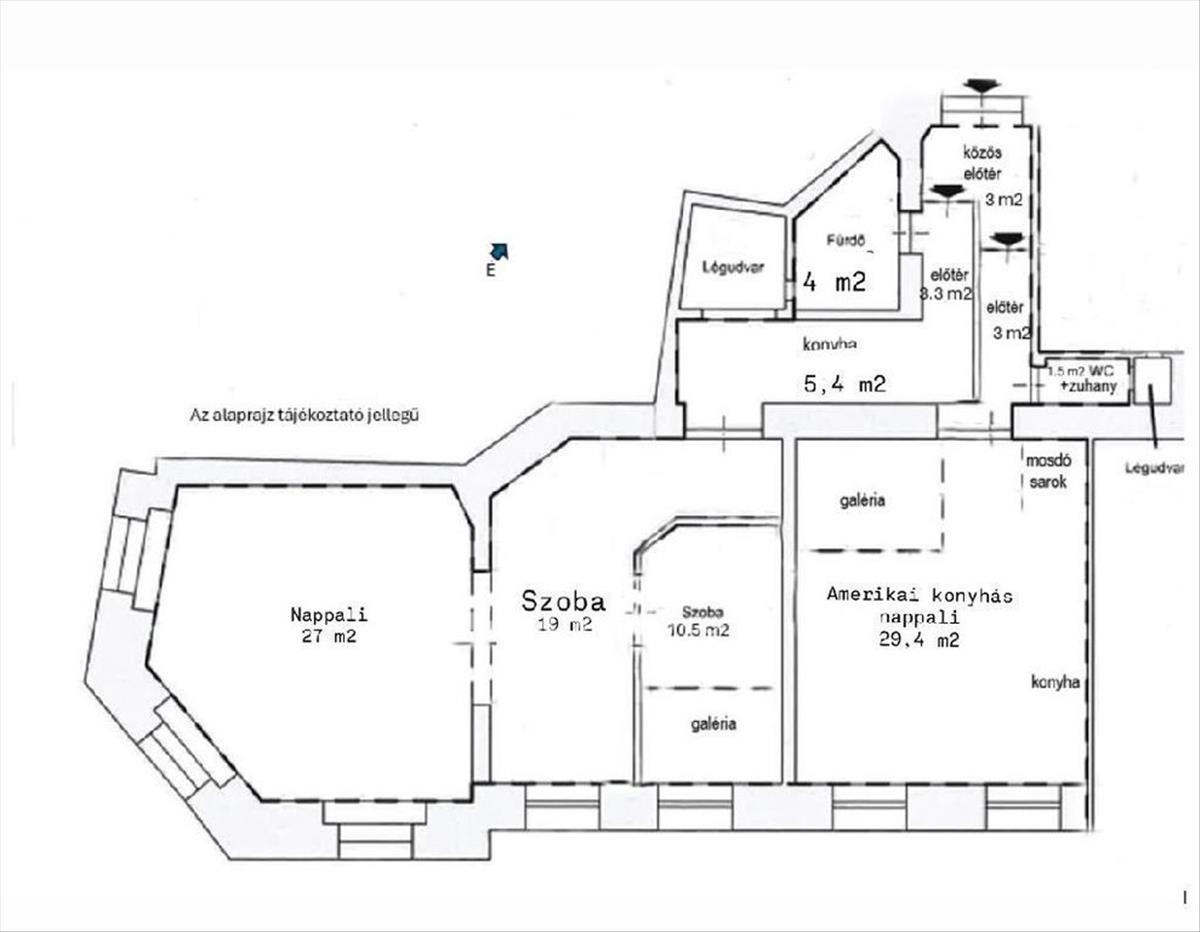
Budapest VIII. kerületében, a közkedvelt Corvin negyedben, a József körúton kínálunk megvételre egy 106 m²-es, 3+1 félszobás, felújított, világos, 3. emeleti lakást. Az ingatlan különlegessége, hogy jelenlegi kialakításának köszönhetően egyben és két külön lakásként is használható.
Egy közös bejáratról, de egymástól jól szeparálva található benne egy 35 m²-es garzon konyhával és fürdőszobával, valamint egy 71 m²-es, háromszobás lakás. Ez az elrendezés ideális lehet két generáció együttélésére, lakás-iroda kombinációra, de befektetési célra is kifejezetten előnyös, hiszen a két lakrész külön-külön vagy egyben is bérbe adható.
Az ingatlan 2024-ig több ütemben felújításon esett át, amely érintette a villany- és vízvezetékek cseréjét, a burkolatokat, a fűtés korszerűsítését, a konyhát, a szanitereket és a nyílászárókat is. Legutóbb kondenzációs kazán került beépítésre, amely modern és energiatakarékos fűtést biztosít. a lakás rendkívül világos, körbenapozott, hang- és hőszigetelt műanyag nyílászárókkal rendelkezik, a József körútra néző ablakok ellenére is kellemes komfortérzetet biztosítva. Két helyiségben, körülbelül 1, 7 méteres belmagassággal, galéria növeli a hasznos életteret. Az egyedi burkolatok és a hangulatos világítás igényes, otthonos megjelenést kölcsönöznek a lakásnak.
A társasház rendezett, jó állapotú, lakóközössége kulturált. Az ingatlan 1/1 tulajdonban van, tehermentes, rövid időn belül birtokba vehető. a gépek, berendezések és bútorok vételára 10 millió forint, amely kötelezően megvásárolandó.
A kiváló elhelyezkedés és a remek közlekedés miatt az ingatlan befektetésként is kiemelkedő lehetőség, akár két teljesen szeparált lakásként történő hasznosítással. Az Otthon Start Program feltételeinek is megfelel, így kedvezményes finanszírozással is megvásárolható.
Amennyiben felkeltette érdeklődését ez a sokoldalúan hasznosítható, kiváló adottságú ingatlan, várom megtisztelő megkeresését.
Az ingatlanhoz energetikai tanusítvány jelenleg nem áll rendelkezésre, ennek beszerzése folyamatban van.
Referenciaszám: m320627 Hitel.hu - Hasonlítsa össze a bankok lakáshitel ajánlatait
Tetszett ez az eladó Budapest VIII. kerületi újszerű állapotú 3 egész és 1 fél szobás tégla lakás? Hívd fel a hirdetőt most, és tudj meg mindent erről az eladó tégla lakásról! Ha gondolod nézelődj tovább az eladó lakás Budapest VIII. kerület oldal hirdetései között. Ennek az eladó lakásnak az ára 108500000 Ft és mivel az alapterülete 106 négyzetméter, ezért az átlagos négyzetméterára 1023585 HUF/m2.
Az eladó lakások menüpontban további hirdetések között is böngészhetsz. Az összes eladó budapesti lakás hirdetést tartalmazó oldalon tudsz böngészni. Ha van kedved, akkor böngészhetsz a Dr. Jakus Péter összes hirdetése között, vagy akár a/az OTPip Budapest IX. kerület Üllői út 21 - OTP Ingatlanpont Iroda összes hirdetése között is.

