Eladó újszerű állapotú lakás - Budapest VIII. kerület
- INGYENES HIRDETÉS FELADÁS
Ingatlan adatai
- Feladva:6 hónapnál régebbi hirdetés
- Eladó vagy kiadó:Eladó
- Település:Budapest VIII. kerület
- Kategória:Lakás
- Alkategória:Tégla
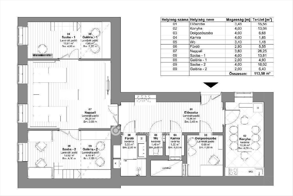
- Alapterület:98 m2
- Csere is:Nem
- Hirdető:Cég
- Élő videón megtekinthető:Nem
- Szobaszám:3 + 1 fél
- Állapot:Újszerű, kitűnő
- Hány szintes az ingatlan:Földszintes
- Komfortosság:nincs megadva
- Hányadik emeleti:1
- Erkély:nincs megadva
- Lift:Nincs
- Parkolási lehetőség:nincs megadva
- Fűtés:Gáz (cirko)
- Bútorozottság:nincs megadva
- Fényviszony:Jó
- Tájolás:nincs megadva
- Kilátás:nincs megadva
- Internet:nincs megadva
- Klíma:Van
- Akadálymentesített:nincs megadva
- Energiatanúsítvány:D
- Villany:Van
- Víz:Van
- Gáz:nincs megadva
- Csatorna:Van
- Közös költség:34 000 Ft
- Kapcsolatfelvétel

Juhász Emese
+36-(70)-369-0088
Mondd meg a hirdetőnek, hogy a megveszLAK-on találtad a hirdetést.
Referencia szám: M312521
Hitel ajánlatok
Ingatlan hirdetés leírása
Eladó Lakás, Budapest 8. ker.
Belvárosi különlegesség, otthon és befektetés egyben
A VII. És VIII. kerület határán, csendes mellékutcában található ez a napfényes, első emeleti, 113 m2-es lakás, amelyet építészcsalád tervei alapján, kompromisszumok nélkül újítottak fel. a letisztult, modern stílus és az egyedi részletmegoldások harmóniája olyan otthont eredményezett, amely valóban azonnal költözhető, és hosszú távon is értékálló befektetést jelent.
A lakás teljes körű, dokumentált felújításon esett át: minden közmű, burkolat és nyílászáró megújult, a fűtést gazdaságos kondenzációs gázkazán, a hűtést álmennyezetbe rejtett, WiFi-ről vezérelhető klíma biztosítja. Az alacsony rezsiköltségek (átlagosan villany 6. 000 Ft, gáz 7. 000 Ft, víz 4. 000 Ft, közös költség 34. 000 Ft) kényelmes fenntarthatóságot kínálnak a belváros szívében.
A vételár része a modern, beépített Gorenje konyhai gépekkel felszerelt konyha, valamint az egyedileg tervezett bútorok, lámpák és kanapé, így az új tulajdonos valóban csak a személyes tárgyait kell, hogy hozza. a további berendezési tárgyak megegyezés szerint elérhetők.
A környék kivételes: néhány perc sétára találhatók az m2 és m4 metróvonalak, a 4-6-os villamos, valamint több busz- és troli járat. a Keleti pályaudvar 6 perc alatt elérhető, így a város bármely pontja gyorsan megközelíthető. a II. János Pál Pápa tér közelsége sportolásra, kikapcsolódásra kínál lehetőséget, míg a környék üzletei, színházai és bevásárlóközpontjai a mindennapok kényelmét szolgálják.
A rendezett, liftes társasház hangulatos, zöld belső udvarral, erős közös képviselettel és stabil pénzügyi háttérrel rendelkezik, ami szintén hozzájárul az ingatlan biztonságos értéknövekedéséhez.
Ez a lakás nemcsak egy stílusos és tágas otthon, hanem egy megbízható befektetés is, amely rövid határidővel birtokba vehető.
Amennyiben az ingatlan felkeltette az érdeklődését, kérem, vegye fel velem a kapcsolatot!
Az adásvételi szerződés megkötéséhez igény szerint megbízható ügyvédi és hitelügyintézői közreműködést biztosítunk, és segítséget nyújtunk az adásvételhez kapcsolódó ügyek intézéséhez. Hitel.hu - Hasonlítsa össze a bankok lakáshitel ajánlatait
Tetszett ez az eladó Budapest VIII. kerületi újszerű állapotú 3 egész és 1 fél szobás tégla lakás? Hívd fel a hirdetőt most, és tudj meg mindent erről az eladó tégla lakásról! Ha gondolod nézelődj tovább az eladó lakás Budapest VIII. kerület oldal hirdetései között. Ennek az eladó lakásnak az ára 149900000 Ft és mivel az alapterülete 98 négyzetméter, ezért az átlagos négyzetméterára 1529592 HUF/m2.
Az eladó lakások menüpontban további hirdetések között is böngészhetsz. Az összes eladó budapesti lakás hirdetést tartalmazó oldalon tudsz böngészni. Ha van kedved, akkor böngészhetsz a Juhász Emese összes hirdetése között, vagy akár a/az OTPip Budapest IX. kerület Üllői út 21 - OTP Ingatlanpont Iroda összes hirdetése között is.

