Eladó átlagos állapotú lakás - Budapest VIII. kerület
- INGYENES HIRDETÉS FELADÁS
Ingatlan adatai
- Eladó vagy kiadó:Eladó
- Település:Budapest VIII. kerület
- Kategória:Lakás
- Alkategória:Tégla
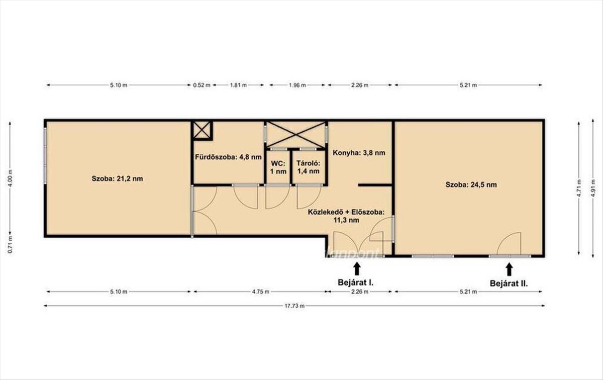
- Alapterület:68 m2
- Csere is:Nem
- Hirdető:Cég
- Élő videón megtekinthető:Nem
- Szobaszám:2
- Állapot:Átlagos állapotú
- Hány szintes az ingatlan:Földszintes
- Komfortosság:nincs megadva
- Hányadik emeleti:Félemelet
- Erkély:nincs megadva
- Lift:Nincs
- Parkolási lehetőség:Teremgarázsban
- Fűtés:Gáz (konvektor)
- Bútorozottság:nincs megadva
- Fényviszony:Közepes
- Tájolás:DNY
- Kilátás:nincs megadva
- Internet:nincs megadva
- Klíma:nincs megadva
- Akadálymentesített:nincs megadva
- Energiatanúsítvány:nincs megadva
- Villany:Van
- Víz:Van
- Gáz:nincs megadva
- Csatorna:Van
- Közös költség:24 500 Ft
- Kapcsolatfelvétel

Hitel ajánlatok
Ingatlan hirdetés leírása
Eladó Lakás, Budapest 8. ker.
Kiváló elosztású lakás a Corvin negyed szívében, befektetésnek is ideális!
Budapest VIII. kerületében, a Corvin Pláza közvetlen közelében kínálunk megvételre egy 68 nm -es, magasföldszinti, 2 szobás lakást.
Az ingatlan elosztása kifejezetten kedvező: két külön nyíló szoba, konyha, külön fürdőszoba és wc, valamint egy praktikus tárolóhelyiség áll rendelkezésre. Különlegessége, hogy két bejárattal rendelkezik, így könnyedén két önálló lakássá alakítható, ami ritka lehetőség, és komoly értéket képvisel befektetők számára is.
A lakás jelenlegi állapotában költözhető, ugyanakkor átalakítással tovább növelhető a benne rejlő potenciál, így új tulajdonosa saját igényeire szabhatja.
A lokáció kiemelkedő: pár perc sétára található a Corvin sétány, ahol számos étterem, kávézó, üzlet és szolgáltatás érhető el, emellett a 4-6-os villamos és az m3 metró is gyors közlekedést biztosít a város bármely pontjára.
Az elhelyezkedés különösen előnyös egyetemisták számára is, hiszen a közelben található a Nemzeti Közszolgálati Egyetem és a Pázmány Péter Katolikus Egyetem, így a lakás könnyen és jól kiadható.
Ez az ingatlan ideális választás lehet saját otthonnak, de átalakíthatósága és lokációja miatt kiváló, hosszú távon is értékálló befektetési lehetőség Budapest egyik legkeresettebb városrészében.
Az ingatlanhoz energetikai tanusítvány jelenleg nem áll rendelkezésre, ennek beszerzése folyamatban van.
Amennyiben hirdetésem felkeltette érdeklődését várom hívását a hét bármely napján!
Az energetikai tanúsítvány készítése folyamatban van, amint rendelkezésre áll, úgy azzal a hirdetés frissítésre kerül.
Referencia szám: m324298 FIX 3% lakáshitelre megvehető
Tetszett ez az eladó Budapest VIII. kerületi átlagos állapotú 2 szobás tégla lakás? Hívd fel a hirdetőt most, és tudj meg mindent erről az eladó tégla lakásról! Ha gondolod nézelődj tovább az eladó lakás Budapest VIII. kerület oldal hirdetései között. Ennek az eladó lakásnak az ára 64900000 Ft és mivel az alapterülete 68 négyzetméter, ezért az átlagos négyzetméterára 954412 HUF/m2.
Az eladó lakások menüpontban további hirdetések között is böngészhetsz. Az összes eladó budapesti lakás hirdetést tartalmazó oldalon tudsz böngészni. Ha van kedved, akkor böngészhetsz a Dr. Jakus Péter összes hirdetése között, vagy akár a/az OTPip Budapest IX. kerület Üllői út 21 - OTP Ingatlanpont Iroda összes hirdetése között is.

