Eladó újszerű állapotú lakás - Budapest VIII. kerület
- INGYENES HIRDETÉS FELADÁS
Ingatlan adatai
- Eladó vagy kiadó:Eladó
- Település:Budapest VIII. kerület
- Kategória:Lakás
- Alkategória:Tégla
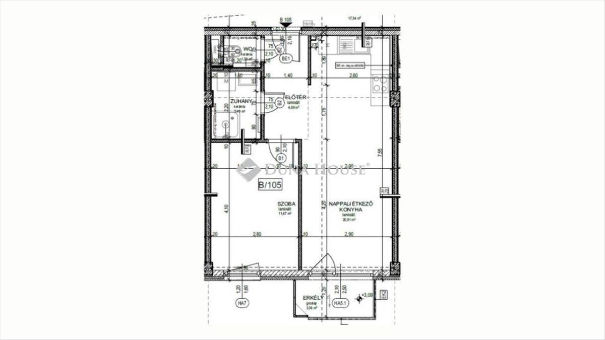
- Alapterület:43 m2
- Csere is:Nem
- Hirdető:Cég
- Élő videón megtekinthető:Nem
- Szobaszám:2
- Állapot:Újszerű, kitűnő
- Hány szintes az ingatlan:Földszintes
- Komfortosság:nincs megadva
- Hányadik emeleti:5
- Erkély:nincs megadva
- Lift:Van
- Parkolási lehetőség:nincs megadva
- Fűtés:Hőszivattyús
- Bútorozottság:Bútorozott
- Fényviszony:Napfényes
- Tájolás:DNY
- Kilátás:nincs megadva
- Internet:nincs megadva
- Klíma:nincs megadva
- Akadálymentesített:nincs megadva
- Energiatanúsítvány:nincs megadva
- Villany:Van
- Víz:Van
- Gáz:nincs megadva
- Csatorna:Van
- Kapcsolatfelvétel

Herczeg-Bíró Edit
+36-(30)-949-2772
Mondd meg a hirdetőnek, hogy a megveszLAK-on találtad a hirdetést.
Referencia szám: PR068053/LK/26391
Hitel ajánlatok
Ingatlan hirdetés leírása
Modern erkélyes 2 szobás napfényes lakás
Azonnal költözhető újszerű lakások eladók a megújuló Józsefvárosban!
Fedezze fel a modern, igényes, most elkészült új építésű lakásainkat, melyek tökéletes választások diákoknak, fiatal pároknak, pályakezdőknek és befektetőknek egyaránt.
A projekt különlegessége, hogy minden lakás – többségében garzon és nappali + 1 hálószobás – igényes, modern bútorokkal felszerelt, és azonnal költözhető! Az épület kiváló minőségű épületgépészeti megoldásokkal, korszerű hőszigeteléssel és magas színvonalú nyílászárókkal rendelkezik, így energiatakarékosan működtethető.
A világos, napfényes terek és praktikus elrendezés kellemes, otthonos hangulatot teremtenek. a környék infrastruktúrája pár perc sétával elérhető: az M4-es metró, a 46-os villamos, valamint több buszjárat könnyen elérhető. a közelben egyetemek, üzletek, éttermek, gyógyszertárak és kulturális intézmények várják Önt, így ideális választás mind a mindennapi kényelmet, mind a befektetési lehetőséget keresők számára.
Ne hagyja ki ezt a remek lehetőséget!
Érdeklődjön a hét bármely napján és tudjon meg többet az elérhető lakásainkról.
Immediately available, like-new apartments for sale in the revitalized Józsefváros!
Discover our modern, high-quality newly built apartments, which are perfect choices for students, young couples, entry-level professionals, and investors alike.
The projects uniqueness lies in the fact that each apartment – mostly studio and one-bedroom units – is equipped with tasteful, modern furniture and is ready for immediate move-in! The building features high-quality engineering solutions, modern thermal insulation, and high-standard windows and doors, making it energy-efficient.
Bright, sunlit spaces and practical layouts create a cozy, homely atmosphere. The neighborhoods infrastructure is easily accessible within a few minutes walk: the m4 metro line, tram 46, and several bus lines are nearby. Universities, shops, restaurants, pharmacies, and cultural institutions are all within reach, making this an ideal choice for both daily comfort and investment opportunities.
Dont miss out on this excellent opportunity!
Contact us any day of the week to learn more about our available apartments.
Referencia szám: pr068053/lk/26391 Hitel.hu - Hasonlítsa össze a bankok lakáshitel ajánlatait
Tetszett ez az eladó Budapest VIII. kerületi újszerű állapotú 2 szobás tégla lakás? Hívd fel a hirdetőt most, és tudj meg mindent erről az eladó tégla lakásról! Ha gondolod nézelődj tovább az eladó lakás Budapest VIII. kerület oldal hirdetései között. Ennek az eladó lakásnak az ára 70497500 Ft és mivel az alapterülete 43 négyzetméter, ezért az átlagos négyzetméterára 1639477 HUF/m2.
Az eladó lakások menüpontban további hirdetések között is böngészhetsz. Az összes eladó budapesti lakás hirdetést tartalmazó oldalon tudsz böngészni. Ha van kedved, akkor böngészhetsz a Herczeg-Bíró Edit összes hirdetése között, vagy akár a/az Duna House Ferenc tér összes hirdetése között is.

