Eladó újszerű állapotú lakás Budapest VIII. kerület
| Kedvencbe | Megosztás | Árfigyelő |
| Kedvezményes lakáshitel ajánlatok | ||
| 186 000 000 HUF | ||
Ingatlan adatai
- Eladó vagy kiadó:Eladó
- Település:Budapest VIII. kerület
- Kategória:Lakás
- Alkategória:Tégla
- Alapterület:99 m2
- Csere is:Nem
- Hirdető:Cég
- Élő videón megtekinthető:Nem
- Szobaszám:3
- Állapot:Újszerű, kitűnő
- Hány szintes az ingatlan:Földszintes
- Komfortosság:nincs megadva
- Hányadik emeleti:1
- Lift:Nincs
- Parkolási lehetőség:nincs megadva
- Fűtés:Gáz (cirko)
- Bútorozottság:nincs megadva
- Fényviszony:Jó
- Tájolás:ÉNY
- Kilátás:nincs megadva
- Internet:nincs megadva
- Akadálymentesített:nincs megadva
- Energiatanúsítvány:nincs megadva
- Villany:Van
- Víz:Van
- Gáz:nincs megadva
- Csatorna:Van
- Üzenetküldés
- Hívás

Referencia szám: LK081399

Hitel ajánlat
Ingatlan hirdetés leírása
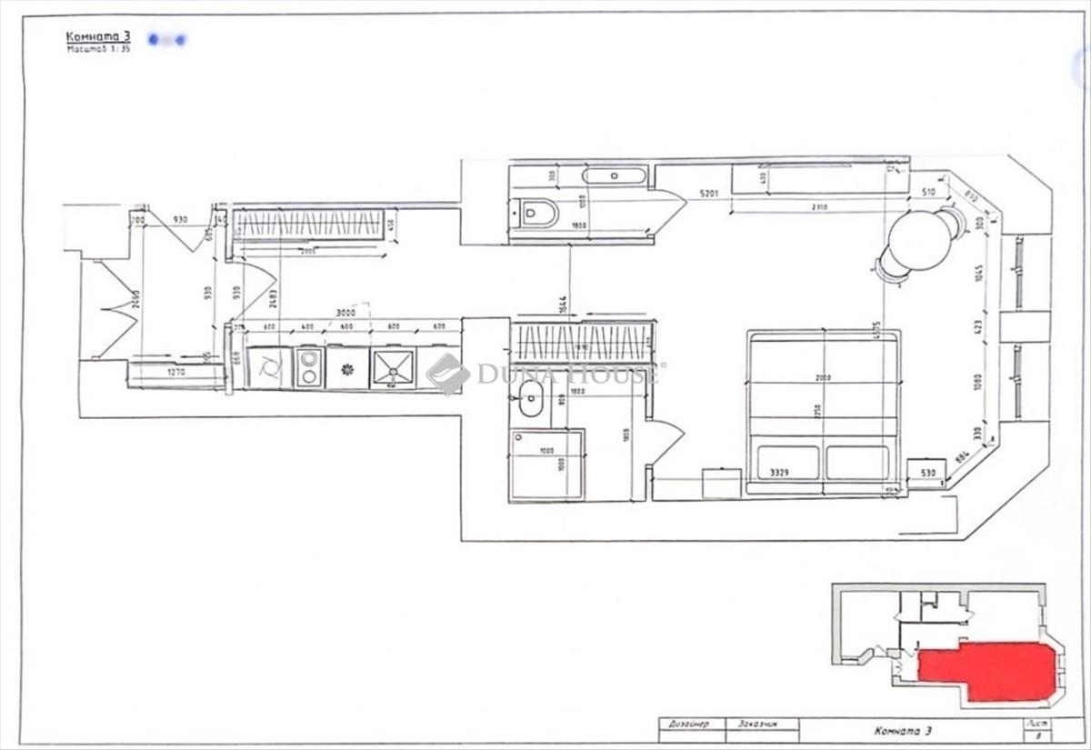
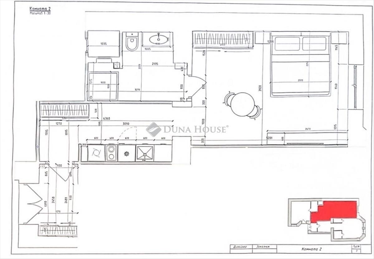
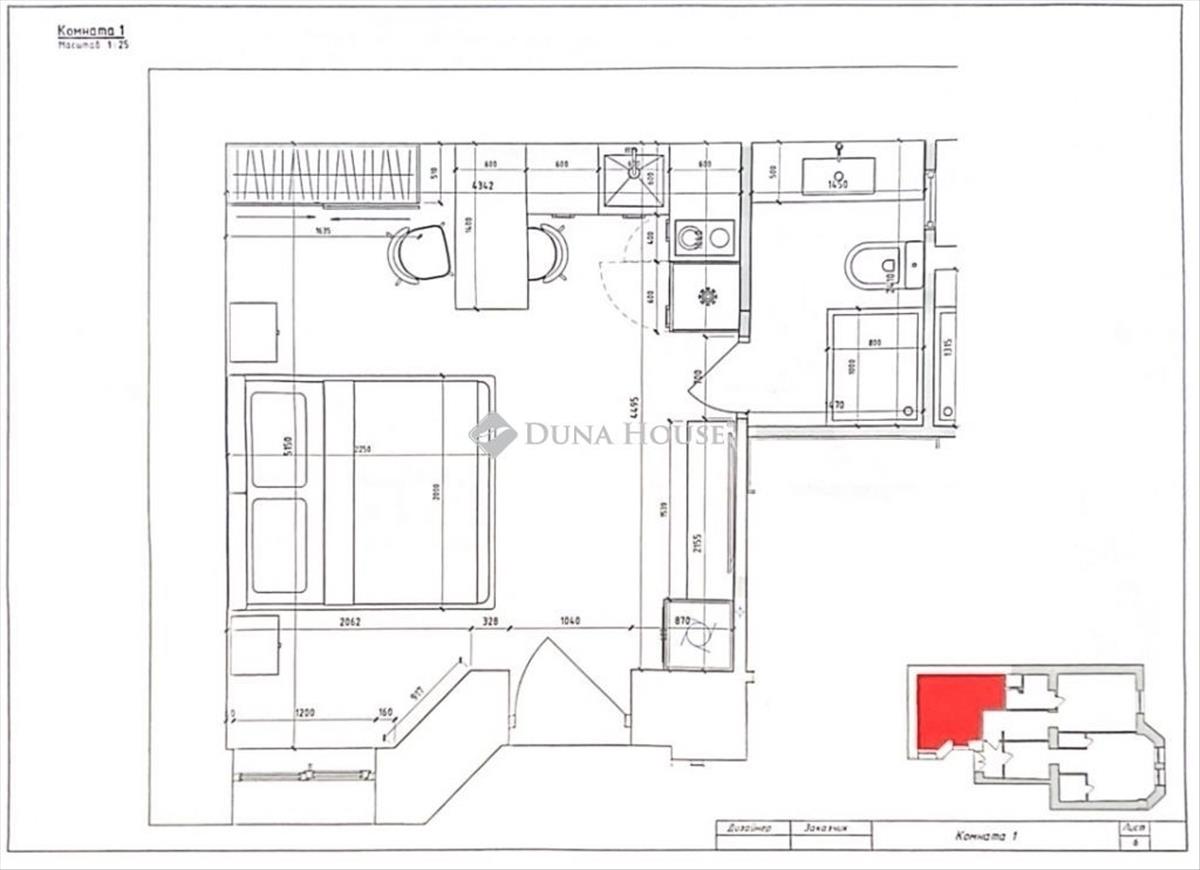
Eladó lakás, Budapest 8. ker.
Elegáns, frissen felújított apartmanok eladók a belváros szívébenEladásra kínálunk három igényesen felújított, teljesen berendezett első emeleti apartmant. Az ingatlanok 2024-ben teljes körű felújításon estek át, modern gépészettel és prémium minőségű anyaghasználattal. a 380 cm-es belmagasság tágas, világos tereket biztosít, az elegáns, minimalista belső kialakítás pedig letisztult megjelenést és időtálló stílust képvisel.
A környék infrastruktúrája kiemelkedő: kávézók, éttermek, egyetemek és közlekedési csomópontok néhány perc sétával elérhetők. a belvárosi elhelyezkedés és a magas minőségű kialakítás miatt az apartmanok kiváló befektetési lehetőséget kínálnak, stabil hozampotenciállal.
Megbízhatóan, gyorsan és az Ön érdekeit szem előtt tartva dolgozom, a teljes értékesítési folyamat során.
Referencia szám: lk081399 Hitel.hu - Hasonlítsa össze a bankok lakáshitel ajánlatait

