Eladó felújított lakás - Budapest VIII. kerület
- INGYENES HIRDETÉS FELADÁS
Ingatlan adatai
- Feladva:4 hónapja a megveszLAK-on
- Eladó vagy kiadó:Eladó
- Település:Budapest VIII. kerület
- Kategória:Lakás
- Alkategória:Tégla
- Alapterület:51 m2
- Csere is:Nem
- Hirdető:Cég
- Élő videón megtekinthető:Nem
- Szobaszám:1 + 2 fél
- Állapot:Felújított
- Hány szintes az ingatlan:nincs megadva
- Komfortosság:nincs megadva
- Hányadik emeleti:Földszint
- Erkély:Van
- Lift:nincs megadva
- Parkolási lehetőség:nincs megadva
- Fűtés:Egyéb
- Bútorozottság:nincs megadva
- Fényviszony:nincs megadva
- Tájolás:nincs megadva
- Kilátás:nincs megadva
- Internet:nincs megadva
- Klíma:nincs megadva
- Akadálymentesített:nincs megadva
- Energiatanúsítvány:nincs megadva
- Villany:Van
- Víz:Van
- Gáz:Van
- Csatorna:Van
- Kapcsolatfelvétel

Magyar Emese
+36-(20)-971-8918
Mondd meg a hirdetőnek, hogy a megveszLAK-on találtad a hirdetést.
Hitel ajánlatok
Ingatlan hirdetés leírása
ELADÓ LAKÁS BUDAPEST VIII. KERÜLET FELÚJÍTOTT
Budapest intellektuálisan nyüzsgő részében a VIII. – Kerületben eladó egy frissen felújított, lakberendező által megálmodott elegáns nyugalmat sugárzó fsz-i lakás.
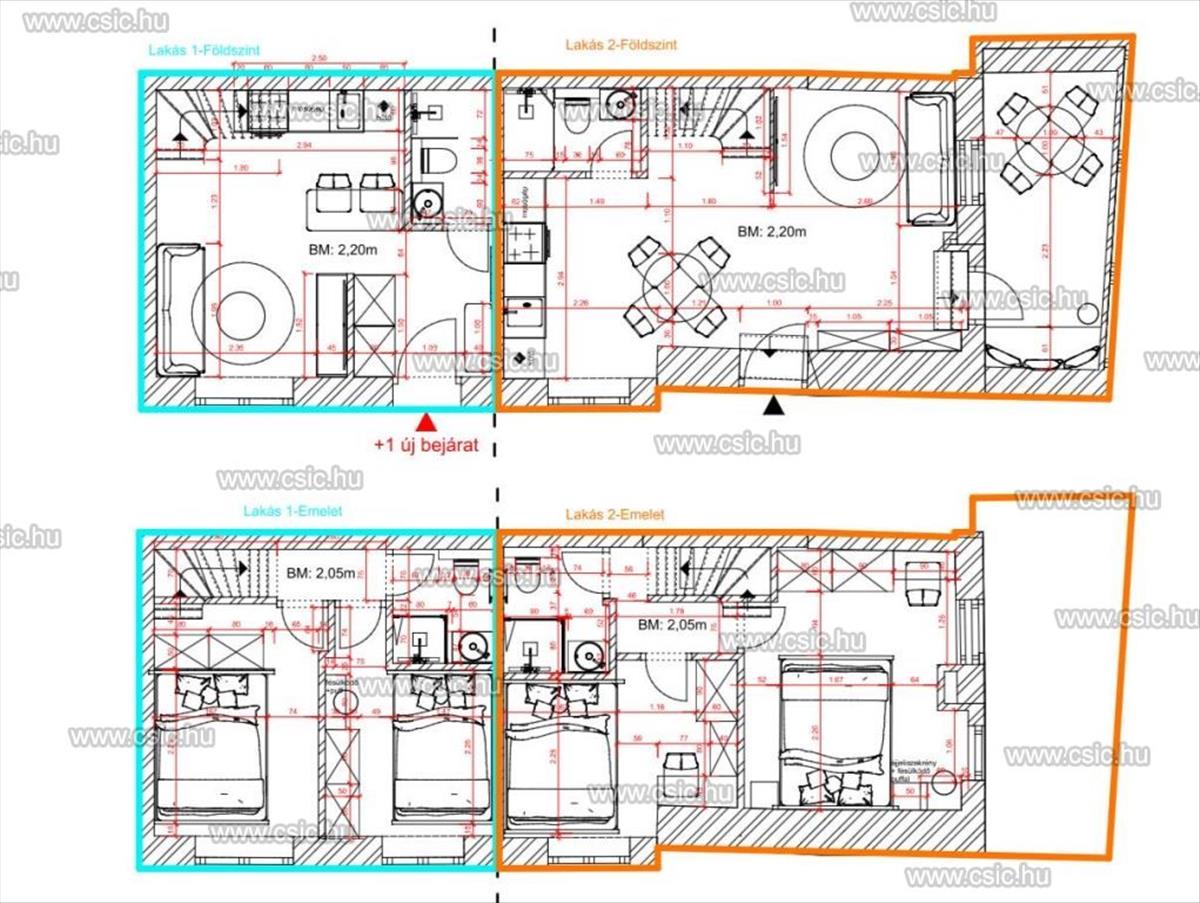
A lakás belmagassága lehetővé tette a két szint kialakítását, ezzel átalakítva a tereket a mai kor elvárásainak.
Alsó szinten helyet kapott a nappali, konyha, fürdőszoba és wc. Az emeleten két külön nyíló hálószoba és fürdő+ Wc kapott helyet.
Zseniális térkihasználásnak köszönhetően 51nm hasznos lakóteret kaptunk, ami 26nm alsó és 25 nm felső szintből áll.
Tartozik még a lakáshoz egy 11 nm beépített téli kert, ami Budapest belvárosában ritkaságnak számít.
A lakás fűtése inverteres klímával és padlófűtéssel megoldott. Gáz nincs a lakásban.
A bútorok, berendezés és minden felszerelés a vételár részét képezik.
Önnek csak a bőröndjét kell hoznia!
Várom hívását! FIX 3% lakáshitelre megvehető
Tetszett ez az eladó Budapest VIII. kerületi felújított 1 egész és 2 fél szobás tégla lakás? Hívd fel a hirdetőt most, és tudj meg mindent erről az eladó tégla lakásról! Ha gondolod nézelődj tovább az eladó lakás Budapest VIII. kerület oldal hirdetései között. Ennek az eladó lakásnak az ára 69900000 Ft és mivel az alapterülete 51 négyzetméter, ezért az átlagos négyzetméterára 1370588 HUF/m2.
Az eladó lakások menüpontban további hirdetések között is böngészhetsz. Az összes eladó budapesti lakás hirdetést tartalmazó oldalon tudsz böngészni. Ha van kedved, akkor böngészhetsz a Magyar Emese összes hirdetése között, vagy akár a/az Családi Ingatlan összes hirdetése között is.

