Eladó új építésű lakás Budapest XI. kerület
| Kedvencbe | Megosztás | Árfigyelő |
| Kedvezményes lakáshitel ajánlatok | ||
| 218 504 000 HUF | ||
Ingatlan adatai
- Eladó vagy kiadó:Eladó
- Település:Budapest XI. kerület
- Kategória:Lakás
- Alkategória:Tégla
- Alapterület:124 m2
- Csere is:Nem
- Hirdető:Cég
- Élő videón megtekinthető:Nem
- Szobaszám:5
- Állapot:Új építésű
- Hány szintes az ingatlan:nincs megadva
- Komfortosság:nincs megadva
- Hányadik emeleti:Földszint
- Erkély:Van
- Parkolási lehetőség:nincs megadva
- Fűtés:Megújuló energia
- Bútorozottság:nincs megadva
- Fényviszony:nincs megadva
- Tájolás:K
- Kilátás:Kertre néző
- Internet:nincs megadva
- Akadálymentesített:nincs megadva
- Energiatanúsítvány:nincs megadva
- Villany:Van
- Víz:Van
- Gáz:Utcában
- Csatorna:Van
- Üzenetküldés
- Hívás


Hitel ajánlat
Ingatlan hirdetés leírása
XI. SPANYOLRÉT, ÚJÉPÍTÉSŰ SORHÁZ SAJÁT KERTTEL, 2 AUTÓBEÁLLÓVA...
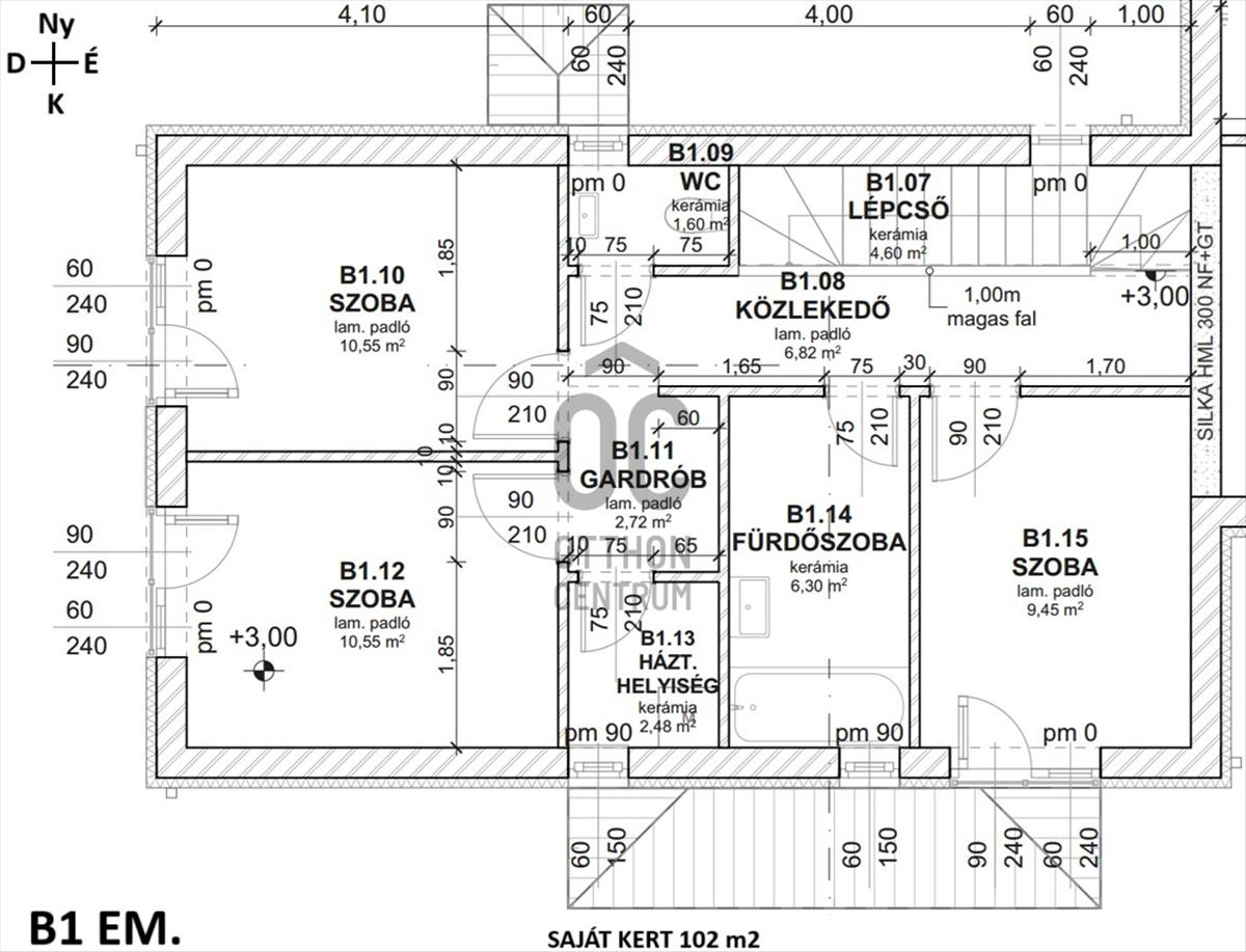
XI. Spanyolrét, új építésű sorház saját kerttel, 2 AUTÓBEÁLLÓVALXI. kerület spanyolrét körzetében, csendes mellékutcában, teljesen sík, nagyjából téglalap alakú, 2000 m2 telken épülő, 2x3 épületből álló, sorházi társasházban kínálunk eladásra, egy K-i tájolású, saját kertre néző, belső 2 szintes, 120, 9 m2-es (7 m2 terasz 1/2 méretének a beszámítása mellett. a terasz nélküli nettó főfalakon belüli alapterület 117, 4 m2), 5 szobás, 2 fürdőszobás, 2 db telken belüli felszíni beállóval (+4 Mft/db), és 102 m2 saját kerttel rendelkező sorházi lakást.
Fűtés-hűtés: hőszivattyús rendszer melegvíz tárolóval, padlófűtéssel, illetve opcionálisan mennyezet hűtés-fűtéssel. a földszinten és az emeleten fan-coil hűtés kerül kialakításra. Külső nyílászárók: Műanyag profilú 5-6 légkamrás, kívül színes fólia, 3 rétegű üvegezéssel.
TETŐN napelem rendszer fogadására alkalmas védőcsövezés kerül kialakításra, napelem telepítése külön árajánlat alapján kerül kiépítésre.
A földszinti lakótérben természetesen lehetőség van a 11, 3 m2-es szoba mellőzésére, ami által egy tágasabb nappali konyha-étkező kialakítás lenne elérhető!
Az ingatlan főfalak által behatárolt területe jelen pillanatban még a leendő vásárlói igényeknek megfelelően alakítható ki: válaszfalak elhelyezése, szobaszám, szobák mérete…. Stb.
A kivitelező jó néhány társasházat már felépített, így természetesen több referenciamunkával is rendelkezik! Az ingatlan kulcsrakész állapota 2026 év végére várható.
Közlekedés: 40, 40b, 88, és 88a buszok gyalogosan 10 percre, m4 metró kelenföldi végállomása busszal 6-8 perc alatt ELÉRHETŐ.
TISZTELT ÉRDEKLŐDŐ!
TÖBB mint 20 éve foglalkozom ingatlanok értékesítésével magyarország piacvezető ingatlanközvetítő hálózatánál, az otthon centrumnál. Amennyiben szándékában áll ingatlant eladni - a legrövidebb időn belül, garantált jogi, és banki háttérrel - keressen bizalommal, hogy egy helyszíni felmérést követő ingyenes értékmegállapítás után, együtt tudjunk működni az ön ingatlanának az eladásában IS!
Projekt bemutatása
XI. Spanyolrét, új építésű sorház saját kerttel, 2 AUTÓBEÁLLÓVAL
XI. kerület spanyolrét körzetében, csendes mellékutcában, teljesen sík, nagyjából téglalap alakú, 2000 m2 telken épülő, 2x3 épületből álló, sorházi társasházban kínálunk eladásra, 6 db saját kertre néző, belső 2 szintes, 120 m2-es (7 m2 terasz 1/2 méretének a beszámítása mellett. a terasz nélküli nettó főfalakon belüli alapterület 117 m2), 5 szobás, 2 fürdőszobás, 2 db telken belüli felszíni beállóval (+4 Mft/db), és 102 - 260 m2 saját kerttel rendelkező sorházi lakásokat.
Fűtés-hűtés: hőszivattyús rendszer melegvíz tárolóval, padlófűtéssel, illetve opcionálisan mennyezet hűtés-fűtéssel. a földszinten és az emeleten fan-coil hűtés kerül kialakításra. Külső nyílászárók: Műanyag profilú 5-6 légkamrás, kívül színes fólia, 3 rétegű üvegezéssel.
TETŐN napelem rendszer fogadására alkalmas védőcsövezés kerül kialakításra, napelem telepítése külön árajánlat alapján kerül kiépítésre.
A földszinti lakótérben természetesen lehetőség van a plusz szoba mellőzésére, ami által egy tágasabb nappali konyha-étkező kialakítás lenne elérhető!
Az ingatlan főfalak által behatárolt területe jelen pillanatban még a leendő vásárlói igényeknek megfelelően alakítható: válaszfalak elhelyezése, szobaszám, szobák mérete…. Stb.
A kivitelező jó néhány társasházat már felépített, így természetesen több referenciamunkával is rendelkezik! Az ingatlan kulcsrakész állapota 2026 év végére várható.
Közlekedés: 40, 40b, 88, és 88a buszok gyalogosan 10 percre, m4 metró kelenföldi végállomása busszal 6-8 perc alatt ELÉRHETŐ.
TISZTELT ÉRDEKLŐDŐ!
TÖBB mint 20 éve foglalkozom ingatlanok értékesítésével magyarország piacvezető ingatlanközvetítő hálózatánál, az otthon centrumnál. Amennyiben szándékában áll ingatlant eladni - a legrövidebb időn belül, garantált jogi, és banki háttérrel - keressen bizalommal, hogy egy helyszíni felmérést követő ingyenes értékmegállapítás után, együtt tudjunk működni az ön ingatlanának az eladásában is! Hitel.hu - Hasonlítsa össze a bankok lakáshitel ajánlatait
Tetszett ez az eladó Budapest XI. kerületi új építésű 5 szobás tégla lakás? Hívd fel a hirdetőt most, és tudj meg mindent erről az eladó tégla lakásról! Ha gondolod nézelődj tovább az eladó lakás Budapest XI. kerület oldal hirdetései között. Ennek az eladó lakásnak az ára 218504000 Ft és mivel az alapterülete 124 négyzetméter, ezért az átlagos négyzetméterára 1762129 HUF/m2.
Az eladó lakás menüpontban további hirdetések között is böngészhetsz. Az összes eladó budapesti lakás hirdetést tartalmazó oldalon tudsz böngészni. Ha van kedved, akkor böngészhetsz a Csopaki Balázs összes hirdetése között, vagy akár a/az Otthon Centrum XI. kerület - Gellért tér összes hirdetése között is.

