Eladó lakás Budapest XI. kerület
| Kedvencbe | Megosztás | Árfigyelő |
| Kedvezményes lakáshitel ajánlatok | ||
| 93 900 000 HUF | ||
Ingatlan adatai
- Eladó vagy kiadó:Eladó
- Település:Budapest XI. kerület
- Kategória:Lakás
- Alkategória:Tégla
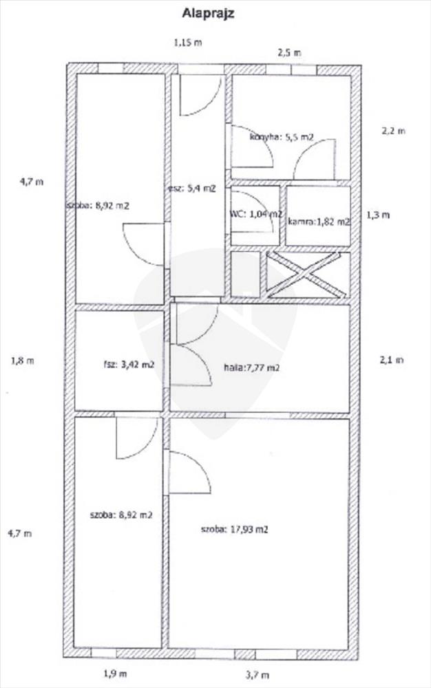
- Alapterület:60 m2
- Csere is:Nem
- Hirdető:Cég
- Élő videón megtekinthető:Nem
- Szobaszám:3
- Állapot:nincs megadva
- Hány szintes az ingatlan:nincs megadva
- Komfortosság:nincs megadva
- Hányadik emeleti:nincs megadva
- Lift:Van
- Parkolási lehetőség:nincs megadva
- Fűtés:Házközponti
- Bútorozottság:nincs megadva
- Fényviszony:nincs megadva
- Tájolás:NY
- Kilátás:Utcai
- Internet:nincs megadva
- Akadálymentesített:nincs megadva
- Energiatanúsítvány:nincs megadva
- Villany:nincs megadva
- Víz:nincs megadva
- Gáz:nincs megadva
- Csatorna:nincs megadva
- Üzenetküldés
- Hívás

Németi-Loósz Henriett
Mondd meg a hirdetőnek, hogy a megveszLAK-on találtad a hirdetést.

Hitel ajánlat
Ingatlan hirdetés leírása
Elegáns otthon várja új tulajdonosát Újbuda szívében!
Egy val...
Elegáns otthon várja új tulajdonosát Újbuda szívében! Egy valódi gyöngyszem a dinamikusan fejlődő Újbuda központjában, mindössze 3 perc sétára az Allee Bevásárlóközponttól. Ez a 60 nm-es, felújított lakás egy liftes ház első emeletén található, és az utca felé néző ablakainak köszönhetően rendkívül világos.
A lakás elrendezése optimális: a tágas nappalin kívül két külön nyíló szoba és egy külön konyha is helyet kapott, ami praktikussá és kényelmessé teszi a mindennapokat. a felújítás során minden részletre odafigyeltek, így Önnek már csak költöznie kell!
A vételár tartalmazza a beépített bútorzatot. Ne hagyja ki ezt a ritka alkalmat, hiszen az ilyen kiváló lokációval és állapotban lévő ingatlanok gyorsan gazdára találnak.
Hívjon még ma, és foglaljon időpontot a megtekintésre! Hitel.hu - Hasonlítsa össze a bankok lakáshitel ajánlatait

