Eladó újszerű állapotú lakás Budapest XI. kerület
| Kedvencbe | Megosztás | Árfigyelő |
| Kedvezményes lakáshitel ajánlatok | ||
| 129 000 000 HUF | ||
Ingatlan adatai
- Eladó vagy kiadó:Eladó
- Település:Budapest XI. kerület
- Kategória:Lakás
- Alkategória:Tégla
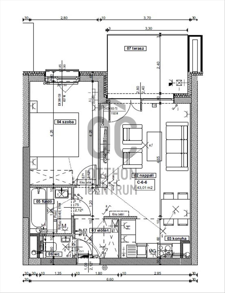
- Alapterület:47 m2
- Csere is:Nem
- Hirdető:Cég
- Élő videón megtekinthető:Nem
- Szobaszám:2
- Állapot:Újszerű, kitűnő
- Hány szintes az ingatlan:nincs megadva
- Komfortosság:nincs megadva
- Hányadik emeleti:nincs megadva
- Erkély:Van
- Lift:Van
- Parkolási lehetőség:nincs megadva
- Fűtés:Házközponti egyedi mérővel
- Bútorozottság:nincs megadva
- Fényviszony:nincs megadva
- Tájolás:ÉNY
- Kilátás:Kertre néző
- Internet:nincs megadva
- Akadálymentesített:nincs megadva
- Energiatanúsítvány:nincs megadva
- Villany:Van
- Víz:Van
- Gáz:Nincs
- Csatorna:Van
- Közös költség:20 000 Ft
- Üzenetküldés
- Hívás


Hitel ajánlat
Ingatlan hirdetés leírása
Sasad Liget Lakópark V. ütemében a legjobb adottságú 2 szobás ...
Sasad Liget Lakópark v. Ütemében a legjobb adottságú 2 szobás lakást kínáljuk eladásra.Felső emeleti, teraszos, Széchenyi-hegyre néző, kiváló állapotú prémium lakás.
A Sasad Liget több mint 10 hektáros területen, mindössze 25%-os beépítettséggel valósult meg.
A nagy összefüggő zöldfelületek, parkok és sétányok kellemes természetközeli életteret biztosítanak az itt lakóknak.
A belváros gyorsan elérhető a 4-es metróval és több buszjárattal.
A lakás korszerű épületgépészettel, háromrétegű nyílászárókkal és egyedi mérésű fűtéssel rendelkezik, így a fenntartási költségek kimondottan kedvezőek.
A lakáshoz teremgarázs beálló is vásárolható melynek ára 15m Ft. Hitel.hu - Hasonlítsa össze a bankok lakáshitel ajánlatait

