Eladó jó állapotú lakás - Budapest XI. kerület
- INGYENES HIRDETÉS FELADÁS
Ingatlan adatai
- Eladó vagy kiadó:Eladó
- Település:Budapest XI. kerület
- Kategória:Lakás
- Alkategória:Tégla
- Alapterület:31 m2
- Csere is:Nem
- Hirdető:Cég
- Élő videón megtekinthető:Nem
- Szobaszám:2
- Állapot:Jó állapotú
- Hány szintes az ingatlan:nincs megadva
- Komfortosság:nincs megadva
- Hányadik emeleti:nincs megadva
- Erkély:Van
- Lift:Van
- Parkolási lehetőség:nincs megadva
- Fűtés:Házközponti egyedi mérővel
- Bútorozottság:nincs megadva
- Fényviszony:nincs megadva
- Tájolás:K
- Kilátás:Kertre néző
- Internet:nincs megadva
- Klíma:nincs megadva
- Akadálymentesített:nincs megadva
- Energiatanúsítvány:nincs megadva
- Villany:Van
- Víz:Van
- Gáz:nincs megadva
- Csatorna:Van
- Közös költség:14 000 Ft
- Kapcsolatfelvétel

Hitel ajánlatok
Ingatlan hirdetés leírása
XI. kerület frekventált részén, a Kondorosi lakóparkban egy 2....
XI. kerület frekventált részén, a Kondorosi lakóparkban egy 2. emeleti, keleti tájolású, amerikai konyhás nappali + ablakos hálófülkés, újszerű állapotú lakás. Amennyiben egy kiváló adottságokkal rendelkező, értékálló ingatlant keres frekventált, mégis zöld környezetben, ezt a lakást feltétlenül nézze meg!
KÖRNYEZET:
- 11. kerület - Kelenföld
- Tömegközlekedéssel, átszállás nélkül: Bikás Park m4 metró - 9 perc
Móricz Zsigmond körtér - 15 perc
Savoya park - 9 perc
- Gépjárművel 11 perc alatt érheted el az M7-es autópályát
- 400 méteren belül található aldi, Edzőterem, Uszoda, Gyógyszertár
- Vakvarjú étterem 4 perc sétára
- a Dunapart 8 perc sétatávolság
ÉPÜLET
- Kondorosi Lakópark
- 2006-ban átadott, liftes, karbantartott épület
- Kulturált, fiatalos lakóközösség
- Belső kert igényes, gondozott
- Teremgarázsok az épület alatt
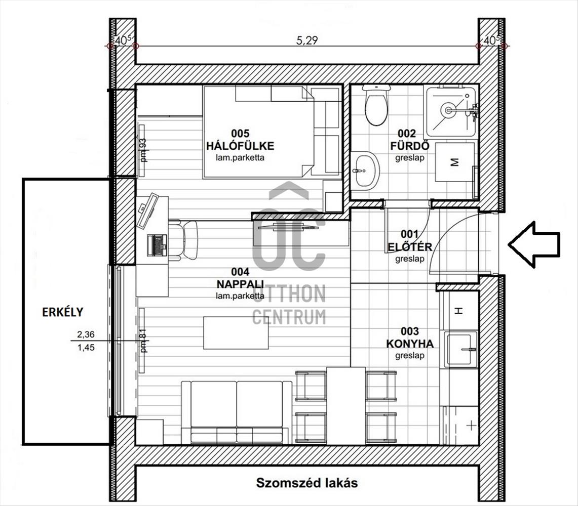
LAKÁS
- 2. emeleti
- 29 m2 lakótér + 4 m2 erkély
- Amerikai konyhás nappali + ablakos hálófülke
- Keleti tájolású
- a burkolatok jó állapotban vannak
- Hőszigetelt műanyag nyílászárók
- Fűtést és melegvizet házközponti kazán biztosítja, hidegről klíma gondoskodik
PARKOLÁS
- Kiadó felsziní beálló vagy teremgarázs bérelhető
- Amennyiben saját tulajdonú beállót vagy teremgarázst szeretnél, segítünk ennek megtalálásában
Ha fiatalos és igényes lakókörnyezetben szeretnéd megtalálni igényes új otthonod, ezt az ingatlant feltétlenül nézd meg személyesen is!
Hívjon bizalommal!
Ez az ingatlan a "Hűség csomag" megbízási portfólióhoz tartozik. Részletek az Otthon Centrum weboldalán. Hitel.hu - Hasonlítsa össze a bankok lakáshitel ajánlatait
Tetszett ez az eladó Budapest XI. kerületi jó állapotú 2 szobás tégla lakás? Hívd fel a hirdetőt most, és tudj meg mindent erről az eladó tégla lakásról! Ha gondolod nézelődj tovább az eladó lakás Budapest XI. kerület oldal hirdetései között. Ennek az eladó lakásnak az ára 67900000 Ft és mivel az alapterülete 31 négyzetméter, ezért az átlagos négyzetméterára 2190323 HUF/m2.
Az eladó lakások menüpontban további hirdetések között is böngészhetsz. Az összes eladó budapesti lakás hirdetést tartalmazó oldalon tudsz böngészni. Ha van kedved, akkor böngészhetsz a Török Tamás összes hirdetése között, vagy akár a/az Otthon Centrum XI. kerület - Vincellér utca összes hirdetése között is.

