Eladó új építésű lakás - Budapest XII. kerület
- INGYENES HIRDETÉS FELADÁS
Ingatlan adatai
- Eladó vagy kiadó:Eladó
- Település:Budapest XII. kerület
- Kategória:Lakás
- Alkategória:Tégla
- Alapterület:125 m2
- Csere is:Nem
- Hirdető:Cég
- Élő videón megtekinthető:Nem
- Szobaszám:4
- Állapot:Új építésű
- Hány szintes az ingatlan:nincs megadva
- Komfortosság:nincs megadva
- Kertkapcsolatos:Igen
- Hányadik emeleti:Földszint
- Erkély:Van
- Lift:Van
- Parkolási lehetőség:nincs megadva
- Fűtés:Megújuló energia
- Bútorozottság:nincs megadva
- Fényviszony:nincs megadva
- Tájolás:DK
- Kilátás:Kertre néző
- Internet:nincs megadva
- Klíma:nincs megadva
- Akadálymentesített:nincs megadva
- Energiatanúsítvány:nincs megadva
- Villany:Van
- Víz:Van
- Gáz:nincs megadva
- Csatorna:Van
- Kapcsolatfelvétel

Hitel ajánlatok
Ingatlan hirdetés leírása
XII. ORBÁNHEGY, CSENDES, ÚJÉPÍTÉSŰ 4 SZOBÁS KERTKAPCSOLATOS X...
XII. Orbánhegy, csendes, új építésű 4 szobás KERTKAPCSOLATOS
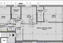
XII. kerület orbánhegy körzetében, csendes (átmenőforgalomtól mentes), zöldövezeti ősfás mellékutcában, sík, téglalap alakú, 1127 m2-es telken épülő, 4 lakásos, liftes társasházban kínálunk eladásra, egy földszinti, DK-i tájolású, kertre néző, 119 m2-es (12 m2 terasz 1/2 méretének a beszámítása mellett. a terasz, és a lakáson belüli falak alatti területek nélküli méret 113 m2) 4 szobás, 2 fürdőszobás, 1 db teremgarázs hellyel (+17 Mft), 1 db felszíni autóbeállóval (+13 Mft), és egy db 14 m2 tárolóval (+18 Mft) rendelkező, prémiumkategóriás új építésű lakást.
Az ingatlan autóval és tömegközlekedéssel is jól megközelíthető: buszmegálló 5 perc sétatávolságra, ill. a mom park és a hegyvidék bevásárlóközpont is percek alatt ELÉRHETŐ.
Elérhető lakások
•L1 lakás: 105, 63 m² + 12 m² terasz – 378 MFt
•L2 lakás: 113 m² + 12 m² terasz – 398 MFt
•L3 lakás: 150 m² + 53 m² terasz/erkély – 580 MFt
•L4 lakás: 150 m² + 46 m² terasz/erkély – 570 MFt
MŰSZAKI tartalom – prémium szintű MEGOLDÁSOK
Az épület a 2022. Évi aa+ energetikai követelményeknek megfelelően, a legmodernebb gépészeti technológiákkal és knx intelligens épületautomatika rendszerrel kerül kivitelezésre.
Lakásonként egyedi gépészet:
•Mennyezeti hűtés–fűtés és padlófűtés, harmatpont-érzékelővel
•Panasonic víz–levegő hőszivattyús rendszer a fűtés és a használati melegvíz biztosítására
•KNX intelligens otthon rendszer, melynek segítségével akár mobiltelefonról, távolról is vezérelhető a fűtés, hűtés, világítás stb.
•Zehnder hővisszanyerős szellőztetőrendszer, folyamatos friss, szűrt levegővel
További műszaki és kényelmi elemek:
•Háromrétegű hőszigetelt üvegezésű fa nyílászárók
•Távirányítással működtethető alumínium redőnyrendszer
•Falsíkban záródó belső ajtók
•Minőségi hideg- és melegburkolatok
•Villeroy & Boch szaniterek és fürdőszobabútorok
•Hansgrohe csaptelepek
•Hüppe zuhanykabinok
•Okosotthon-kompatibilis kapcsolók és konnektorok
•Fűtött lehajtó a mélygarázsba
•Automata garázs- és kertkapu
•Riasztórendszer-, tv- és internet-előkészítés
•Videó kaputelefon
•Épített kert automata öntözőrendszerrel
•Kerti világítás
•Az épületben a teremgarázs szintről induló felvonó kerül beépítésre
BELSŐÉPÍTÉSZET és egyedi IGÉNYEK:
A lakások a Geppetto Belsőépítész Iroda által készített részletes belsőépítészeti kiviteli tervek alapján valósulnak meg.
A kivitelezés során – a műszaki lehetőségek figyelembevételével – lehetőség van a lakások vevői igény szerinti egyedi módosítására.
A lakások átadásának időpontja: 2027. II. Félév
FIZETÉSI ÜTEMEZÉS:
•Szerződéskötéskor: 10% foglaló + 10% vételárelőleg
•A fennm aradó vételár megfizetése a készültségi szintnek megfelelően, további 6 részletben történik
TISZTELT ÉRDEKLŐDŐ!
TÖBB mint 20 éve foglalkozom ingatlanok értékesítésével magyarország piacvezető ingatlanközvetítő hálózatánál, az otthon centrumnál. Amennyiben szándékában áll ingatlant eladni - a legrövidebb időn belül, garantált jogi, és banki háttérrel - keressen bizalommal, hogy egy helyszíni felmérést követő ingyenes értékmegállapítás után, együtt tudjunk működni az ön ingatlanának az eladásában IS!
Projekt bemutatása
XII. Orbánhegy, csendes, új építésű 3, 4, és 5 szobás prémiumkategóriás LAKÁSOK
XII. kerület orbánhegy körzetében, csendes (átmenőforgalomtól mentes), zöldövezeti ősfás mellékutcában, sík, téglalap alakú, 1127 m2-es telken épülő, 4 lakásos, liftes társasházban kínálunk eladásra, 4 db, DNY-i és DK-i tájolású, kertre néző, 111, 6 – 176 m2-ig (teraszok 1/2, és 1/3 méreteinek a beszámítása mellett) 3, 4 és 5 szobás, teremgarázs helyekkel (+17 Mft/db), felszíni autóbeállókkal (+13 Mft/db), és 14 m2 tárolókkal (+18 Mft/db) rendelkező, prémiumkategóriás új építésű lakásokat.
Az ingatlan autóval és tömegközlekedéssel is jól megközelíthető: buszmegálló 5 perc sétatávolságra, ill. a mom park és a hegyvidék bevásárlóközpont is percek alatt ELÉRHETŐ.
Elérhető lakások
•L1 lakás: 105, 63 m² + 12 m² terasz – 378 MFt
•L2 lakás: 113 m² + 12 m² terasz – 398 MFt
•L3 lakás: 150 m² + 53 m² terasz/erkély – 580 MFt
•L4 lakás: 150 m² + 46 m² terasz/erkély – 570 MFt
MŰSZAKI tartalom – prémium szintű MEGOLDÁSOK
Az épület a 2022. Évi aa+ energetikai követelményeknek megfelelően, a legmodernebb gépészeti technológiákkal és knx intelligens épületautomatika rendszerrel kerül kivitelezésre.
Lakásonként egyedi gépészet:
•Mennyezeti hűtés–fűtés és padlófűtés, harmatpont-érzékelővel
•Panasonic víz–levegő hőszivattyús rendszer a fűtés és a használati melegvíz biztosítására
•KNX intelligens otthon rendszer, melynek segítségével akár mobiltelefonról, távolról is vezérelhető a fűtés, hűtés, világítás stb.
•Zehnder hővisszanyerős szellőztetőrendszer, folyamatos friss, szűrt levegővel
További műszaki és kényelmi elemek:
•Háromrétegű hőszigetelt üvegezésű fa nyílászárók
•Távirányítással működtethető alumínium redőnyrendszer
•Falsíkban záródó belső ajtók
•Minőségi hideg- és melegburkolatok
•Villeroy & Boch szaniterek és fürdőszobabútorok
•Hansgrohe csaptelepek
•Hüppe zuhanykabinok
•Okosotthon-kompatibilis kapcsolók és konnektorok
•Fűtött lehajtó a mélygarázsba
•Automata garázs- és kertkapu
•Riasztórendszer-, tv- és internet-előkészítés
•Videó kaputelefon
•Épített kert automata öntözőrendszerrel
•Kerti világítás
•Az épületben a teremgarázs szintről induló felvonó kerül beépítésre
BELSŐÉPÍTÉSZET és egyedi IGÉNYEK:
A lakások a Geppetto Belsőépítész Iroda által készített részletes belsőépítészeti kiviteli tervek alapján valósulnak meg.
A kivitelezés során – a műszaki lehetőségek figyelembevételével – lehetőség van a lakások vevői igény szerinti egyedi módosítására.
A lakások átadásának időpontja: 2027. II. Félév
FIZETÉSI ÜTEMEZÉS:
•Szerződéskötéskor: 10% foglaló + 10% vételárelőleg
•A fennm aradó vételár megfizetése a készültségi szintnek megfelelően, további 6 részletben történik
TISZTELT ÉRDEKLŐDŐ!
TÖBB mint 20 éve foglalkozom ingatlanok értékesítésével magyarország piacvezető ingatlanközvetítő hálózatánál, az otthon centrumnál. Amennyiben szándékában áll ingatlant eladni - a legrövidebb időn belül, garantált jogi, és banki háttérrel - keressen bizalommal, hogy egy helyszíni felmérést követő ingyenes értékmegállapítás után, együtt tudjunk működni az ön ingatlanának az eladásában is! Hitel.hu - Hasonlítsa össze a bankok lakáshitel ajánlatait
Tetszett ez az eladó Budapest XII. kerületi új építésű 4 szobás tégla lakás? Hívd fel a hirdetőt most, és tudj meg mindent erről az eladó tégla lakásról! Ha gondolod nézelődj tovább az eladó lakás Budapest XII. kerület oldal hirdetései között. Ennek az eladó lakásnak az ára 398000000 Ft és mivel az alapterülete 125 négyzetméter, ezért az átlagos négyzetméterára 3184000 HUF/m2.
Az eladó lakások menüpontban további hirdetések között is böngészhetsz. Az összes eladó budapesti lakás hirdetést tartalmazó oldalon tudsz böngészni. Ha van kedved, akkor böngészhetsz a Csopaki Balázs összes hirdetése között, vagy akár a/az Otthon Centrum XI. kerület - Gellért tér összes hirdetése között is.

