Eladó új építésű lakás Budapest XII. kerület
| Kedvencbe | Megosztás | Árfigyelő |
| Kedvezményes lakáshitel ajánlatok | ||
| 227 516 100 HUF | ||
Ingatlan adatai
- Eladó vagy kiadó:Eladó
- Település:Budapest XII. kerület
- Kategória:Lakás
- Alkategória:Tégla
- Alapterület:78 m2
- Csere is:Nem
- Hirdető:Cég
- Élő videón megtekinthető:Nem
- Szobaszám:2
- Állapot:Új építésű
- Hány szintes az ingatlan:Földszintes
- Komfortosság:nincs megadva
- Hányadik emeleti:Földszint
- Erkély:Van
- Lift:Van
- Parkolási lehetőség:Teremgarázsban
- Fűtés:Hőszivattyús
- Bútorozottság:nincs megadva
- Fényviszony:Napfényes
- Tájolás:nincs megadva
- Kilátás:nincs megadva
- Internet:nincs megadva
- Akadálymentesített:nincs megadva
- Energiatanúsítvány:nincs megadva
- Villany:Van
- Víz:Van
- Gáz:nincs megadva
- Csatorna:Van
- Üzenetküldés
- Hívás

Referencia szám: M303592

Hitel ajánlat
Ingatlan hirdetés leírása
Eladó Lakás, Budapest 12. ker.
Virányos villapark és villa - prémium OTTHONOKVIRANYOS villapark and villa - premium HOMES
Elindult a Virányos Villapark épülő lakásainak értékesítése! - The sale of the apartments under construction in Viranyos Villa Park has started!
For the English description please scroll down!
Részletes információk, alaprajzok, parkolóhelyek, tárolók a viranyosvillapark. Hu oldalon - Detailed information, floor plans, parking spaces, storage facilities on viranyosvillapark. Hu!
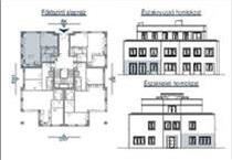
A Virányos Villapark és Villa a budai Széll Kálmán térhez közel, mégis csendes környezetben elhelyezkedő prémium minőségű lakópark. Az 1, 6 hektáros fás területen hat különálló, háromszintes villaépület épül, melyekben összesen 49 lakás kap helyet. Szintén a területen helyezkedik el egy helyi védelem alatt álló 1920-as években épült reprezentatív villaépület.
A fejlesztés során a különálló villaépület is megújul, melyben egy prémium lakás kerül kialakításra.
A lakások tervezése során kiemelt figyelmet kapott a minőségi anyaghasználat, a nagyvonalú terek kialakítása és a változatos vevői igényekhez történő alkalmazkodás lehetősége.
A Virányos Villapark beruházás során Buda egyik kiemelkedő ingatlanfejlesztése valósul meg, mely a páratlan lokációval, változatos alaprajzokkal, magánkertekkel, autóforgalomtól mentes parkosított kerttel, 99 autó befogadására alkalmas mélygarázzsal és a természet közeliségével kiváló választás egyedülállóknak, pároknak és gyermekes családoknak egyaránt.
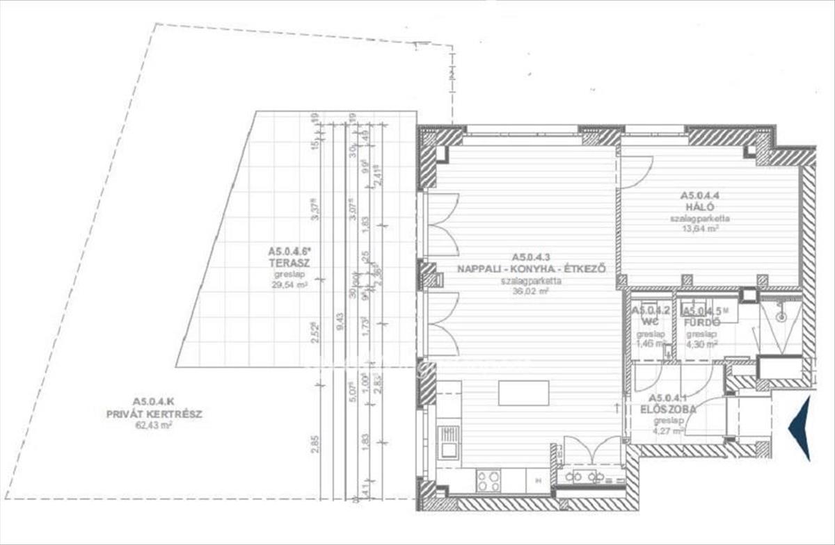
A hirdetésben szereplő lakás, az F épület földszintjén helyezkedik el, ény tájolással, 59. 69 m2 alapterülettel, mely életteret tovább növeli a 29. 54 m2 alapterületű terasz és a 62. 43 m2 területű privát kert. a lakás helyiségei: előszoba, wc, szoba, amerikai konyhás nappali, fürdőszoba.
A Villaparkban 60-175 m2 közötti, N + 1-2-3-4 szobás, kertes, teraszos, erkélyes, tágas tetőteraszos, valamint duplex és penthouse lakások közül választhat. Az elérhető lakásokról érdeklődjön telefonon!
A kiválasztott lakáshoz mélygarázs beálló hely és tároló vásárlása kötelező. További beálló helyek és tárolók a készlet erejéig vásárolhatóak.
A villapark főbb jellemzői: parkosított, öntözőrendszerrel ellátott közös kert, csendes környezet, változatos lakás-, terasz- és kertméretek, tágas, napfényes lakások.
A lakások műszaki jellemzői: megújuló energiával előállított hatékony, hőszivattyús hűtő-fűtő rendszer, padlófűtés és mennyezeti fan-coil hűtés a maximális komfort érzetért, lakásonként kialakított hővisszanyerős szellőztetőrendszer az állandó friss levegő biztosításáért, magas minőségű alumínium nyílászárók 3 rétegű üvegezéssel a kiváló hő- és hangszigetelésért, árnyékoló rendszer az optimális fényviszonyok eléréséért, audió-videó kaputelefon, személyre szabható okos otthon rendszer előkészítés, amely lehetővé teszi a lakás teljes körű vezérlését.
Elhelyezkedés:
A Virányos Villapark Buda egyik nagy presztízsű, elegáns részén valósul meg. a lokáció a lehető legoptimálisabb, a Normafa, Csillebérc mindössze 4 km, amely sportolásra, kirándulásra ideális lehetőséget biztosít, de könnyen és gyorsan megközelíthető a Széll Kálmán tér és a belváros is.
Az ingatlan közvetlen környezetében számos magánóvoda és általános iskola, gimnázium található. a Moholy-Nagy Művészeti Egyetem mindössze néhány száz méter távolságra fekszik. Bevásárlási lehetőségként a Budagyöngye Bevásárlóközpont és a szintén közeli Mammut Bevásárló- és Szórakoztató Központ is rendelkezésre áll.
A Virányos Villapark tömegközlekedési eszközzel is könnyen megközelíthető, az 56-os, 59-es, 61-es villamosok, a 22-es, 91-es, 155-ös és 156-os buszok megállói pár perc sétatávolságra találhatók.
M303592
Az OTP Ingatlanpont, mint egyetlen közvetlen banki hátterű ingatlanközvetítő társaság teljes körű ügyintézéssel áll az eladók és a vevők rendelkezésére! a kínálatunkból választott ingatlan finanszírozásához minősített fogyasztóbarát, piaci és kedvezményes hitel- és lízingkonstrukciókat kínálunk (lakásvásárlási hitel, CSOK plusz, szabad felhasználású hitel, babaváró hitel, céges hitelek, pályázatok). Az adásvételi szerződés megkötéséhez igény szerint megbízható ügyvédi közreműködést biztosítunk, és segítséget nyújtunk az adásvételhez kapcsolódó egyéb ügyek intézéséhez.
Ha az új ingatlana megvásárlásához a jelenlegi ingatlanát el kell adnia, abban is szívesen segítünk.
--------------------------------------------------------------------------------------
The Virányos Villa Park and Villa is a premium quality residential complex located close to Széll Kálmán Square in Buda, yet in a quiet environment. The 1. 6 Hectares of wooded land will be home to six separate three-storey villas with a total of 49 apartments. a representative 1920s villa, a locally listed building, is located close to the site. The development will also include the regeneration of the detached villa building, which will include a premium apartment.
In Villa Park you can choose between 60-175m2, N + 1-2-3-4 bedroom apartments with garden, terrace, balcony, spacious roof terrace, duplex and penthouse. Please call to enquire about available apartments!
The purchase of an underground parking space and storage is mandatory for the selected apartment. Additional parking spaces and storage are subject to availability.
Technical characteristics of the apartments: efficient heat-pumped cooling and heating system produced with renewable energy, underfloor heating and ceiling fan-coil cooling for maximum comfort, heat recovery ventilation system per apartment to ensure constant fresh air, high quality aluminium windows with 3 layers of glazing for excellent thermal and acoustic insulation, shading system for optimal light conditions, audio-video intercom, personalised smart home system preparation allowing full control of the apartment.
Referencia szám: m303592-ml Hitel.hu - Hasonlítsa össze a bankok lakáshitel ajánlatait

