Eladó jó állapotú lakás - Budapest XII. kerület
- INGYENES HIRDETÉS FELADÁS
Ingatlan adatai
- Eladó vagy kiadó:Eladó
- Település:Budapest XII. kerület
- Kategória:Lakás
- Alkategória:Tégla
- Alapterület:104 m2
- Csere is:Nem
- Hirdető:Cég
- Élő videón megtekinthető:Nem
- Szobaszám:4
- Állapot:Jó állapotú
- Hány szintes az ingatlan:4 szintes
- Komfortosság:nincs megadva
- Hányadik emeleti:Földszint
- Erkély:nincs megadva
- Lift:nincs megadva
- Parkolási lehetőség:Teremgarázsban (fizetős)
- Fűtés:Gáz (cirko)
- Bútorozottság:Részben bútorozott
- Fényviszony:nincs megadva
- Tájolás:D
- Kilátás:nincs megadva
- Internet:nincs megadva
- Klíma:nincs megadva
- Akadálymentesített:nincs megadva
- Energiatanúsítvány:nincs megadva
- Villany:Van
- Víz:Van
- Gáz:Van
- Csatorna:Van
- Közös költség:28 000 Ft
- Rezsi:26 000 Ft
- Kapcsolatfelvétel

Hitel ajánlatok
Ingatlan hirdetés leírása
Kiváló beosztású, teraszos, világos lakás a XII. kerület zöldö...
Kiváló beosztású, teraszos, világos lakás a XII. kerület zöldövezetében – garázsvásárlási lehetőséggel
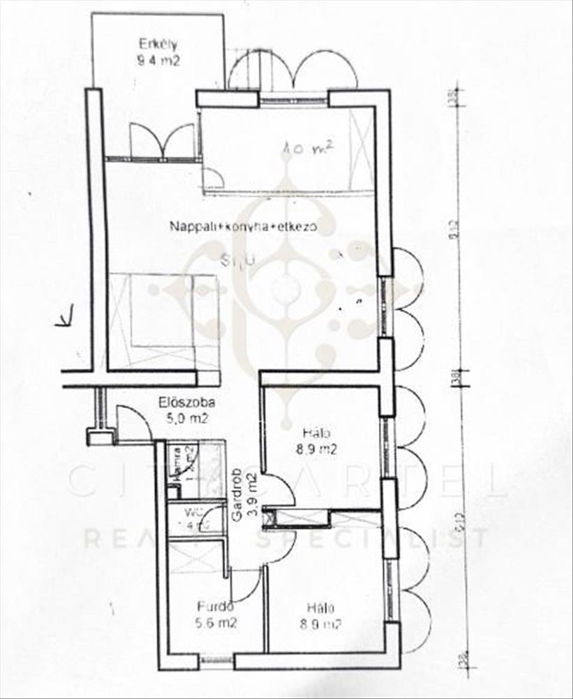
A XII. kerület egyik legkedveltebb, csendes zöldövezeti utcájában, a Galgóczy utcában kínálunk eladásra egy kivételes adottságokkal rendelkező ingatlant, amely összesen 104 nm -nyi hasznos alapterületet kínál.
A hirdetésben szereplő méret az alábbiakból tevődik össze:
~77 nm -es, nappali + 3 szobás lakás tulajdonjoga 9, 4 nm -es terasz (a lakással együtt bruttó ~82 nm )
kb. 22 Nm bruttó alapterületű tetőtéri helyiség, amely alapító okiratban rögzítetten a lakáshoz tartozik,
és jelenleg garzonként funkcionál
A társasház 1983-ban épült, jó állapotú, rendezett, kis lakásszámú épület, közös kerttel.
A lakás déli tájolású, 2, 8 méteres belmagassággal rendelkezik, folyamatosan karbantartott és részben felújított.
A lakás (~77 nm + 9, 4 nm terasz)
A tágas előszobából egy világos, teraszkapcsolatos amerikai konyhás nappali–étkező térbe érkezünk, amelyből leválasztással alakították ki a lakás harmadik hálószobáját. a fal gipszkartonból készült, így az eredeti, egybenyitott tér igény szerint könnyedén visszaállítható – ez a rugalmasság különösen értékessé teszi az otthont.
A másik két hálószoba a közlekedőből nyílik.
A mindennapi kényelmet tovább növeli a kamra, a különálló mellékhelyiség és a fürdőszoba praktikus elhelyezése. Az elrendezésnek köszönhetően minden funkcionális zóna jól elkülönül, mégis harmonikusan kapcsolódik a lakás élettereihez – átgondolt, élhető és otthonos.
Fűtés: cirkó
Tetőtéri helyiség (kb. 22 Nm bruttó)
A társasház tetőterében helyezkedik el, külön bejárattal, jelenleg garzonként használják, saját zuhanyzós fürdőszobával és WC-vel, konvektoros fűtéssel és panorámás kilátással.
Jelenleg bérlő lakja, aki szívesen maradna, így a felső rész azonnali bevételt biztosíthat.
Egyéb helyiségek, lehetőségek
4, 5 nm -es tároló a pincében
15 nm -es teremgarázs beálló, önálló helyrajzi számon, külön megvásárolható (nem kötelező)
Közös költség: 28. 000 Ft/hó, amely tartalmazza a vízdíjat is.
A tulajdonos a vételárat euróban szeretné megkapni, az ingatlan vételára 617. 468 Euró, a teremgarázs-beálló pedig 45. 570 Euró.
Ideális választás családi otthonként, de befektetésként is kiváló lehetőség, hiszen az ingatlan rendkívül értékálló és jól hasznosítható.
További információért vagy megtekintésért keressen bizalommal. Hitel.hu - Hasonlítsa össze a bankok lakáshitel ajánlatait
Tetszett ez az eladó Budapest XII. kerületi jó állapotú 4 szobás tégla lakás? Hívd fel a hirdetőt most, és tudj meg mindent erről az eladó tégla lakásról! Ha gondolod nézelődj tovább az eladó lakás Budapest XII. kerület oldal hirdetései között. Ennek az eladó lakásnak az ára 235508472 Ft és mivel az alapterülete 104 négyzetméter, ezért az átlagos négyzetméterára 2264505 HUF/m2.
Az eladó lakások menüpontban további hirdetések között is böngészhetsz. Az összes eladó budapesti lakás hirdetést tartalmazó oldalon tudsz böngészni. Ha van kedved, akkor böngészhetsz a Dr. Vincellér Zsuzsa összes hirdetése között, vagy akár a/az CITY CARTEL BUDAPEST ÉS AGGLOMERÁCIÓ összes hirdetése között is.

