Eladó újszerű állapotú lakás - Budapest XII. kerület
- INGYENES HIRDETÉS FELADÁS
Ingatlan adatai
- Eladó vagy kiadó:Eladó
- Település:Budapest XII. kerület
- Kategória:Lakás
- Alkategória:Tégla
- Alapterület:74 m2
- Csere is:Nem
- Hirdető:Cég
- Élő videón megtekinthető:Nem
- Szobaszám:2
- Állapot:Újszerű, kitűnő
- Hány szintes az ingatlan:Földszintes
- Komfortosság:nincs megadva
- Hányadik emeleti:1
- Erkély:nincs megadva
- Lift:Nincs
- Parkolási lehetőség:nincs megadva
- Fűtés:Gáz (cirko)
- Bútorozottság:nincs megadva
- Fényviszony:Napfényes
- Tájolás:D
- Kilátás:nincs megadva
- Internet:nincs megadva
- Klíma:nincs megadva
- Akadálymentesített:nincs megadva
- Energiatanúsítvány:nincs megadva
- Villany:Van
- Víz:Van
- Gáz:nincs megadva
- Csatorna:Van
- Kapcsolatfelvétel

Kónya Gábor
+36-(30)-532-4322
Mondd meg a hirdetőnek, hogy a megveszLAK-on találtad a hirdetést.
Referencia szám: LK064587
Hitel ajánlatok
Ingatlan hirdetés leírása
Eladó lakás, Budapest 12. ker.
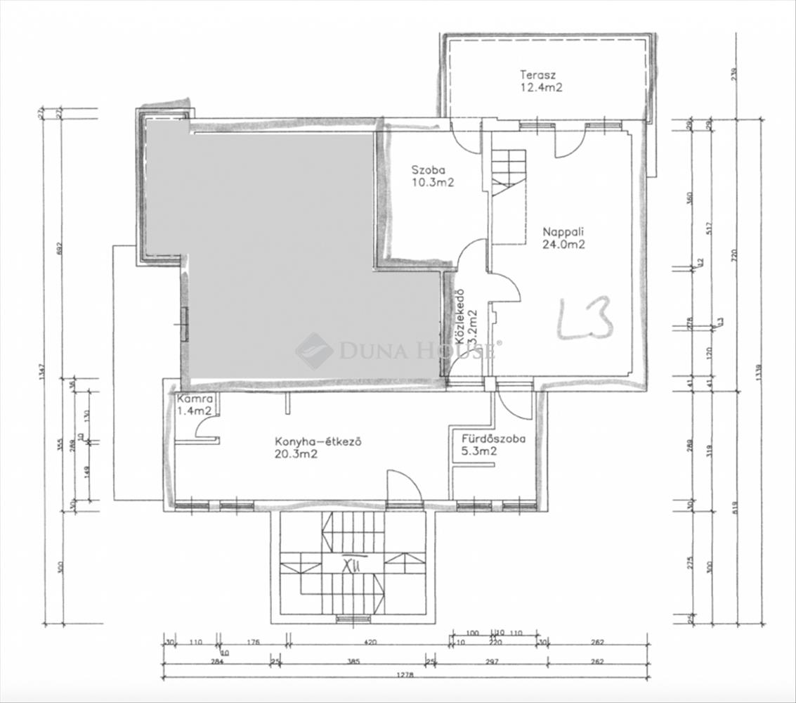
Napsütötte, tágas, teraszos otthon - KissvábhegyenBudapest egyik legkedveltebb, zöldövezeti részén, a XII. kerület Kissvábhegyén, az Ügyész utcában kínálunk megvételre egy különleges hangulatú, 80 m²-es, belső kétszintes lakást, 12 m²-es, napfényben fürdőző, kertre néző saját terasszal. a lakás egy elegáns, háromlakásos villaépület legfelső szintjén helyezkedik el, így teljes intimitást és nyugalmat biztosít tulajdonosának. a lakás különlegességei:- Lélegzetelállító terek és fényár a 4 méteres belmagasság, valamint a rusztikus, látszó gerendás nappali egyedi karaktert kölcsönöz az otthonnak. - Kivételes tárolókapacitás ízlésesen beépített szekrények és tágas gardrób biztosítanak rendszerezett életteret. - Csendes, zöld környezet, mégis kiváló közlekedés a belváros mindössze percek alatt elérhető. (Busz: 21, 39, 102, 210, 212 Villamos: 17, 59, 61 m2 metró: 10 perc séta)A lakás elrendezése:- elegáns előszoba- konyha-étkező + kamra- tágas nappali rusztikus látszógerendákkal, közvetlen teraszkapcsolattal- kényelmes méretű hálószoba, szintén kijárattal a teraszra- stílusos fürdőszoba zuhanykabinnal és WC-el- a galériaszinten egy nyitott, világos dolgozó- vagy vendégszoba, beépített gardrób és extra tárolófelületekA lakás a villa felső szintjén, kb. Másfél emelet magasságban található. a hozzá vezető zárható, kizárólagos használatú lépcsőház további biztonságot és extra tárolási lehetőséget kínál. a lakás teljes körű felújításon esett át, és azóta is gondosan karbantartott. Cirkófűtés és klímaberendezés gondoskodik az évszakokhoz illő kényelemről. Külső adottságok:A villa egy 1070 m²-es, ősfás, parkosított telken helyezkedik el. a lakáshoz saját kerthasználat tartozik, ahol homokozó-játszórész, grillterasz, pihenőkert vagy veteményes is kialakítható. a kényelmet saját udvari gépkocsibeálló és külön külső tároló is szolgálja, melyek árát a vételár tartalmazza! ! ! Ez az ingatlan tökéletes választás azoknak, akik egy napfényes, hangulatos, otthonos lakást keresnek a XII. kerület egyik legjobb részén, ahol a zöld környezet és a városi kényelem találkozik. Ha Ön is egy egyedi atmoszférájú, magas minőségű lakásra vágyik Budapest egyik legkívánatosabb részén, keressen bizalommal a részletekért és a megtekintés egyeztetéséhez!
149900000 Ft
Referencia szám: lk064587 Hitel.hu - Hasonlítsa össze a bankok lakáshitel ajánlatait

