Eladó újszerű állapotú lakás - Budapest XII. kerület
- INGYENES HIRDETÉS FELADÁS
Ingatlan adatai
- Eladó vagy kiadó:Eladó
- Település:Budapest XII. kerület
- Kategória:Lakás
- Alkategória:Tégla
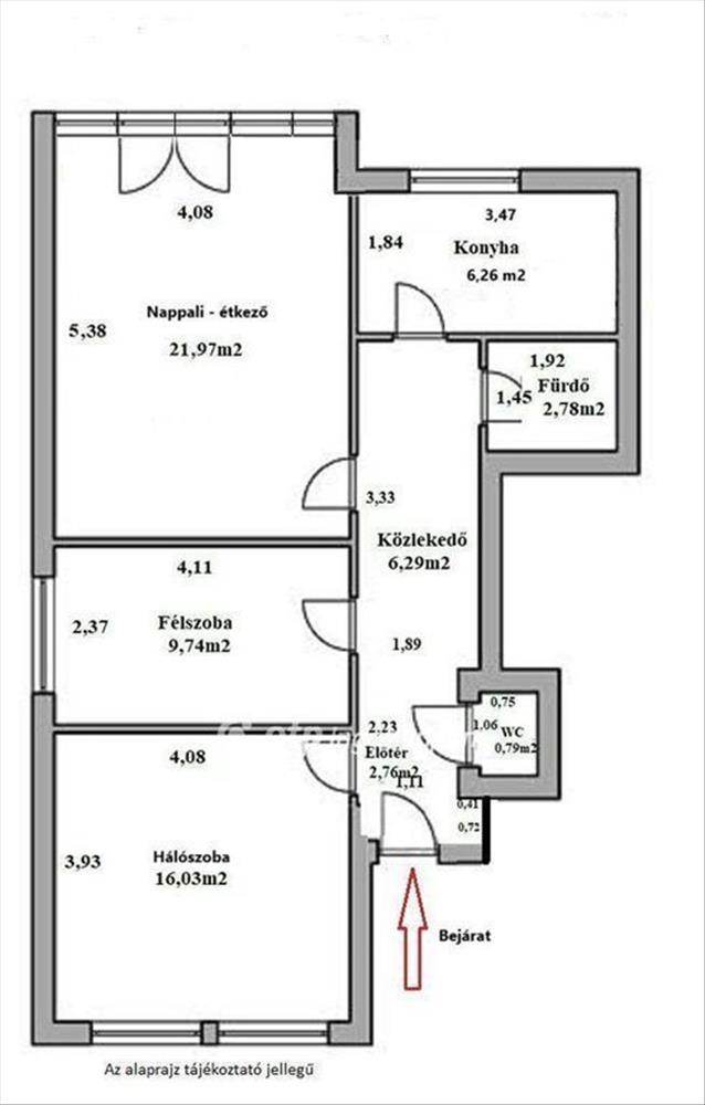
- Alapterület:65 m2
- Csere is:Nem
- Hirdető:Cég
- Élő videón megtekinthető:Nem
- Szobaszám:2 + 1 fél
- Állapot:Újszerű, kitűnő
- Hány szintes az ingatlan:Földszintes
- Komfortosság:nincs megadva
- Hányadik emeleti:Földszint
- Erkély:nincs megadva
- Lift:Nincs
- Parkolási lehetőség:nincs megadva
- Fűtés:Elektromos
- Bútorozottság:nincs megadva
- Fényviszony:Napfényes
- Tájolás:nincs megadva
- Kilátás:nincs megadva
- Internet:nincs megadva
- Klíma:nincs megadva
- Akadálymentesített:nincs megadva
- Energiatanúsítvány:nincs megadva
- Villany:Van
- Víz:Van
- Gáz:nincs megadva
- Csatorna:Van
- Közös költség:20 000 Ft
- Kapcsolatfelvétel

Hitel ajánlatok
Ingatlan hirdetés leírása
Eladó Lakás, Budapest 12. ker.
Prémium otthon zöldövezetben- felújítva, bútorozva, azonnal költözhető!
Köszönöm, hogy érdeklődik hirdetésem iránt!
A XII. kerület egyik legkedveltebb részén, Orbánhegyen kínálom eladásra ezt a meseszép, teljeskörűen felújított és igényesen berendezett,
nappali-étkezős plusz 2 hálószobás lakást.
Az ingatlan az utca felől magasföldszinti, míg az udvar felől első emeleti, így világos, mégis nyugodt. Zöldövezeti környezetben található, ugyanakkor kiváló közlekedéssel rendelkezik:
pár perc alatt elérhető a Déli pályaudvar, mom Park, Széll Kálmán tér, valamint nemzetközi iskolák, követségek, óvodák és számos szórakozási lehetőség.
A tulajdonos a loggiát beépítette, ezzel növelve a nappali-étkező méretét, és padlótól plafonig érő fix ablakokkal, valamint dupla szárnyú erkélyajtóval nyitotta meg a teret a panoráma és a zárt, parkosított, játszóteres udvar irányába.
Helyiségek és felszereltség:
Nappali-étkező: ágyazható, ágyneműtartós kanapé, étkezőasztal székekkel, fotel, beépített szekrények
Félszoba: íróasztal és gardrób- ideális dolgozószobának vagy gyerekszobának
Hálószoba: ágyneműtartós franciaágy, éjjeliszekrények, gardrób és komód
Fürdőszoba: kádas, mosó-szárítógéppel
Konyha: beépített bútor, kerámia főzőlap, sütő, hűtő, mosogatógép, kapszulás kávéfőző
Előszoba: beépített szekrény kabátoknak, cipőknek
-Műszaki tartalom:
Elektromos, távirányítós redőnyök minden helyiségben
Vízálló laminált parketta
Nyílászárók és vezetékek cserélve
Fűtés-hűtés klímával, H tarifa kiépítve
1011 m2-es, zárt udvar játszótérrel
Ingyenes utcai parkolás
Az ingatlan ideális pároknak, valamint gyermekes családok számára is, akik nyugodt, zöld környezetben szeretnének élni, mégis közel a város vérkeringéséhez.
Hívjon bizalommal, és örömmel megmutatom!
Referencia szám: m324177 Hitel.hu - Hasonlítsa össze a bankok lakáshitel ajánlatait
Tetszett ez az eladó Budapest XII. kerületi újszerű állapotú 2 egész és 1 fél szobás tégla lakás? Hívd fel a hirdetőt most, és tudj meg mindent erről az eladó tégla lakásról! Ha gondolod nézelődj tovább az eladó lakás Budapest XII. kerület oldal hirdetései között. Ennek az eladó lakásnak az ára 129900000 Ft és mivel az alapterülete 65 négyzetméter, ezért az átlagos négyzetméterára 1998462 HUF/m2.
Az eladó lakások menüpontban további hirdetések között is böngészhetsz. Az összes eladó budapesti lakás hirdetést tartalmazó oldalon tudsz böngészni. Ha van kedved, akkor böngészhetsz a Papp-Horváth Katalin összes hirdetése között, vagy akár a/az OTPip Budapest I. kerület Krisztina körút 32 - OTP Ingatlanpont Iroda összes hirdetése között is.

