Eladó újszerű állapotú lakás - Budapest XIII. kerület
- INGYENES HIRDETÉS FELADÁS
Ingatlan adatai
- Feladva:46 napja a megveszLAK-on
- Eladó vagy kiadó:Eladó
- Település:Budapest XIII. kerület
- Kategória:Lakás
- Alkategória:Tégla
- Alapterület:81 m2
- Csere is:Nem
- Hirdető:Cég
- Élő videón megtekinthető:Nem
- Szobaszám:4
- Állapot:Újszerű, kitűnő
- Hány szintes az ingatlan:Földszintes
- Komfortosság:nincs megadva
- Hányadik emeleti:2
- Erkély:nincs megadva
- Lift:Van
- Parkolási lehetőség:nincs megadva
- Fűtés:Távfűtés egyedi mérővel
- Bútorozottság:Bútorozott
- Fényviszony:Napfényes
- Tájolás:D
- Kilátás:nincs megadva
- Internet:nincs megadva
- Klíma:Van
- Akadálymentesített:nincs megadva
- Energiatanúsítvány:nincs megadva
- Villany:Van
- Víz:Van
- Gáz:nincs megadva
- Csatorna:Van
- Kapcsolatfelvétel

Herczeg-Bíró Edit
+36-(30)-949-2772
Mondd meg a hirdetőnek, hogy a megveszLAK-on találtad a hirdetést.
Referencia szám: LK032682
Hitel ajánlatok
Ingatlan hirdetés leírása
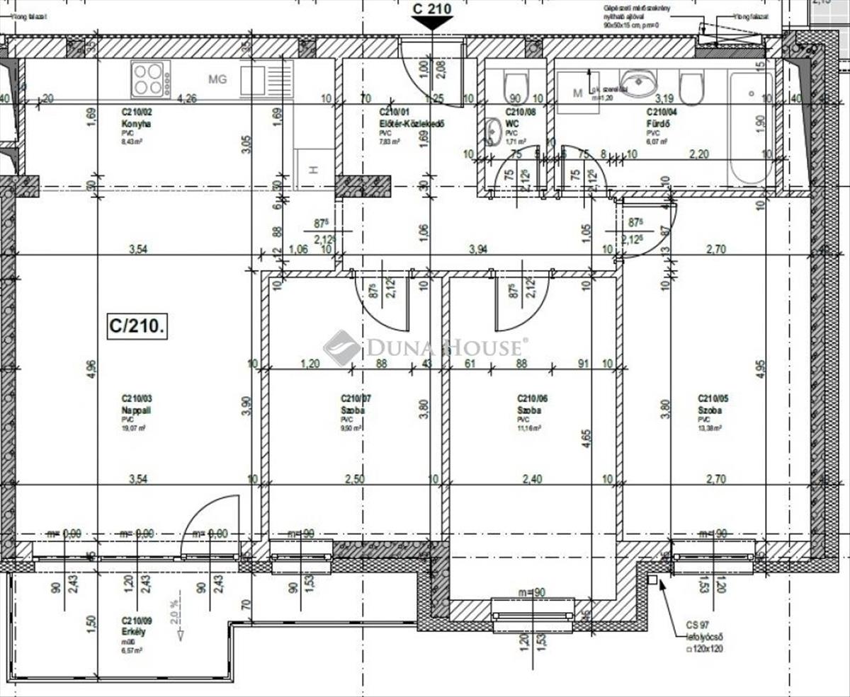
MODERN CSALÁDI ÉLETTÉR 4 szobával
Modern családi élettér – Napfényes hatékonyság és bérbeadási biztonság Angyalföldön
Budapest XIII. kerületének egyik legkedveltebb, 2021-ben épült modern lakóparkjában kínálunk megvételre egy 77 m²-es, újszerű állapotú, 2. emeleti lakást. Az ingatlan déli tájolásának és tágas tereinek köszönhetően a modern városi családok és a tudatos befektetők számára is kiemelkedő lehetőséget képvisel.
Az ingatlan karakterisztikája:
A belső terek tervezésekor a családi harmónia és a privát szféra egyensúlya volt az elsődleges szempont. Az amerikai konyhás nappali és az étkező tágas közösségi teret alkot, melyet a 7 m²-es, napfényes erkély tesz teljessé. a három különnyíló hálószoba ebben a méretkategóriában ritka és értékes adottság, amely maximális funkcionalitást biztosít. Az ingatlan belső tételét képezi a 3, 5 millió Ft értékű, teljes körű modern bútorzat és gépesítés, amely lehetővé teszi a várakozási idő nélküli beköltözést.
Főbb jellemzők:
Optimális tájolás: a déli fekvésnek köszönhetően a lakás egész nap természetes fényben úszik, ami nemcsak az életminőséget javítja, hanem a téli fűtési költségeket is kedvezően befolyásolja.
Kiemelkedő hasznosíthatóság: a három hálószobás elosztás a 2026-os piacon a legkeresettebb kategória a családos bérlők és vásárlók körében, így biztosítva az ingatlan hosszú távú likviditását.
Kortárs technológia: a 2021-es műszaki tartalom, a modern hőszigetelés és a liftes társasház alacsony fenntartási költséget és karbantartásmentes jövőt ígér.
Kinek ajánlott?
Elsősorban olyan családoknak, akik nem akarnak kompromisszumot kötni a szobaszám rovására, és értékelik a modern, biztonságos lakóparki környezetet. Befektetők számára a teljes bútorzat és a keresett elosztás azonnali, prémium szintű bérbeadhatóságot és stabil cash-flow-t garantál a kerület egyik legdinamikusabb részén.
A tudatos portfólióépítés alapja a jó eloszthatóság és a fenntartható minőség – ez az ingatlan mindkét feltételnek maradéktalanul megfelel.
Irányár: 120. 750. 000 Ft + 3. 500. 000 Ft (berendezési csomag)
További információért és a személyes megtekintésért keressen bizalommal a hét bármely napján!
MODERN family living – Sun-Drenched Efficiency and Rental Security in Angyalföld
We offer for sale a 77 sqm, move-in-ready second-floor apartment in one of the most popular modern residential complexes of Budapests 13th District, built in 2021. Thanks to its southern orientation and spacious interiors, this property represents an outstanding opportunity for both modern urban families and conscious investors.
Property Characteristics:
The primary focus during the design of the interiors was the balance between family harmony and private sphere. The American-style kitchen and dining area form a spacious social hub, complemented by a 7 sqm, sun-drenched balcony. The three separate bedrooms are a rare and valuable feature in this size category, ensuring maximum functionality. a key element of the propertys value is the comprehensive, modern furniture and appliance package worth 3. 5 Million huf, allowing for immediate occupancy without any waiting period.
Key Features:
Optimal Orientation: Due to its southern exposure, the apartment is bathed in natural light throughout the day, which not only improves quality of life but also favorably impacts heating costs during winter.
Outstanding Utility: The three-bedroom layout is the most sought-after category for families and professional tenants in the 2026 market, ensuring the long-term liquidity of the property.
Contemporary Technology: The 2021 technical standards, modern insulation, and the building equipped with an elevator promise low maintenance costs and a worry-free future.
Recommended For:
Primarily for families who refuse to compromise on the number of rooms and value a modern, secure residential environm ent. For investors, the full furnishing and the highly requested layout guarantee immediate, premium-level rental potential and stable cash flow in one of the citys most dynamic districts.
The foundation of conscious portfolio building lies in excellent layout and sustainable quality – this property fully meets both criteria.
Asking Price: 120, 750, 000 huf + 3, 500, 000 huf (furniture package)
Please feel free to contact me any day of the week for further information or a personal viewing!
Referencia szám: lk032682 Hitel.hu - Hasonlítsa össze a bankok lakáshitel ajánlatait
Tetszett ez az eladó Budapest XIII. kerületi újszerű állapotú 4 szobás tégla lakás? Hívd fel a hirdetőt most, és tudj meg mindent erről az eladó tégla lakásról! Ha gondolod nézelődj tovább az eladó lakás Budapest XIII. kerület oldal hirdetései között. Ennek az eladó lakásnak az ára 120750000 Ft és mivel az alapterülete 81 négyzetméter, ezért az átlagos négyzetméterára 1490741 HUF/m2.
Az eladó lakások menüpontban további hirdetések között is böngészhetsz. Az összes eladó budapesti lakás hirdetést tartalmazó oldalon tudsz böngészni. Ha van kedved, akkor böngészhetsz a Herczeg-Bíró Edit összes hirdetése között, vagy akár a/az Duna House Ferenc tér összes hirdetése között is.

