Eladó jó állapotú lakás - Budapest XIII. kerület
- INGYENES HIRDETÉS FELADÁS
Ingatlan adatai
- Eladó vagy kiadó:Eladó
- Település:Budapest XIII. kerület
- Kategória:Lakás
- Alkategória:Tégla
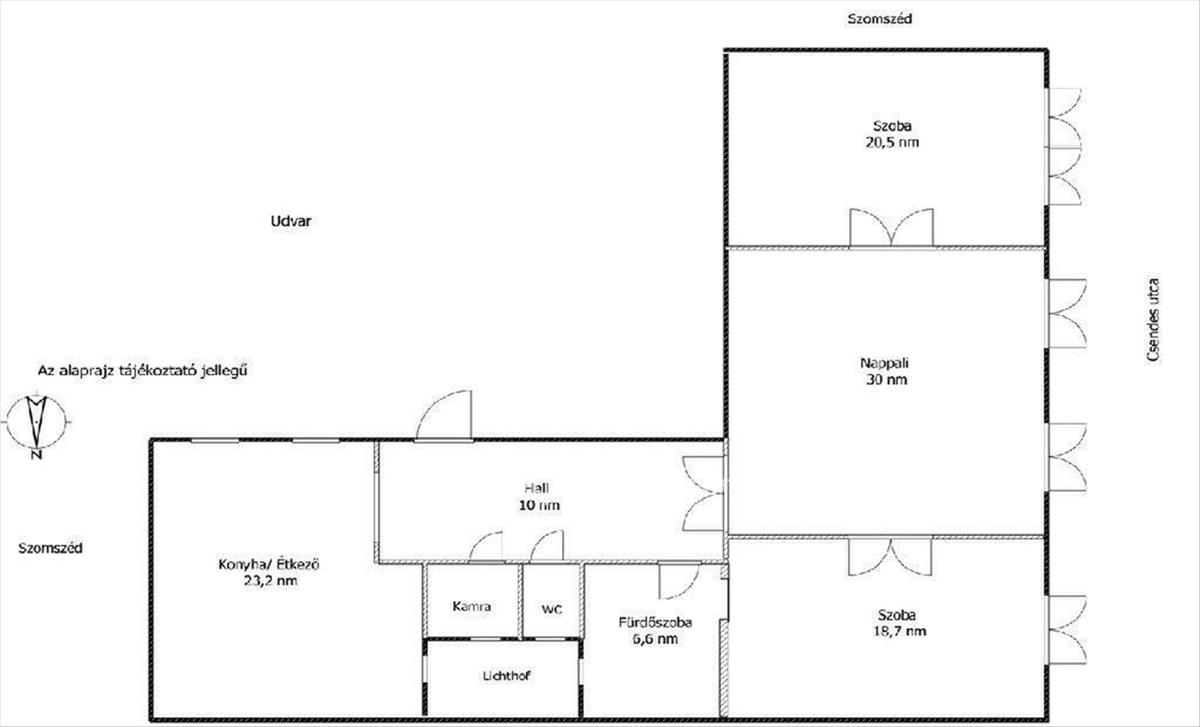
- Alapterület:116 m2
- Csere is:Nem
- Hirdető:Cég
- Élő videón megtekinthető:Nem
- Szobaszám:3
- Állapot:Jó állapotú
- Hány szintes az ingatlan:Földszintes
- Komfortosság:nincs megadva
- Hányadik emeleti:3
- Erkély:nincs megadva
- Lift:Nincs
- Parkolási lehetőség:Utcán
- Fűtés:Gáz (cirko)
- Bútorozottság:nincs megadva
- Fényviszony:Jó
- Tájolás:DNY
- Kilátás:nincs megadva
- Internet:nincs megadva
- Klíma:nincs megadva
- Akadálymentesített:nincs megadva
- Energiatanúsítvány:nincs megadva
- Villany:Van
- Víz:Van
- Gáz:nincs megadva
- Csatorna:Van
- Közös költség:19 700 Ft
- Kapcsolatfelvétel

Hitel ajánlatok
Ingatlan hirdetés leírása
Eladó Lakás, Budapest 13. ker.
***Budapest szívében, újlipótvárosban, mégis csendes utcában eladó egy 116 nm -es, világos, jó állapotú polgári lakás kivételes elhelyezkedéssel és átalakítási lehetőségekkel! ***
Budapest központjában, a westend city center és a nyugati pályaudvar közvetlen szomszédságában, ugyanakkor egy kellemesen csendes mellékutcában kínáljuk megvételre ezt a tágas, napfényes, hall + 3 szobás polgári lakást.
Jelenleg 3 szoba + nagy, étkezővel egybenyitott konyha elrendezésű, jó állapotú ingatlan.
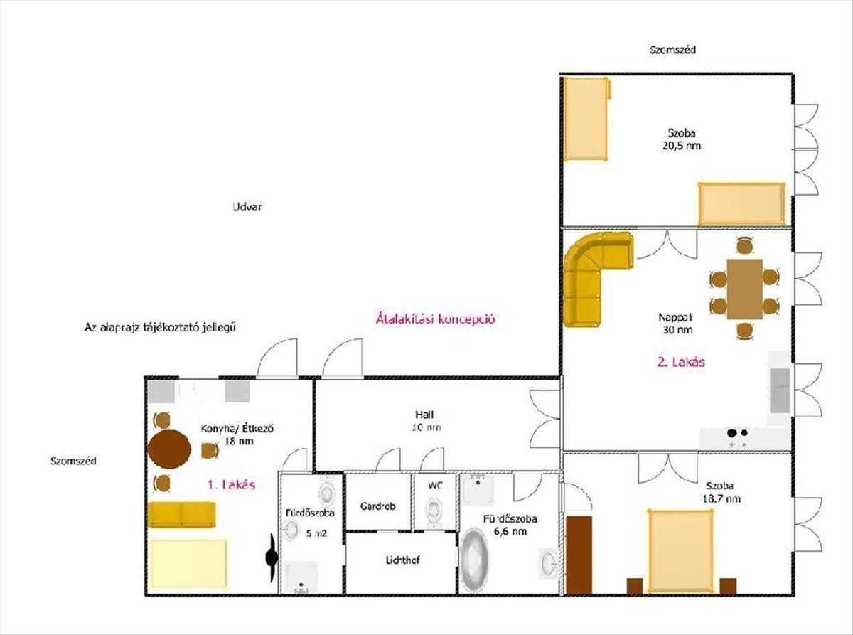
A lakás igazi ritkaság a piacon: méretéből adódóan könnyedén 2, akár 3 különálló lakásra is osztható, és a kialakítás lehetővé teszi egy új, külön bejárat megnyitását is ez komoly értéknövelő és befektetési lehetőség.
Az SzMSz nem tiltja a rövid távú lakáskiadást sem.
Műszaki háttér és állapot: a lakásban és a társasházban megtörtént a teljes cső- és elektromos hálózat cseréje; folyamatosan karbantartott, kulturált ház; a tető felújítása nemrég lezárult; lift jelenleg nincs; a lakáshoz saját, száraz pincei tároló tartozik.
A lakás 1/1 tulajdonosé, per- és tehermentes, néhány hónapon belül rugalmasan költözhető.
A különleges elhelyezkedés és a nagy alapterület miatt tökéletes választás kiadásra, befektetésnek vagy annak a családnak, aki a belváros pezsgése mellett szeretné élvezni egy klasszikus polgári otthon eleganciáját és a mellékutca nyugalmát.
A környéken az ehhez hasonló, nagy alapterületű polgári lakások értéke folyamatosan emelkedik, így hosszú távon is biztos befektetést jelent.
Ha ingatlan vásárlásával egy értékálló befektetést is szeretne egyben, akkor ez egy remek lehetőség az ön számára.
Az OTP Ingatlanpont, mint egyetlen közvetlen banki hátterű ingatlanközvetítő társaság teljes körű ügyintézéssel és kedvezményes pénzügyi konstrukciókkal áll ügyfelei rendelkezésére!
VIP-szolgáltatást nyújtunk az OTP-hiteltermékek ügyintézésében.
Jogi és pénzügyi segítséget nyújtanak szakértőink, hogy az adásvétel folyamata gördülékeny legyen.
Ha felkeltette érdeklődését az ingatlan, kérem, hívjon bizalommal akar hétvégén is! Hitel.hu - Hasonlítsa össze a bankok lakáshitel ajánlatait
Tetszett ez az eladó Budapest XIII. kerületi jó állapotú 3 szobás tégla lakás? Hívd fel a hirdetőt most, és tudj meg mindent erről az eladó tégla lakásról! Ha gondolod nézelődj tovább az eladó lakás Budapest XIII. kerület oldal hirdetései között. Ennek az eladó lakásnak az ára 105000000 Ft és mivel az alapterülete 116 négyzetméter, ezért az átlagos négyzetméterára 905172 HUF/m2.
Az eladó lakások menüpontban további hirdetések között is böngészhetsz. Az összes eladó budapesti lakás hirdetést tartalmazó oldalon tudsz böngészni. Ha van kedved, akkor böngészhetsz a Kiss Ildikó Mária összes hirdetése között, vagy akár a/az OTPip Budapest II. kerület Szépvölgyi út 2 - OTP Ingatlanpont Iroda összes hirdetése között is.

