Eladó újszerű állapotú lakás - Budapest XIII. kerület
- INGYENES HIRDETÉS FELADÁS
Ingatlan adatai
- Eladó vagy kiadó:Eladó
- Település:Budapest XIII. kerület
- Kategória:Lakás
- Alkategória:Tégla
- Alapterület:81 m2
- Csere is:Nem
- Hirdető:Cég
- Élő videón megtekinthető:Nem
- Szobaszám:3
- Állapot:Újszerű, kitűnő
- Hány szintes az ingatlan:Földszintes
- Komfortosság:nincs megadva
- Hányadik emeleti:6
- Erkély:nincs megadva
- Lift:Van
- Parkolási lehetőség:nincs megadva
- Fűtés:Házközponti egyedi mérővel
- Bútorozottság:nincs megadva
- Fényviszony:Napfényes
- Tájolás:ÉK
- Kilátás:nincs megadva
- Internet:nincs megadva
- Klíma:nincs megadva
- Akadálymentesített:nincs megadva
- Energiatanúsítvány:nincs megadva
- Villany:Van
- Víz:Van
- Gáz:nincs megadva
- Csatorna:Van
- Kapcsolatfelvétel

Bertóti Mateusz István
+36-(20)-430-9632
Mondd meg a hirdetőnek, hogy a megveszLAK-on találtad a hirdetést.
Referencia szám: LK084390
Hitel ajánlatok
Ingatlan hirdetés leírása
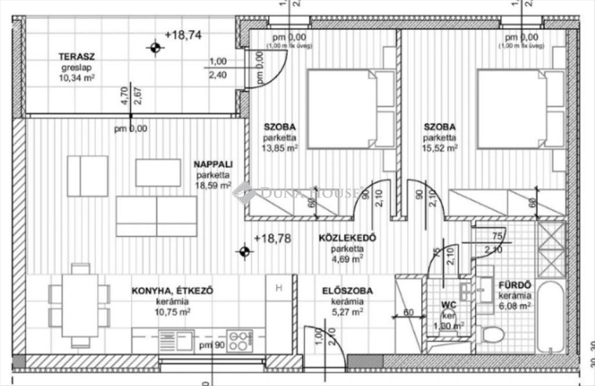
Eladó lakás, Budapest 13. ker.
Világos, tágas lakás a Szegedi úton garázs és tároló bérelhetőEladó egy 76 négyzetméteres lakás + 10 négyzetméteres loggiával a XIII. kerületi Szegedi úton, egy 2018-ban épült, 7 emeletes, modern társasházban. Az ingatlan ideális választás pároknak, egyedülállóknak vagy befektetőknek, akik értékelik a kényelmet, a minőségi kivitelezést és a kiváló elhelyezkedést. Főbb jellemzők:- Tágas nappali nagy ablakokkal, természetes fényben úszó tér- Külön hálószoba beépített szekrénnyel- Konyha teljes körűen gépesített; a beépített Bosch készülékek a vételár részét képezik- a nappaliban egyedi gyártású, beépített könyvespolc rendszer biztosít extra tárolóhelyet és stílust- a komfortot klímaberendezés növeli- Remek kilátás, csendes, zöld belső udvarra néző ablakok- 10 m² loggia, ideális reggelihez, pihenéshez vagy növényeknek
Kiváló lakókomfort:- Árnyékolás: a hálószobákban hagyományos redőny, a nappaliban elektromos sötétítő- Minden nyitható ablakon szúnyogháló található- Az udvari fekvés és a jó kereszt-szellőzés révén a legmelegebb nyári napokon is könnyen biztosítható a friss levegő
Költségek:- Közös költség: 28 800 Ft/hó-
Fűtés: házközponti egyedi mérővel, télen átlagosan 8 000 Ft/hó
Extra lehetőségek:A lakáshoz a -1 szinten garázsbeálló és külön tárolóhelyiség bérelhető, így biztosított a kényelmes parkolás és a praktikus tárolás.
Berendezés: a lakás bútorozata megállapodás tárgyát képezi, így rugalmasan alakítható az új tulajdonos igényei szerint.
Elhelyezkedés: a Szegedi út kiváló infrastruktúrával rendelkezik: közelben üzletek, éttermek, tömegközlekedési csomópontok, valamint zöld parkok. a környék biztonságos és élhető, ideális városi otthon.
Megtekintés:A lakás előre egyeztetett időpontban megtekinthető.
Hívjanak bizalommal további információért vagy időpont egyeztetésért!
Referencia szám: lk084390-ml Hitel.hu - Hasonlítsa össze a bankok lakáshitel ajánlatait

