Eladó jó állapotú lakás Budapest XIII. kerület
| Kedvencbe | Megosztás | Árfigyelő |
| FIX 3% lakáshitelre megvehető | ||
| 79 900 000 HUF | ||
Ingatlan adatai
- Eladó vagy kiadó:Eladó
- Település:Budapest XIII. kerület
- Kategória:Lakás
- Alkategória:Tégla
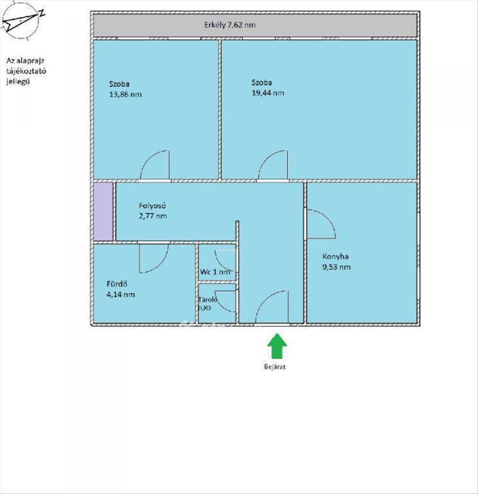
- Alapterület:60 m2
- Csere is:Nem
- Hirdető:Cég
- Élő videón megtekinthető:Nem
- Szobaszám:2
- Állapot:Jó állapotú
- Hány szintes az ingatlan:Földszintes
- Komfortosság:nincs megadva
- Hányadik emeleti:2
- Erkély:Van
- Lift:Nincs
- Parkolási lehetőség:Udvaron
- Fűtés:Gáz (cirko)
- Bútorozottság:nincs megadva
- Fényviszony:Napfényes
- Tájolás:NY
- Kilátás:nincs megadva
- Internet:nincs megadva
- Akadálymentesített:nincs megadva
- Energiatanúsítvány:nincs megadva
- Villany:Van
- Víz:Van
- Gáz:nincs megadva
- Csatorna:Van
- Közös költség:25 000 Ft
- Üzenetküldés
- Hívás

Referencia szám: M317680

Hitel ajánlat
Ingatlan hirdetés leírása
Eladó Lakás, Budapest 13. ker.
See english description BELOW! ! !Eladó lakás a XIII. kerületben – nagy erkély, zárt lakópark, parkoló az árban!
Biztonságos, zárt lakóparkban kínálok megvételre egy 60 nm-es, világos, frissen festett, azonnal költözhető lakást, nagy erkéllyel és saját felszíni kocsibeállóval.
A bejutás autóval és gyalog is kényelmes, az elektromos kapu garantálja a biztonságot.
Főbb jellemzők
60 nm, jelenleg 2 szoba, könnyen 3 szobássá alakítható
tágas erkély – reggeli kávéhoz, esti kikapcsolódáshoz
új sarokkád – igazi otthoni wellness
műanyag nyílászárók, nagy ablakok, jó hő- és hangszigetelés
frissen felújított fa parketta – elegáns, karakteres tér
2019-ben cserélt kondenzációs gázkazán – modern és energiatakarékos
külön, zárt saját tároló
felszíni kocsibeálló az árban
tehermentes, 1/1 tulajdon, azonnal költözhető
A környék rendezett, csendes, jó közlekedéssel és minden fontos szolgáltatással néhány perces távolságban.
Hívjon bizalommal, a hét minden napján
Ügyfeleink számára teljes körű banki és jogi háttér biztosított.
>For sale in District 13 – large balcony, gated residential park, parking included!
Located in a secure, well-maintained gated community, this bright, freshly painted 60 sqm apartment is immediately available and move-in ready.
The entrance is easily accessible on foot and by car, protected by an electric gate.
Key features
60 sqm, currently 2 rooms, easily convertible into 3 rooms
spacious balcony – perfect for morning coffee or evening drinks
brand-new corner bathtub – home wellness experience
plastic windows, large openings – good insulation
refurbished solid wood parquet flooring – elegant and timeless
condensing gas boiler replaced in 2019 – efficient and modern
private lockable storage unit
surface parking space included in the price
free of encumbrances, 1/1 ownership – immediately available
A well-connected, quiet area with shops, services and transport options nearby.
Full legal and financial assistance available.
Referencia szám: m317680-ml FIX 3% lakáshitelre megvehető

