Eladó újszerű állapotú lakás - Budapest XIII. kerület
- INGYENES HIRDETÉS FELADÁS
Ingatlan adatai
- Eladó vagy kiadó:Eladó
- Település:Budapest XIII. kerület
- Kategória:Lakás
- Alkategória:Tégla
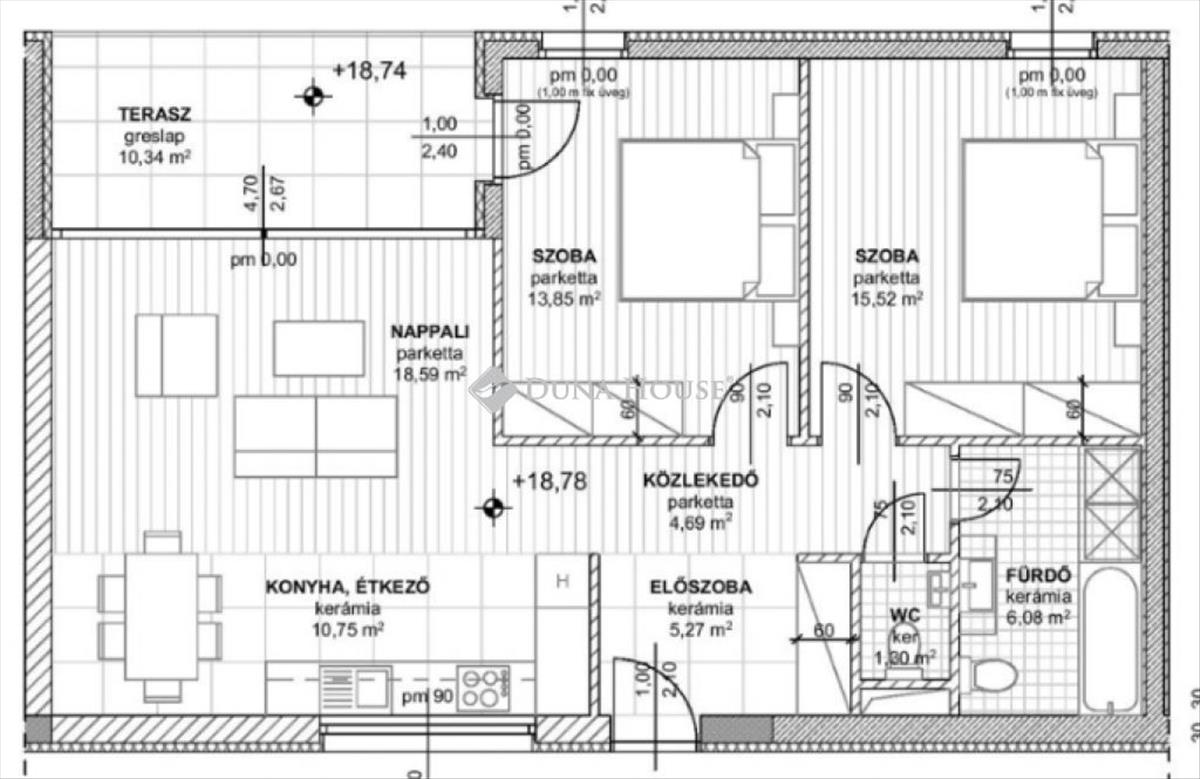
- Alapterület:81 m2
- Csere is:Nem
- Hirdető:Cég
- Élő videón megtekinthető:Nem
- Szobaszám:3
- Állapot:Újszerű, kitűnő
- Hány szintes az ingatlan:Földszintes
- Komfortosság:nincs megadva
- Hányadik emeleti:6
- Erkély:nincs megadva
- Lift:Van
- Parkolási lehetőség:nincs megadva
- Fűtés:Házközponti egyedi mérővel
- Bútorozottság:nincs megadva
- Fényviszony:Napfényes
- Tájolás:ÉK
- Kilátás:nincs megadva
- Internet:nincs megadva
- Klíma:nincs megadva
- Akadálymentesített:nincs megadva
- Energiatanúsítvány:nincs megadva
- Villany:Van
- Víz:Van
- Gáz:nincs megadva
- Csatorna:Van
- Kapcsolatfelvétel

Mosonyi Krisztián
+36-(30)-721-9002
Mondd meg a hirdetőnek, hogy a megveszLAK-on találtad a hirdetést.
Referencia szám: LK084390
Hitel ajánlatok
Ingatlan hirdetés leírása
Eladó lakás, Budapest 13. ker.
Világos, tágas lakás a Szegedi úton garázs és tároló bérelhetőEladó egy 76 négyzetméteres lakás + 10 négyzetméteres loggiával a XIII. kerületi Szegedi úton, egy 2018-ban épült, 7 emeletes, modern társasházban. Az ingatlan ideális választás pároknak, egyedülállóknak vagy befektetőknek, akik értékelik a kényelmet, a minőségi kivitelezést és a kiváló elhelyezkedést. Főbb jellemzők:- Tágas nappali nagy ablakokkal, természetes fényben úszó tér- Külön hálószoba beépített szekrénnyel- Konyha teljes körűen gépesített; a beépített Bosch készülékek a vételár részét képezik- a nappaliban egyedi gyártású, beépített könyvespolc rendszer biztosít extra tárolóhelyet és stílust- a komfortot klímaberendezés növeli- Remek kilátás, csendes, zöld belső udvarra néző ablakok- 10 m² loggia, ideális reggelihez, pihenéshez vagy növényeknek Kiváló lakókomfort:- Árnyékolás: a hálószobákban hagyományos redőny, a nappaliban elektromos sötétítő- Minden nyitható ablakon szúnyogháló található- Az udvari fekvés és a jó kereszt-szellőzés révén a legmelegebb nyári napokon is könnyen biztosítható a friss levegő Költségek:- Közös költség: 28 800 Ft/hó- Fűtés: házközponti egyedi mérővel, télen átlagosan 8 000 Ft/hó Extra lehetőségek:A lakáshoz a -1 szinten garázsbeálló és külön tárolóhelyiség bérelhető, így biztosított a kényelmes parkolás és a praktikus tárolás. Berendezés:A lakás bútorozata megállapodás tárgyát képezi, így rugalmasan alakítható az új tulajdonos igényei szerint. Elhelyezkedés:A Szegedi út kiváló infrastruktúrával rendelkezik: közelben üzletek, éttermek, tömegközlekedési csomópontok, valamint zöld parkok. a környék biztonságos és élhető, ideális városi otthon. Megtekintés:A lakás előre egyeztetett időpontban megtekinthető. Hívjanak bizalommal további információért vagy időpont egyeztetésért!
További ajánlataim: https://mosonyi-krisztian. Dh. Hu/
Referencia szám: lk084390-ml Hitel.hu - Hasonlítsa össze a bankok lakáshitel ajánlatait
Tetszett ez az eladó Budapest XIII. kerületi újszerű állapotú 3 szobás tégla lakás? Hívd fel a hirdetőt most, és tudj meg mindent erről az eladó tégla lakásról! Ha gondolod nézelődj tovább az eladó lakás Budapest XIII. kerület oldal hirdetései között. Ennek az eladó lakásnak az ára 160000000 Ft és mivel az alapterülete 81 négyzetméter, ezért az átlagos négyzetméterára 1975309 HUF/m2.
Az eladó lakások menüpontban további hirdetések között is böngészhetsz. Az összes eladó budapesti lakás hirdetést tartalmazó oldalon tudsz böngészni. Ha van kedved, akkor böngészhetsz a Mosonyi Krisztián összes hirdetése között, vagy akár a/az Duna House Kiszugló összes hirdetése között is.

