Eladó jó állapotú lakás - Budapest XIII. kerület
- INGYENES HIRDETÉS FELADÁS
Ingatlan adatai
- Eladó vagy kiadó:Eladó
- Település:Budapest XIII. kerület
- Kategória:Lakás
- Alkategória:Tégla
- Alapterület:62 m2
- Csere is:Nem
- Hirdető:Cég
- Élő videón megtekinthető:Nem
- Szobaszám:3
- Állapot:Jó állapotú
- Hány szintes az ingatlan:Földszintes
- Komfortosság:nincs megadva
- Hányadik emeleti:1
- Erkély:nincs megadva
- Lift:Van
- Parkolási lehetőség:nincs megadva
- Fűtés:Gáz (cirko)
- Bútorozottság:nincs megadva
- Fényviszony:Napfényes
- Tájolás:DK
- Kilátás:nincs megadva
- Internet:nincs megadva
- Klíma:nincs megadva
- Akadálymentesített:nincs megadva
- Energiatanúsítvány:nincs megadva
- Villany:Van
- Víz:Van
- Gáz:nincs megadva
- Csatorna:Van
- Kapcsolatfelvétel

Balogh Nóra
+36-(30)-236-0212
Mondd meg a hirdetőnek, hogy a megveszLAK-on találtad a hirdetést.
Referencia szám: LK030427
Hitel ajánlatok
Ingatlan hirdetés leírása
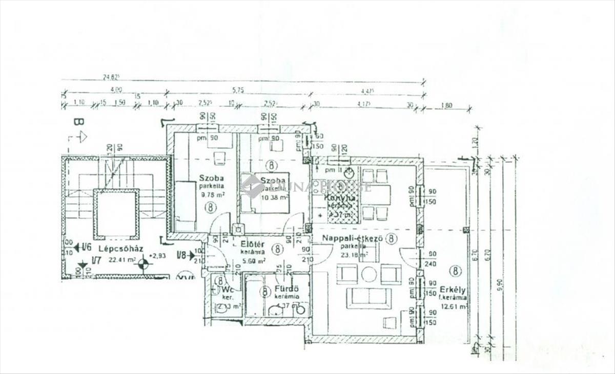
Eladó lakás, Budapest 13. ker.
Kucsma utcában eladó egy 59, 8 nm -es, 1+2 szobás jó állapotú lakás 12, 61 nm -es erkéllyel. ( Tulajdoni lapon 62 nm . ) a ház 2007-ben épült, csöndes, nyugodt környéken mégis kiváló közlekedéssel. a lakás kiváló elosztású, kényelmes előszobával, külön, nem a nappaliból nyíló hálószobákkal, külön kialakítású a fürdő és a wc, valamint hatalmas erkéllyel. Az ablakokon redőny és szúnyogháló, hűtő klíma a nappaliban és cirkó fűtéses. a burkolatok, szaniterek, konyhabútor az eredetiek. a közlekedés kiváló, a közelben a 30, 30a buszok és a 14-es villamos. a lakás tehermentes, jelenleg bérlők lakják, akik szívesen visszabérelnék. a nappaliban lévő gardróbszekrény, a konyhabútor és a klíma a vételár része.
A lakáshoz tartozik és kötelezően megvásárolandó egy teremgarázs beálló + 7. 000. 000, -Ft és egy 5, 16 nm -es tároló + 5. 000. 000, -Ft, összesen 105. 000. 000, -Ft!
Befektetésnek és otthonnak is tökéletes választás!
Referencia szám: lk030427 FIX 3% lakáshitelre megvehető
Tetszett ez az eladó Budapest XIII. kerületi jó állapotú 3 szobás tégla lakás? Hívd fel a hirdetőt most, és tudj meg mindent erről az eladó tégla lakásról! Ha gondolod nézelődj tovább az eladó lakás Budapest XIII. kerület oldal hirdetései között. Ennek az eladó lakásnak az ára 93000000 Ft és mivel az alapterülete 62 négyzetméter, ezért az átlagos négyzetméterára 1500000 HUF/m2.
Az eladó lakások menüpontban további hirdetések között is böngészhetsz. Az összes eladó budapesti lakás hirdetést tartalmazó oldalon tudsz böngészni. Ha van kedved, akkor böngészhetsz a Balogh Nóra összes hirdetése között, vagy akár a/az Duna House József körút összes hirdetése között is.

