Eladó jó állapotú lakás - Budapest XIII. kerület
- INGYENES HIRDETÉS FELADÁS
Ingatlan adatai
- Eladó vagy kiadó:Eladó
- Település:Budapest XIII. kerület
- Kategória:Lakás
- Alkategória:Tégla
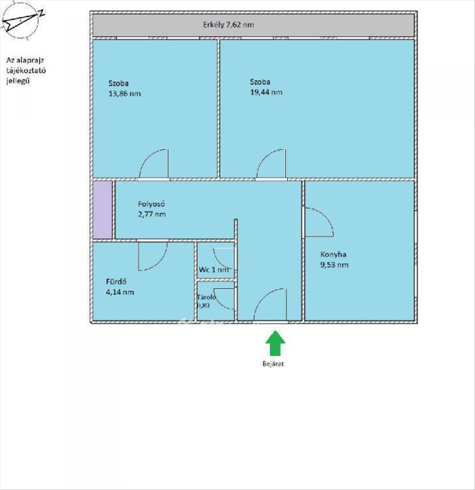
- Alapterület:60 m2
- Csere is:Nem
- Hirdető:Cég
- Élő videón megtekinthető:Nem
- Szobaszám:2
- Állapot:Jó állapotú
- Hány szintes az ingatlan:Földszintes
- Komfortosság:nincs megadva
- Hányadik emeleti:2
- Erkély:Van
- Lift:Nincs
- Parkolási lehetőség:Udvaron
- Fűtés:Gáz (cirko)
- Bútorozottság:nincs megadva
- Fényviszony:Napfényes
- Tájolás:NY
- Kilátás:nincs megadva
- Internet:nincs megadva
- Klíma:nincs megadva
- Akadálymentesített:nincs megadva
- Energiatanúsítvány:nincs megadva
- Villany:Van
- Víz:Van
- Gáz:nincs megadva
- Csatorna:Van
- Közös költség:25 000 Ft
- Kapcsolatfelvétel

Hitel ajánlatok
Ingatlan hirdetés leírása
Eladó Lakás, Budapest 13. ker.
Eladó XIII. kerületi lakás - nagy erkély, zárt lakópark, PARKOLÓ! ! !
Ha már unod a kompromisszumokat és szeretnél egy zárt, biztonságos lakóparkban élni, rád vár ez a 60 nm -es világos, frissen festett, azonnal költözhető lakás.
Gyalog és autóval is kényelmes a bejutás, a bejáratot elektromos kapu őrzi.
Miért fogod imádni?
- 60 Nm jelenleg két szobás, de könnyes három szobássá alakítható
- Óriási erkély- reggeli kávé, baráti fröccsözés
- Vadiúj sarokkád- hogy a fürdőszoba wellness legyen
- Műanyag nyílászárók, nagy ablakok- jó hőszigetelés
- Eredeti fa parketta, frissen felújítva - karakter és elegancia egyben
- 2019-ben cserélt kondenzációs gázkazán - új, modern és takarékos
- Zárt saját tároló - bicikli, bőrönd, karácsonyi díszek
- Felszíni kocsibeálló - nem kell többé parkolóhelyet vadászni, és igen, benne van az ÁRBAN! ! ! !
- Tehermentes, 1/1 tulajdon, üres, azonnal költözhető
Várom hívását a hét minden napján 9-20 h között, jöjjön és nézzük meg együtt a leendő otthonát.
Ügyfeleink részére teljes banki és jogi háttérrel állunk rendelkezésre.
Referenciaszám: m317680 FIX 3% lakáshitelre megvehető
Tetszett ez az eladó Budapest XIII. kerületi jó állapotú 2 szobás tégla lakás? Hívd fel a hirdetőt most, és tudj meg mindent erről az eladó tégla lakásról! Ha gondolod nézelődj tovább az eladó lakás Budapest XIII. kerület oldal hirdetései között. Ennek az eladó lakásnak az ára 77900000 Ft és mivel az alapterülete 60 négyzetméter, ezért az átlagos négyzetméterára 1298333 HUF/m2.
Az eladó lakások menüpontban további hirdetések között is böngészhetsz. Az összes eladó budapesti lakás hirdetést tartalmazó oldalon tudsz böngészni. Ha van kedved, akkor böngészhetsz a Koszka Nikolett összes hirdetése között, vagy akár a/az OTPip Budapest IX. kerület Üllői út 21 - OTP Ingatlanpont Iroda összes hirdetése között is.

