Eladó újszerű állapotú lakás - Budapest XIII. kerület
- INGYENES HIRDETÉS FELADÁS
Ingatlan adatai
- Eladó vagy kiadó:Eladó
- Település:Budapest XIII. kerület
- Kategória:Lakás
- Alkategória:Tégla
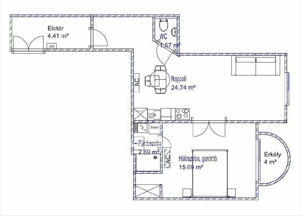
- Alapterület:45 m2
- Csere is:Nem
- Hirdető:Cég
- Élő videón megtekinthető:Nem
- Szobaszám:2 + 1 fél
- Állapot:Újszerű, kitűnő
- Hány szintes az ingatlan:Földszintes
- Komfortosság:nincs megadva
- Hányadik emeleti:2
- Erkély:nincs megadva
- Lift:Van
- Parkolási lehetőség:Utcán
- Fűtés:Egyéb
- Bútorozottság:nincs megadva
- Fényviszony:Jó
- Tájolás:ÉNY
- Kilátás:nincs megadva
- Internet:nincs megadva
- Klíma:nincs megadva
- Akadálymentesített:nincs megadva
- Energiatanúsítvány:nincs megadva
- Villany:Van
- Víz:Van
- Gáz:nincs megadva
- Csatorna:Van
- Közös költség:11 000 Ft
- Kapcsolatfelvétel

Hitel ajánlatok
Ingatlan hirdetés leírása
Eladó Lakás, Budapest 13. ker.
XIII. kerületben, Újlipótváros kedvelt részén, a Hegedűs Gyula utcában egy második emeleti, utcára néző, erkélyes, napos, egyedileg lakberendező által megálmodott gyönyörűen magas minőségben felújított tégla lakás, egy liftes, rendezett házban eladó.
A felújítás keretében a teljes villanyhálózat és vízhálózat került kiépítésre.
Az ingatlan 47 nm plusz 4 nm erkély.
A lakás jogilag rendezett, ügyvédileg ellenjegyzett, használati megosztással rendelkezik, egyedi almérőkkel felszerelve.
Egy nappalival, egy hálószobával, fürdőszobával, gardrób szobával és külön wc-vel került kialakításra.
Utcai fekvésének és DNY-i fekvésének köszönhetően rendkívül világos és napos. Asztalos által készített egyedi design konyhabútor teljesen gépesítve igény szerint. a fürdő épített tusolóval lett megtervezve, megépítve, gyönyörű burkolattal és szaniterekkel.
AZONNAL KÖLTÖZHETŐ!
Kiváló befektetés kiadás szempontjából, illetve saját lakásnak is tökéletes választás.
Miért érdemes itt otthont vásárolni?
- Verhetetlen lokáció
- kiváló tömegközlekedés, a Szent István Park, a Duna part, illetve a Margit sziget is percek alatt elérhető!
- Rendkívül csendes, gyönyörű kerttel rendelkező társasház
- a prémium minőségű, egyedi tervezésű bútorzat, a modern világítás és a klímával ellátott helyiségek valóban luxus érzetet nyújtanak.
Érdeklődés esetén várom a megkeresést bizalommal, nézzük meg együtt az ingalant!
Referencia szám: m306841-ml Hitel.hu - Hasonlítsa össze a bankok lakáshitel ajánlatait
Tetszett ez az eladó Budapest XIII. kerületi újszerű állapotú 2 egész és 1 fél szobás tégla lakás? Hívd fel a hirdetőt most, és tudj meg mindent erről az eladó tégla lakásról! Ha gondolod nézelődj tovább az eladó lakás Budapest XIII. kerület oldal hirdetései között. Ennek az eladó lakásnak az ára 89900000 Ft és mivel az alapterülete 45 négyzetméter, ezért az átlagos négyzetméterára 1997778 HUF/m2.
Az eladó lakások menüpontban további hirdetések között is böngészhetsz. Az összes eladó budapesti lakás hirdetést tartalmazó oldalon tudsz böngészni. Ha van kedved, akkor böngészhetsz a Hosszú Beáta összes hirdetése között, vagy akár a/az OTPip Budapest XIII. kerület Victor Hugo utca 41 - OTP Ingatlanpont Iroda összes hirdetése között is.

