- >>
- eladó ingatlanok
- >>
- eladó lakás
- >>
- eladó lakás Budapest XIII. kerület
- >>
Eladó újszerű állapotú lakás - Budapest XIII. kerület
| | |||
| Kedvencnek jelölöm | Elküldöm emailben | Megosztás | Szavazás |
| Kedvezményes lakáshitel ajánlatok | |||
| 189 900 000 HUF | |||
Ingatlan adatai
- Eladó vagy kiadó:Eladó
- Település:Budapest XIII. kerület
- Kategória:Lakás
- Alkategória:Tégla
- Alapterület:91 m2
- Csere is:Nem
- Hirdető:Cég
- Élő videón megtekinthető:Nem
- Szobaszám:4
- Állapot:Újszerű, kitűnő
- Hány szintes az ingatlan:Földszintes
- Komfortosság:nincs megadva
- Hányadik emeleti:5
- Erkély:Van
- Lift:Van
- Parkolási lehetőség:Teremgarázsban
- Fűtés:Házközponti
- Bútorozottság:nincs megadva
- Fényviszony:Napfényes
- Tájolás:nincs megadva
- Kilátás:nincs megadva
- Internet:nincs megadva
- Akadálymentesített:nincs megadva
- Energiatanúsítvány:nincs megadva
- Villany:Van
- Víz:Van
- Gáz:nincs megadva
- Csatorna:Van
- Közös költség:30 000 Ft
- Üzenetküldés
- Hívás

Referencia szám: M306250

Hitel ajánlat
Ingatlan hirdetés leírása
Eladó Lakás, Budapest 13. ker.
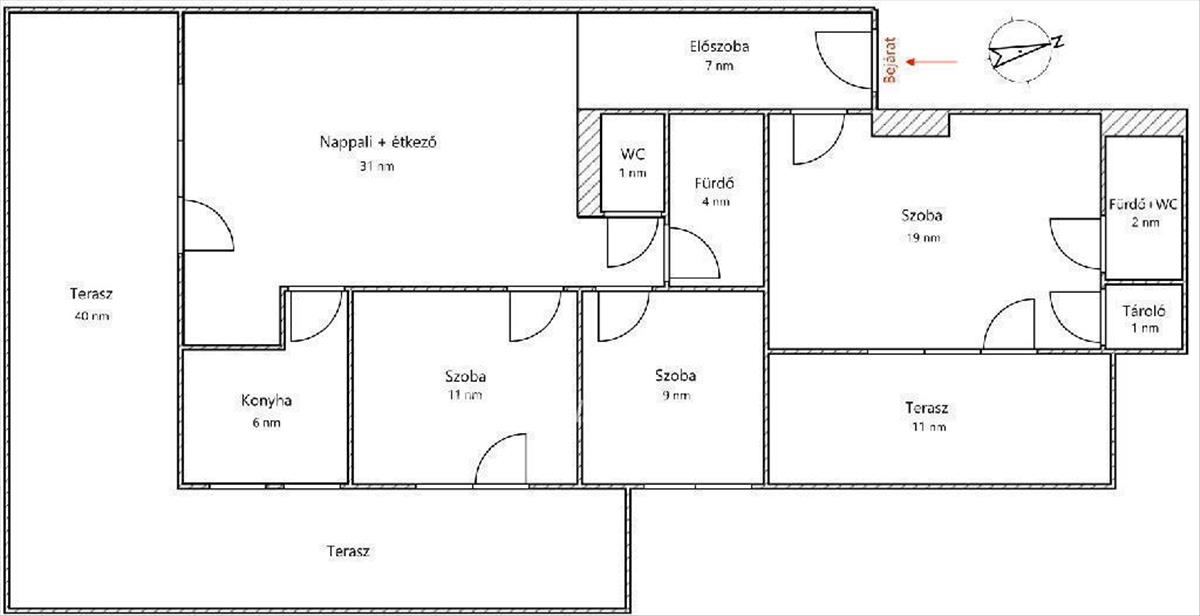
Penthouse-jellegű, újszerű luxuslakás eladó Angyalföldön - 91 nm lakótér + 51 nm terasz a 13. kerületben!Eladásra kínálunk egy különleges adottságokkal rendelkező, újszerű, még sosem lakott, 4 szobás lakást a XIII. kerület dinamikusan fejlődő részén, Angyalföldön, egy 2018-ban épült, modern társasház legfelső, 5. emeletén.
Főbb jellemzők:
- 91 nm lakótér + 51 nm terasz (egy 40 nm-es és egy 11 nm-es terasz)
- Penthouse-jelleg, falszomszéd nélkül, rendkívül világos, napfényes, déli és délkeleti fekvésű
- 4 szoba, 2 fürdőszoba, kiváló elrendezés - akár két külön lakóegységgé is alakítható
- Beépített konyhabútorral felszerelt, különálló konyha
- Márvány díszítésű falak, minőségi burkolatok
- Padlófűtés, központi fűtés radiátorokkal + légkondicionáló minden szobában
- Óriási ablakfelületek, több kijárat a teraszokra
- Hívógombos lift, teljesen akadálymentes megközelítés
- Panorámás kilátás a belső parkosított udvarra, utcára, valamint a Budai hegyekre
- a lakáshoz két gépkocsibeálló tartozik a belső udvarban (a vételár része)
Lakás állapota:
A lakás teljesen újszerű, sosem lakták, így nincs szükség felújításra, még tisztasági festésre sem - azonnal költözhető!
Környék és közlekedés:
A lakás kiváló közlekedéssel rendelkezik: 3 perc sétára elérhetők a 20e, 30, 30a, 230, 105, 210, 201b buszok, valamint a 14-es villamos is. a közelben több élelmiszerbolt (Penny, Spar, Tesco, Aldi, Lidl), zöld parkok, kutyafuttatók, sétányok, fitneszparkok, valamint óvodák, iskolák, bölcsődék, orvosi rendelők és gyógyszertárak is megtalálhatók. a környéken a parkolás fizetős, de jóval kedvezőbb díjszabású, mint a kerület belsőbb részein.
További megjegyzés:
A környéken jelenleg is zajlanak fejlesztések és építkezések, amelyek a városrész további felértékelődését vetítik előre. a munkálatok gyors ütemben haladnak, és nem tartanak örökké - a környék így hosszú távon még rendezettebbé és élhetőbbé válik.
Ez a lakás tökéletes választás lehet családoknak, befektetőknek, vagy akár két generáció együttélésére is - ilyen adottságokkal és állapotban ritka lehetőség a piacon! Hitel.hu - Hasonlítsa össze a bankok lakáshitel ajánlatait

