Eladó újszerű állapotú lakás Budapest XIII. kerület
| Kedvencbe | Megosztás | Árfigyelő |
| Kedvezményes lakáshitel ajánlatok | ||
| 160 000 000 HUF | ||
Ingatlan adatai
- Eladó vagy kiadó:Eladó
- Település:Budapest XIII. kerület
- Kategória:Lakás
- Alkategória:Tégla
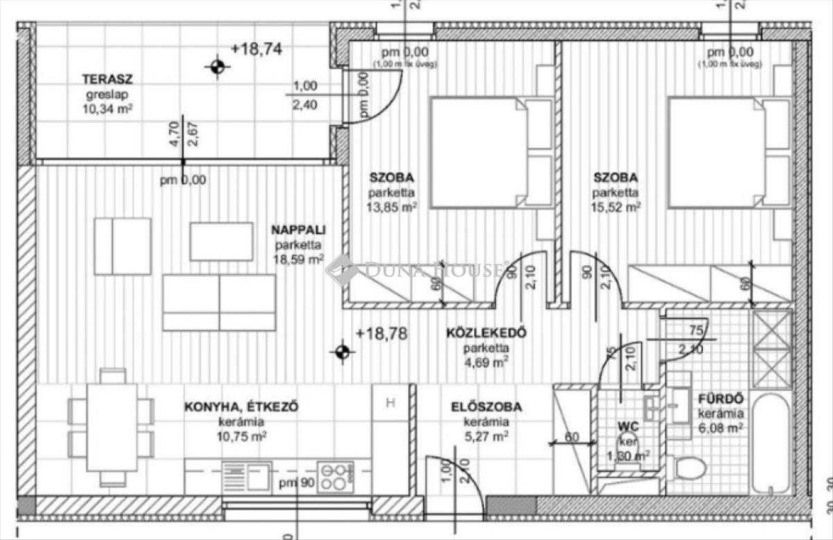
- Alapterület:81 m2
- Csere is:Nem
- Hirdető:Cég
- Élő videón megtekinthető:Nem
- Szobaszám:3
- Állapot:Újszerű, kitűnő
- Hány szintes az ingatlan:Földszintes
- Komfortosság:nincs megadva
- Hányadik emeleti:6
- Lift:Van
- Parkolási lehetőség:nincs megadva
- Fűtés:Házközponti egyedi mérővel
- Bútorozottság:nincs megadva
- Fényviszony:Napfényes
- Tájolás:ÉK
- Kilátás:nincs megadva
- Internet:nincs megadva
- Akadálymentesített:nincs megadva
- Energiatanúsítvány:nincs megadva
- Villany:Van
- Víz:Van
- Gáz:nincs megadva
- Csatorna:Van
- Üzenetküldés
- Hívás

Kovács-Őrsi Diána
Mondd meg a hirdetőnek, hogy a megveszLAK-on találtad a hirdetést.
Referencia szám: LK084390

Hitel ajánlat
Ingatlan hirdetés leírása
Eladó lakás, Budapest 13. ker.
Világos, tágas lakás a Szegedi úton garázs és tároló bérelhetőEladó egy 76 négyzetméteres lakás + 10 négyzetméteres loggiával a XIII. kerületi Szegedi úton, egy 2018-ban épült, 7 emeletes, modern társasházban. Az ingatlan ideális választás pároknak, egyedülállóknak vagy befektetőknek, akik értékelik a kényelmet, a minőségi kivitelezést és a kiváló elhelyezkedést. Főbb jellemzők:- Tágas nappali nagy ablakokkal, természetes fényben úszó tér- Külön hálószoba beépített szekrénnyel- Konyha teljes körűen gépesített; a beépített Bosch készülékek a vételár részét képezik- a nappaliban egyedi gyártású, beépített könyvespolc rendszer biztosít extra tárolóhelyet és stílust- a komfortot klímaberendezés növeli- Remek kilátás, csendes, zöld belső udvarra néző ablakok- 10 m² loggia, ideális reggelihez, pihenéshez vagy növényeknek Kiváló lakókomfort:- Árnyékolás: a hálószobákban hagyományos redőny, a nappaliban elektromos sötétítő- Minden nyitható ablakon szúnyogháló található- Az udvari fekvés és a jó kereszt-szellőzés révén a legmelegebb nyári napokon is könnyen biztosítható a friss levegő Költségek:- Közös költség: 28 800 Ft/hó- Fűtés: házközponti egyedi mérővel, télen átlagosan 8 000 Ft/hó Extra lehetőségek:A lakáshoz a -1 szinten garázsbeálló és külön tárolóhelyiség bérelhető, így biztosított a kényelmes parkolás és a praktikus tárolás. Berendezés:A lakás bútorozata megállapodás tárgyát képezi, így rugalmasan alakítható az új tulajdonos igényei szerint. Elhelyezkedés:A Szegedi út kiváló infrastruktúrával rendelkezik: közelben üzletek, éttermek, tömegközlekedési csomópontok, valamint zöld parkok. a környék biztonságos és élhető, ideális városi otthon. Megtekintés:A lakás előre egyeztetett időpontban megtekinthető. Hívjanak bizalommal további információért vagy időpont egyeztetésért!Referencia szám: lk084390 Hitel.hu - Hasonlítsa össze a bankok lakáshitel ajánlatait

